
▲ 南入口人视角

▲ 西入口人视角
莲花山公交总站项目位于深圳福田区莲花山的西南角,新洲路与红荔路的交汇处。使用者是公交集团的三八红旗车队。改造前的建筑是三层高的瓷砖外墙的老房子,一层是办公,二层和三层是宿舍。陈旧的建筑设施与形象满足不了内部使用、对外交流和宣传的需求,于是公交集团决定通过整体建筑和环境的改造,以及把二层和三层的宿舍转化为党群中心和办公,为车队提供一个舒适的办公场所,也为市民提供优美的候车环境和优质的服务。

▲ 区位图

▲ 改造前的建筑外观

▲ 改造前的二层宽走廊
项目地块周边的两条主干道都设有绿化带和高大的树木,地块的另外两边紧靠莲花山。建筑处在一片绿色环境包围之中。因此整个改造希望让建筑呈现轻巧的姿态并与周边环境互相融合。

▲ 建筑处在一片绿色环境包围之中

▲ 建筑在莲花山的西南角
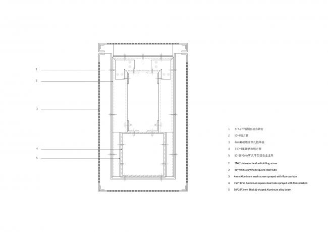
为了保持原有形态,建筑的三个主要立面以及屋顶增加了新的幕墙表皮。新的幕墙表皮不是封闭的,而是开放和立体的。根据原有建筑梁的位置,新的幕墙分为四层,每一层靠原有结构出挑钢梁支撑,并且每隔3.6米设置竖向钢柱,使得加建的幕墙形成稳定的结构框架。新幕墙的每一层分布了若干个变截面的梯形体,而每个梯形体由一块“U”型穿孔铝板和另一块平整的穿孔铝板组合而成。每一层的梯形体在竖向连成一体,并齐平立面的外侧,竖向钢柱也因此可以隐藏在这连续的梯形体里。梯形体有三种穿孔率,通过单元组合,在立面形成了丰富而有韵律变化的幕墙体系。在构造方面,这些梯形体都是工厂预制件,在施工现场工人利用铝板的孔洞把梯形体固定在其内部的结构支架上,避免了固定构件外露而影响外观。

▲ 三个主要立面以及屋顶新增的幕墙表皮

▲ 轻巧的幕墙表皮

▲ 竖向连续的变截面梯形体

▲ 外立面

▲ 单元组合

▲ 新幕墙的结构示意

▲ 幕墙节点

▲ 幕墙节点
另一方面,原有的二层和三层的瓷砖墙翻新成涂料墙,四种绿色形成的丰富条形图案与周边的绿树相得益彰。而白色的幕墙立面让建筑保持谦逊的姿态的同时,内侧的绿色外墙透过幕墙若隐若现。正面观看建筑时,绿色内墙最大限度呈现出来,建筑表现内敛的绿色外观。随着观看角度变斜,立体的梯形体逐渐遮挡更多的绿色内墙,建筑的绿色外观变得灵动,而不是呆板直白的形式。另外,原有建筑的二层室外平台比三层室外平台要宽,新加的幕墙表皮与原有建筑外墙之间便形成了一个室外的围合空间,成为积极的室外交流场所。

▲ 绿色内墙若隐若现

▲ 颜色呼应周边绿色环境

▲ 新的幕墙表皮形成的光影

▲ 新幕墙与原建筑之间的室外围合空间

▲ 内立面与景观融合
除此之外,设计在建筑里引入一条公共流线,通过楼梯串联了一层北面食堂出口、二层、三层和屋顶空间,使不同标高的交流场所建立更紧密的联系。新加的幕墙表皮也形成一条长条形开口对应着这条公共流线,使得内部空间与外立面形式统一。人在行走过程中也能透过开阔的开口观看外部的绿树与城市。

▲ 轴测图

▲ 轴侧拆解图

▲ 剖透视

▲ 楼梯串联不同标高的交流场所

▲ 通过开口观看外部的绿树和城市
格栅覆盖了大部分屋顶空间,除了具有遮阳作用,还与立面的幕墙形成一个完整结构系统,力学更优、更稳定。在靠山一侧,留出的开敞空间成为与自然相接触的花园。这个半开敞的屋顶空间容纳了丰富的活动:种植农作物、开室外派对和观看福田中心区城市夜景。

▲ 屋顶格栅形成的光影

▲ 靠山一侧的开敞空间

▲ 二层平面图
项目信息
项目名称:莲花山公交总站改造
功能:公交首末站
(BIM教程)
项目地址:广东省深圳市福田区新洲路与红荔路交界
业主:华润(深圳)有限公司、深圳巴士集团股份有限公司
项目设计& 完成年份:2017 & 2018
建筑面积:1445平方米
设计方:CCD(BIM工程师)I 墨照工作室
主持建筑师:曾冠生
建筑:罗文国 麦梓韵 雷欢玲子 傅艺玲 黄颖慧丨刘睿珂 黄素琦
结构:张凡 曹远峰
幕墙:方志江 杨帆 刘志 姜洁茹
机电:刘康荣温小生 张楚 李文勇 李雯婷 李鹏
合作景观设计团队:博克斯林景观事务所
合作室内设计团队:J&A杰恩设计
摄影:张超
主要材料: 穿孔铝板、涂料、樟子松、洗米石

BIM建筑网




评论前必须登录!
注册