
有句谚语大家都不陌生:It takes a village to raise a child(养育一个孩子需要整个村庄)。它既指举全社区之力抚养孩子的社会习俗,也强调要让儿童广泛接触社会、接受更加活泼真实的生活教育。然而在今天的中国乡镇,儿童留守或长期寄宿在校的现象日益普遍,孩子与家庭、社区和社会的亲密联结,常常被集中化的管理割裂开来。
2015年,江苏省阜宁县政府力推基础教育建设,委托Crossboundaries为其下辖的北沙村和硕集社区设计两所公立幼儿园。
第一次走进硕集,我们就接触到了空心化的社区、常年异地的家庭、无奈的陪读母亲和不安的留守儿童,还有不满现状的幼儿园老师。于是我们逐渐理解,这里需要的不仅仅是座幼儿园建筑,更是一种理念、一张蓝图,以唤醒整个社群对儿童的珍视——即便在一种不甚理想的社会和家庭格局下,也可以创造从前那种“老安少怀”的乡村图景里的教育氛围。

梳理环境,制造“山谷”
我们在北沙、硕集两所幼儿园的设计上运用了相似的手法,又因地制宜,各具考量。与北沙村坐落于水乡风景间、模拟村庄形态的幼儿园截然不同,硕集社区这座幼儿园,位于欣欣向荣的县城核心区,被密集的商业街区、事业单位、乡镇企业,繁忙的乡镇公路和堆满废弃物的待建空地环绕,周边不算开阔,景致也乏善可陈。针对这种现状,我们决定制造一个“群山环抱”的“谷地”:以多层建筑三面围合出一个内向空间,为孩子们在园内生活、玩耍和学习时,阻隔来自外界的大部分嘈杂;同时,仍沿用组团形式,适度分解幼儿园的总建筑体量,将尺度降到不至于让孩子感到压迫的程度。





▲ 外形回应场地

▲ 三面围合、内部自在的空间
建筑风格尊重和延续了苏中传统,和当地民居呼应,并依各栋建筑的体量大小有所变型。建筑立面上,内庭的墙面主要由青砖砌成,外墙则一律是白色灰泥,在纷乱的县城环境里脱颖而出,为孩子的世界(BIM建筑)保持一份纯净。立面上大小、高低不等的开窗,在保证日照的同时也形成通透、有趣的室内外关系。




重构社群,自在学习
建筑的外观呼应着全村合力呵护儿童的传统;而其内部的空间布局,更为实践“以儿童为本”的教育理念。如今的教育者越来越提倡,学龄前儿童通过大量玩耍来学习和锻炼能力。所以在幼儿园内部,我们希望对孩子尽量减少约束,稍许放任他们的天性。



在布局上,“山谷”四周的建筑容纳了不同功能,但各自独立,我们特意将大部分交通空间挪到室外共享的大院里。这样,孩子们在进出各个学习、娱乐或生活空间时,总要经过中庭,大大增加了他们进行户外活动和自由交流的机会。


我们不仅在庭院一层设置了两片活动场;更在其上方架起贯通每栋建筑二层空间的大型露天平台,将通行和活动的功能融为一体。两片小活动场上方开敞,加上平台不同方位都布置了户外楼梯,从视觉和交通流线上都增强了上下层的通透性,为孩子们构建出一个立体的双层户外活动场,既有适合跑跑跳跳的开阔空地,又有引人探究的通幽曲径。


孩子们初入园中,甚至可能会有点迷路,但又马上被吸引,带着好奇一点点展开探索。越复杂的空间,往往越能激发孩子们在其中创造、变换玩法,积累社交能力,并锻炼他们的空间逻辑和方位感。从情感的角度,我们更希望通过这个外部围合、内部自在的空间,让孩子们重新感受到群体的亲密和联结,适度缓解孤独。


建筑师能为教育公平做什么?
随着中国城镇化水平的提高,和国家对幼教事业的日益重视与支持,越来越多的乡村幼儿园正在脱离“一栋楼加一片场”的传统格局,也更加重视教学手段的优化。作为建筑师,我们力所能及的是通过适宜的空间设计,将“以儿童为核心”的教育理念在普通的乡村幼教机构推广。无论在城市还是乡村,教育的目的都应该是让学生能够自我发展,形成独立的人格,以便在无法预料的未来做出有意义的选择。我们希望有朝一日这种价值不只是都市中的“小众精品”,它应该成为一个基于对孩子的爱的普适方法。

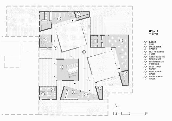
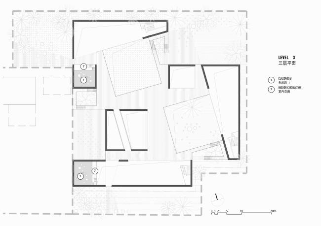
项目图纸

▲ 一层平面图

▲ 二层平面图

▲ 三层平面图

▲ 立面图

▲ 轴侧展开图
项目信息
地点:中国,江苏(BIM教程),阜宁县,硕集社区
客户:江苏省阜宁县教育局
总建筑面积:3141平方米
学生人数:300人
设计周期:2015年12月至2016年9月
施工周期:2017年4月至2018年8月
完成时间:2018年8月
设计方:Crossboundaries, 北京
合伙人:Binke Lenhardt(蓝冰可), 董灏
设计团队:Tracey Loontjens ,Alan Chou(周业伦),Andra Ciocoiu,郝洪漪
摄影:吴清山,郝洪漪,刘敏玲

BIM建筑网





评论前必须登录!
注册