
这座面朝西北的住宅的主人住在新德里,是一个三代同堂的家庭。他们的家建造在一个326平米的狭长土地上,位于高密度的区域,面朝一个繁忙的城市道路。设计调节了视线私密性的缺乏与他们对于开放性、充足自然光以及自由交际空间的需求,因为他们希望家人和朋友能够在这里一起聚会。

我们的方法与传统的流线设计和空间安排方式相去甚远,对于这种典型的,与邻居共享山墙的密集住宅,我们决定将建筑体量形容为一个破裂的大型个体,而不是一个有着窗孔体量和立面表现的组合体。

多面的独立石材立面解决了房屋前方的隐私性缺失这一问题,服务区域也采用类似的方案,套房和衣柜被安排在后方,从而缓解南向的热能积聚。





体积的深度被雕刻出来,在前方和后方连接上部楼层,在住宅的心脏位置创造了曲折的,自然通风的,社交的庭院,为房屋中的所有房间引入景观和阳台。





它可以引入充足的阳光,被木质表面和屋顶玻璃所弱化的白光,深入地下空间。天井的交叉通风,由桥梁上的窗户控制,可以通过夏季积(BIM学习)攒的热能进行增强,通过蒸发制冷加湿来帮助,,并且在季风使其利用风的管道效应。






项目图纸

▲ 概念分析图

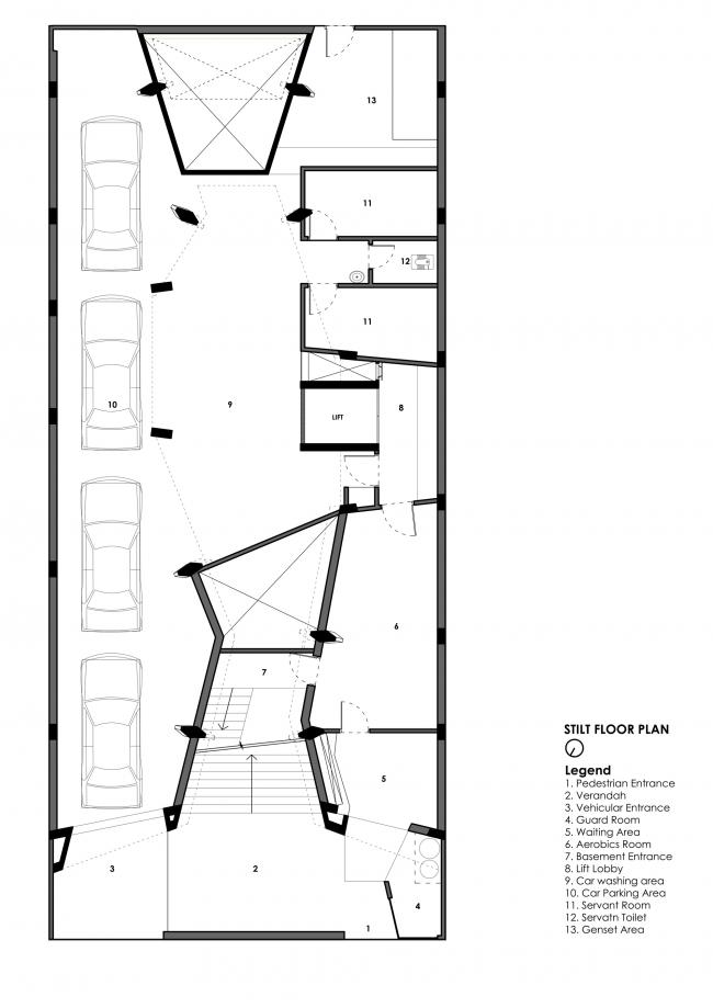
▲地下室平面图

▲夹层平面图

▲首层平面图

▲二层平面图

▲三层平面图

▲四层平面图

▲剖面图A

▲剖面图B

▲爆炸图

▲轴测图
项目信息
设计方:Anagram Architects
地址:Nueva Delhi,印度
类别:可持续发展
设计团队:V(BIM教程)aibhav Dimri, Madhav Raman, Vineet Dhall
建筑面积:1340㎡
项目年份:2018
摄影师:Andre J. Fanthome
厂家:Stonex India, Mitsubishi Electric, ART N GLASS, Hansgrohe, Kone, Tata Steel
市政施工方:Adhunik Infrastructures
结构工程师:Arohi Consultants
其他顾问:ELECTRICAL Electropower
管道顾问:DSR ENGINEERING SERVICES
管道工程师:RN Sahoo & Sons
现场勘查:Anagram Architects
模型制作:Inhouse
项目预算:8,00,00,000 INR
场地面积:326㎡

BIM建筑网





评论前必须登录!
注册