(BIM工程师)
NextOffice 设计的萨德拉艺术家论坛是一个公共文化中心,位于伊朗萨德拉的干旱郊区小镇。该项目完全由低洼的或地下的建筑组成,它独特的结构与周围的城市区域形成对比,并塑造了独特的室内和室外空间的关系。

通过审查四个不同的相邻公共空间的场景,Next Office 的设计团队构想了一个累积的公共空间,这个空间以四个混合用途的情景和空间特征为中心。在他们的设计中,这些区域通过室内外边界的缩减,很快地自主并流畅的相互连接在一起。


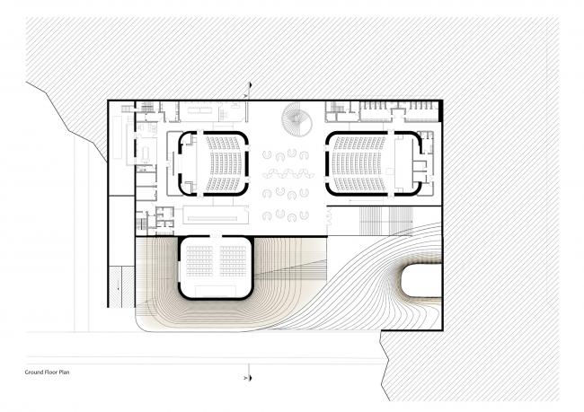
该(BIM建筑)建筑自身从根本上由三个核心所统一的结构定义,从地下室延伸到顶层。这些结构,包括了圆形剧场、教育区域和画廊,提供封闭且有限的空间,否则将会是流动且无限制的平面。因此,外部环境为艺术家提供了一个独特的空间,让他们能够与公园的常规使用者一起参与到公共活动中,而部分内部空间为建筑居民提供了一个更加私密、互动的类型。



这些混凝土核心的成型过程是受到了古代波斯砖石承重墙和拱形的砖材天花板的建造技术的启发。砖的成型装置或隔板被用于塑造三个核心结构。一旦混凝土被浇筑到这些模具里面,砖墙就会被移除,在外部表面留下一个砖的纹理印记。这种方法既经济,又能让建造过程平稳,建筑物坚固。



总之,NextOffice 的萨德拉艺术家论坛尝试将不同类型的共享空间相结合,并特别考虑到该区域的地理和地形,鼓励社会中不同群体和阶级之间的互动。因此,它设立了一个环境,能够让萨德拉这个郊区城市死气沉沉的气氛转变为一个繁荣的日常互动的环境。

▲ 分析图

▲ 一层平面图

▲ 二层平面图

▲ 剖面图A-A

▲ 草图

BIM建筑网





评论前必须登录!
注册