
▲ 中庭
万科未来之丘项目位于广州市番禺区,临近广州南站,设计开始于广深港高铁通车前的四个月。它是园区内众多新建办公楼中的一栋五层高的样板楼,我们负责其中四个楼层的室内空间设计,即地下一层、地上一、四及五层。

▲ 一层入口

▲ 一层入口
设计伊始,业主提出设计“具有未来感的新型办公空间”的要求。“何为未来感”,在与业主沟通协调时,我们的想法渐趋一致。“未来感”,并非科技的新与酷,而是空间的设计——空间触感的营造,生态与自由的气息。

▲ 四层中庭
(BIM设计)

▲ 一层大厅

▲ 阳台
于是在空间设计上,尽量打破室内外空间的界限,内与外的空间景致相互流通。地下一层为洽谈展示空间,室外为下沉庭院。大面积玻璃的运用,将庭院景观引入室内。并将通向一层大堂的楼梯,设计成朝向庭院开敞的大楼梯,可停留、可休憩,可观赏与感受庭院的景致、光影的变化。而在四层和五层,则借鉴岭南建筑中的天井院落空间,设计一个贯通两层的屋顶采光中庭——天光从上流泻而下,洒在四层中庭的景观树上、满溢在空间中,使室内产生一种宛若室外庭院的错觉。

▲ 地下一层入口

▲ 楼梯和阅读区

▲ 楼梯和阅读区

▲ 四层采光中庭
在材质的处理上,也主要选择偏向自然质感的木材和水磨石。四、五层的白色抹灰墙面和棕色木质的地板、窗框,与中庭的绿意,搭配得恰到好处,营造着舒适而惬意的办公氛围。

▲ 办公区域

▲ 会议室

▲ 经理办公室

▲ 经理办公室

▲ 接待室

▲ 阅读区
地下一层与一层,主要为交流、展示空间,公共性较强,因此在墙面上大量使用阳极氧化铝板材质。表面模糊、抛光的阳极氧化铝材质,既可以营造出一种类似于镜面不锈钢材质的未来感,又没有那么冰冷,而是透着些许人性化的温润感。再加上木材的装点,又增添了空间的温馨与自在。

▲ 地下一层中庭

▲ 地下一层走廊

▲ 接待室

▲ VIP接待室

▲ VIP接待室

▲ 一层大厅

▲ 一层大厅
在室内装置的设计中,我们与专业的画廊合作,根据设计概念而定制。在设计中,亦以生态、自然为主题,材料质感与室内空间材料相仿,烘托得室内空间设计整体、纯粹。

▲ 四层中庭
设计图纸:

▲ 区(BIM)位图

▲ 负一层平面

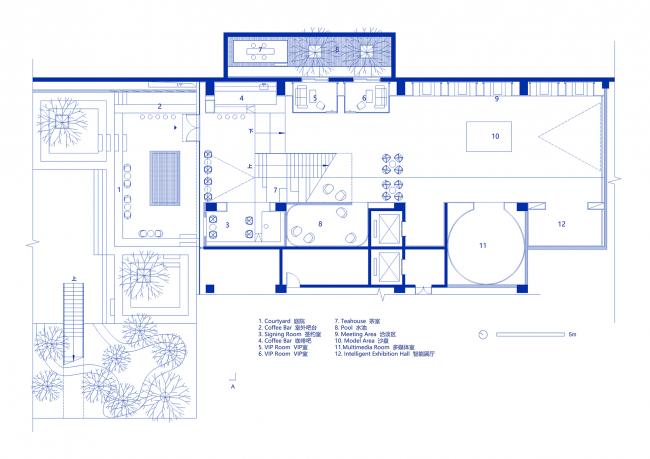
▲ 一层平面

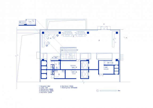
▲ 四层平面

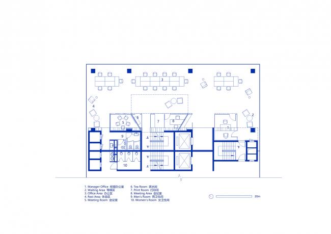
▲ 五层平面

▲ 一层夹层详图

▲ 剖面图
项目信息:
功能:办公、展示
设计时间:2018.4-2018.8
施工时间:2018.8-2018.10
地点:广东广州
面积:1100平方米
团队:肖磊、杨毓琼、刘莹莹
类型:室内
状态:建成
摄影师:加纳永一

BIM建筑网





评论前必须登录!
注册