在一天中的任何时候,皇家歌剧院都是一个展现幕后巨大力量的地方,在世界上最美丽的歌剧院之一的中央,人们可以放松,可以享用咖啡、午餐或饮料,可以欣赏艺术家工作。这是一个展示领先的戏剧与求知欲的地方。

该设计自然诠释了皇家歌剧院的文化变迁。作为一个包(BIM工作)容多元的文化与社会中心,歌剧院一楼的公共区域被扩建,可以提供咖啡馆、商店以及非正式活动、展览的空间。此外,建筑师还改建了科文特花园广场的入口和位于Bow Street的玻璃入口。歌剧院低层设有新的林伯里剧场、连接剧院各部分的门厅、学习空间和女厕所。新的餐厅、酒吧和露台与圆形剧场同层设置,在这里,游客可以欣赏科文特花园的美景。


歌剧院作为遗产名录上仍然在使用的建筑,其重大的挑战是在视觉上将建筑向周边打开。在历史悠久的保罗·哈姆林大厅下面,建筑师扩建了一个玻璃体量。由于需要对现有的门厅通风系统进行重大的结构改造和重新配置,地下室的开挖创造了一个两层通高的空间。
街道上的玻璃参照上面的传统铁艺进行了精细设计。玻璃面板与保罗·哈姆林大厅的框架比例相似,玻璃之间通过加盖相互连接。该扩建结构细节清晰,由拉丝不锈钢制成,在北端入口则使用了深色镀铜黄铜。

西面的科文特花园广场入口曾被认为是“后门”,现在有超过50%的顾客通过这一入口进入该建筑,可用的开放空间受到两个零售单元的限制,上图是舞台货运区。为了克服这个问题,斯坦顿·威廉姆斯(Stanton Williams)采用了一种新的曲面玻璃材料,将其用于旋转门和一个位于玻璃入口之后的落地数字屏幕。新入口位于广场柱廊内,欢迎经过科文特花园的游客。

新门厅——重新设计的Bow Street和广场入口通过扩建的门厅连接起来,该门厅贯穿一楼,向下延伸至林伯里厅的新门厅。这些门厅由两层通高空间连接,可以用于即兴活动和表演。斯坦顿·威廉姆斯通过对衣帽间和女厕所的空间重新配置,以及对票房运作的重新思考,实现了门厅空间的显著增加。





改建的门厅布置了一个更大的商店(由Drinkall Dean设计)和咖啡馆,开放通透的空间让它们易于辨认。主楼梯的重新布置满足了上层的公共使用需求。


新的林伯里厅——该礼堂替代了现有工作室剧院,变得更加舒适且充满个性,可到达性和技术性能也得到了提高,保持了一个400座位礼堂的亲密感。礼堂采用了精心制作的美国黑胡桃木,并安置了最先进的可调节软垫座椅,同时具备先进的电声技术。



从2018年12月起,除了主楼外,新剧院还将作为皇家芭蕾舞团和皇家歌剧公司的实验场地,向公众开放表演。

翻新的圆形剧场和圆形剧场平台——在上层,斯坦顿·威廉姆斯开放了圆形剧场大厅,并增设了由Linse事务所设计的新酒吧和230个餐厅,将向表演者与公众开放。


圆形剧场平台采用新的滑动玻璃和屋顶灯进行部分围合,形成一个全年可用的玻璃温室。站在露台上,人们不仅可以俯瞰广场,还可以一瞥包括服装部门在内的后台区域。

设计图纸:

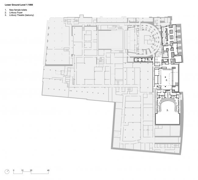
▲ 地下一层平面图

▲(BIM教程)一层平面图

▲保罗·哈姆林大厅平面图

▲圆形剧场平面图

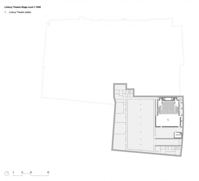
▲林伯里厅平面图

▲剖面图
项目信息:
建筑事务所:Stanton Williams
地址:伦敦,英国
类别:更新项目
项目年份:2018
摄影师:Hufton+Crow
客户:Royal Opera House
餐厅室内设计:Studio Linse
零售室内设计:Drinkall Dean
项目负责人:Platform | Equals Consulting
施工负责人:Rise
五层,零售&克罗尔承包人:3 Interiors
灯光设计:Studio Fractal
寻路/标志设计:Endpoint
服务工程师:Arup
结构工程师:Arup | Robert Bird Group
声学工程师:Arup Acoustics
消防工程师:Arup Fire
人流集散:Arup
剧院顾问:Charcoalblue
入口顾问:All Clear Designs
规划顾问:Gerald Eve | The Planning Lab
遗产顾问:Donald Insall Associates
餐饮顾问:Kendrick Hobbs
核准检查员:AIS
IT顾问:Fixation Networks

BIM建筑网




评论前必须登录!
注册