
▲ 胜利小学附属幼儿园中庭
在钱江新城高密度的住宅高层包围之下,杭州胜利小学附属幼儿园的用地十分局促,不足3900平方米,但仍需满足9个班级的规模与丰富多元的功能要求。严苛的场地限制下,建筑师通过一系列设计策略,在满足功能诉求的同时,坚守为儿童创造充满阳光与活力的空间这一初心。

▲ 附属幼儿园主入口与胜利小学形体设计的呼应
限制中的创造
户外与自然是幼儿健康发展的关键空间,为争取尽可能多的户外活动空间并减少南向高层住宅以及小学的阴影影响,建筑体块沿东、北、西侧红线边界集中设置,围合出安静、宽阔的户外空间。教学单元作为孩子的高频活动空间,以互相错动、正南北向的盒子插入整个建筑体块,获得尽可能长的日照时间。
为解决功能面积与容积率的矛盾,向地下与屋顶露台借空间,将多功能活动室及厨房等辅助用房安排在地下室,并以天窗、高侧窗、下沉庭院等满足其通风与采光的需求,充分利用一层与二层的屋顶露台为孩子们增加安全的户外活动场地。

▲ 形体生成

▲ 紧贴用地红线的主入口界面

▲ 宁静的内庭院

▲ 户外活动空间与露台活动场地

▲ 具有下沉庭院的地下多功能活动室

▲ 为了减少西侧小学对幼儿园的压迫感和增加庭院的采光通风,将西侧端部的多功能活动室埋于地下
光与影的设计
建筑师通过光与影、明与暗的设计,尝试塑造出启发孩子想象力的空间。
主入口门(BIM设计)厅中庭是一个充满光的空间,光线从圆角三角形天窗中洒下,透过直跑楼梯的栏杆形成丰富的阴影,午后时分,光又将从西侧的点窗斜斜射入中庭。孩子们可以尽情在中庭中沿着楼梯上下奔跑嬉戏,追逐变化的影子,与“激发幼儿生命活力、促进自主性发展”的生命教育理念相契合。

▲ 蓝色飘带设计贯穿整个中庭

▲ 中庭采光顶

▲ 洒满阳光的走廊和空间
室内教学单元中,光线透过落地窗的窗框,被分割为一个个错动的长方形,以不同寻常的窗设计启发孩子的创造力。而半地下室活动空间中,三个异形、色彩各异的采光天窗洞口,让孩子们情不自禁地仰望,思考、探索着这神秘斑斓的光。

▲ 教学单元立面设计

▲ 教学单元室内

▲ 美术创意室

▲ 神秘的彩色天光

▲ 多功能活动室采光顶突出的造型
外立面界面上,高低错落、大小不一的凹凸点窗传达着自由创意的特质,这些窗在室内的高度不同,伴随着孩子的成长,提供坐立、倚靠、仰望等使用方式,让孩子们有着别样洞察外界的体验。

▲ 外立面高低错落的点窗

▲ 室内高低错落的观察窗洞
作为点缀的三原色
建筑师克制地运用着色彩,以原胜利小学标志中的藤黄色、天蓝色与草绿色作为设计的三原色,以点缀对比的手法激发轻松有趣的活泼氛围。
在整体浅灰色外立面中,教学单元体块通过明快的三原色凸显其作为漂浮积木块的印象,也提高孩子对自己教室的识别性。但在教学单元内部,仍以乳白色墙面与木质地板为主,以营造温馨的氛围,依据活动区与午睡区的使用时长和对采光及空间高度的要求不同,对4.5米基本层高单元采用loft设计手法,不仅有效提高空间利用率,还给予孩子们流动而温馨的阁楼空间体验。
室内整体以明亮的乳白色为基底,局部以色彩作为室内外空间延续或分割的暗示,如中庭通过蓝色的飘带将地面、楼梯、走廊与天窗联系起来,加强空间的整体性;每层教学单元的走廊窗套选取不同的三原色,便于孩子分辨自己所在的楼层。

▲ 外立面凹凸点窗的色彩

▲ 外立面整体浅灰基调

▲ 活动区与午睡区分离的Loft教学单元
持续渐进的共建过程
从项目启动之初到落成开园一年以来,整个空间营造过程乃至使用的完善离不开建筑师与各方参与者间的持续沟通。建筑师为促进孩子们的空间认知与体验设立了带直跑楼梯的通高采光中庭,在设计之初通过沟通使得幼儿园的这一灵魂空间不断得到各方的理解和尊重。建筑师还积极听取了业主的优化建议,为使用方的师生们自我发挥与自主布置创造了一系列留白空间。尊重设计的使用方充分理解建筑师的设计理念,通过与空间的互动、适应与调整,对设计进行二次升华,在教学单元、活动室、甚至中庭、走廊与户外场所中,灵活(BIM)地融入丰富的教学、游戏与交流活动,让孩子们在不同空间中尽情享受着体验探索的乐趣。

▲ 孩子们在中庭中的体验与探索

▲ 师生等使用方与空间的布置与互动
设计图纸:

▲ 总图

▲ 地下一层平面图

▲ 一层平面图

▲ 二层平面图

▲ 三层平面图

▲ 南立面图与主入口立面图

▲ 北立面图和西立面图

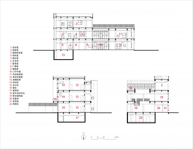
▲ 剖面图
项目信息
项目名称: 杭州市胜利小学附属幼儿园
建筑设计单位: 浙江大学建筑设计研究院有限公司
设计:2014年10月—2015年11月;
完成:2016年08月-2018年7月
地上建筑面积:2561平方米
总建筑面积:3485平方米
主创建筑师:范须壮
建筑设计团队:王溯、张元升、徐丹华
结构设计团队:金振奋、李少华、陈圣贤
设备设计团队:方火明、林璐佳、郑国兴、黄钦鹏、任晓东、李向群、叶敏捷、周艳昕
室内设计团队:李静源、朱利峰、田宁、朱晓燕、任志勇
景观设计团队:姚浩军、李将甫、周文强、李文江
幕墙设计团队:姜琦
摄影版权:章勇
客户:杭州市钱江新城建设指挥部

BIM建筑网





评论前必须登录!
注册