
郡安里度假酒店地处莫干山未遭破坏的山区,其中茂密的竹林和松林,高耸入云的群山,隐匿其间的湖泊与瀑布,以及风景如画的茶园,使莫干山地区被美誉为 “上海汉普顿”。

与Jade + Q&A的建筑师Martin Jochman合作,我们团队将外部建筑风格精髓投射在室内设计上,呈现出鲜明、素然、渺渺仙境般引人入胜的视觉体验。Stylus Studio的设计通过协调自然和工艺以及东方敏感性和国际美学来传递每一种感觉,从而提供一个具有强烈美感且高度体贴的酒店。

主体设计理念和立面元素的灵感来自于厚实雨云在连绵起伏山脉上滚动后形成的瀑布,河流和湖泊的效果。建筑的规划和立面设计充分地满足独特性,功能性及与莫干山周围的自然环境密切相关性。
当客人步入酒店大堂就会被一个戏剧性的“竹云”楼梯迎接,由灯光带领下,他们可以像采茶农慢慢攀至酒店各层的不同空间。



阳光通过建筑天窗投影至室内,和建筑形体构成共鸣的定制特色四环竹鳍吊灯辉影着室内空间。



遵循总体设计DNA,宴会厅和大堂茶室灵感来自于莫干山周边地区的原生茶花。在茶室,黄芽茶花花瓣被扩大重新诠释为屏风为客人提供半开放的私密空间,在宴会厅黄芽茶花化身为天花及墙身造型,形成强烈的视觉冲击感,并与现代化水晶吊灯形成一体,创建壮观及精致优雅的气氛,影音设备及相关的机电设备被巧妙的隐藏于其中,配合着酒店进行各种场合的设定及使用。





除了在空间上创造具戏剧性和令人叹为观止的强烈美感外,我们对看不到的美也十分重视,95%的施工建设材料来自800公里范围内的场地 (包括所有竹木材,金属,石材,玻璃等),确保碳足迹达到最低限度。酒店内的所有艺术品都聘用了当地的艺术家及手工艺匠人进行量身定制,我们不仅从他们的技能中受益也为当地经济给予了支持。







在所有项目中,Stylus Studio致力于创造有意义和拥有持久价值的设计。我们专注于每一个项目,每一道工序,努力使项目的最终用户和客户得到超出预期的回报。我们将人置于工作的中心,以寻觅真意为荣,尊重和崇尚人性为本,独创性和具影响力为挑战,为每个空间注入丰富的情感和动容的故事。这些故事不仅让人能切身体会,亦能触动各感官细胞,每一个设计目标都是希望超出客户预期,郡安理国际会议中心也不例外。从连绵的山,茶园,竹林,云海甚至到当地工匠的手艺,莫干山的独有风情通过室内设计被带进客人的体验中。







设计图纸:

▲ 一层平面图

▲二层平面图

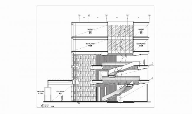
▲剖(BIM教程)面图

▲剖面图

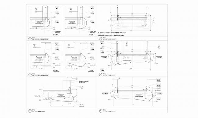
▲大样图

▲大样图

▲大样图
项目信息:
建筑事务所:Stylus Studio
地址:莫干山,湖州,浙江,中国
(BIM)类别:酒店
主创建筑师:Martin Jochman Dip Arch RIBA
室内设计师:Simon Zeng, Vincent Zhang
建筑设计:JADE +QA (再绿深坑建筑), Martin Jochman (马丁.约克曼 ),Kiona Qing W. (王清)
建筑面积:9600.0 平方米
项目年份:2018
摄影师:Edmon Leong
客户:德清御龙旅游发展有限公司,戴胜庆,孙家峰(Max Sun)
施工:浙江昆仑建设集团股份有限公司,丁原根,石国,蒋立军
灯光设计:陈翅麒
结构深化设计:南京工业大学,程小武 孙小鸾
其余主要参与项目成员:王玮秋,莫顺飞,张丽美,陈晓康,马贵进,徐伟,张坚,李将甫,陆伟等

BIM建筑网





评论前必须登录!
注册