文明的进步和幸福指数并非是简单的正比关系。上海,作为中国GDP最高的城市,也是闻名世界的国际大都市,城市及其(BIM工作)郊区的乡村,同样面临各自的困境和冲突。在城市打拼的普通市民,他们努力工作的回报,并不能完全化解现实的压力。而乡村社区和人居环境的衰落也同时在发生。
故事的缘起是委托人老宋居住在奉贤乡下需要照料的老母亲、年久失修的老屋危房;以及辛苦工作的孝顺儿子老宋在上海城区的住所难以给老人提供舒适独立的居住条件,老人也完全不能适应上海顶层阁楼的蜗居生活。

▲ 西北鸟瞰
老宋夫妻的梦想是退休后从上海城区回到家乡奉贤南宋村,将老家的危房拆除重建,造一栋适合老年人使用,全家老少都喜欢的新房子,更好的照顾自己已经82岁的老母亲。为了帮助在上海的女儿女婿安心工作减缓生活压力,老宋和太太商量邀请身体不太好的亲家夫妇一起回奉贤,方便相互照应抱团养老。为此作为工薪阶层的一大家几乎动用了所有积蓄,这栋房子也凝聚了他们一大家老少四代八口对未来田园生活的美好想象和热切期盼。

▲翻修前建筑师和老宋一家在交谈

▲老宋在他的新建房子前
用地范围及建造面积
项目用地范围为原有宅基地,审批通过的自建房建筑占地面积104平方米,两层总面积208平方米(实际建造可不超过213平方米)

▲夜景
当地建房规则
建筑限高:2层建筑层高限定为6.7米, 檐口标高8.0米,屋脊标高为8.0米+房屋进深的1/4
不计面积部分:2层以上,阳台(出挑不大于1.5米)、飘窗(出挑不大于0.6米)、楼梯平台(出挑不大于1.0米)不计入建筑面积
房屋居住情况
常住5人
委托人老宋:55岁,电工,身体健康
委托人夫人:53岁,退休,身体健康
老母亲:82岁,农民,农保,患心脏病、时常头晕、行动不便、听力障碍、不识字、不会讲普通话
亲家:68岁,退休,身体不好,经历2次大手术,有时需要用轮椅
亲家母:66岁,退休,患腰椎颈椎疾病,神经衰弱,睡眠质量不佳
周末节假日回家3人
女儿:31岁,公务员
女婿:36岁,通信行业
外孙女:5岁
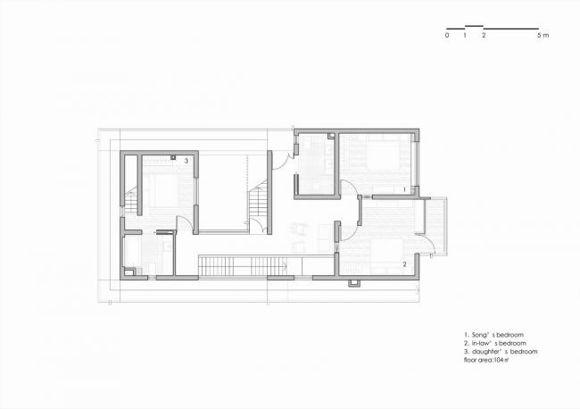
设计延续奉贤当地新民居二开间朝南的空间格局,在规则方正的体量中心运用新民居不常用的天井,形成空间和生活的中心。五个有确定使用对象的卧室和不同尺度的公共空间围绕天井布局,形成独立性、私密性和公共性交织互联,兼具仪式感和归属感的家。

▲外部全景

▲外部局部
一层起居室和老太太卧室朝南,卧室内仍然使用老太太以前用的雕花木床等老家具,老太太卧室也是全家温馨生活记忆的场所,是讲故事的地方。卧室旁边布置卫生间,尺寸放大的淋浴间可以二人使用,需要时为老人洗浴提供帮助。起居室是全家一起日常使用和待客活动的地方,壁炉是起居室的中心,冬季寒夜围炉夜话,其乐融融。

▲一层平面图

▲ 起居室

▲ 一层老太太卧室
穿过房子中心的天井,北侧是餐厅和厨房,开放厨房和餐厅是一个大空间,是大家一起做家务聊天餐聚的地方,根据业主的要求,厨房使用了煤气灶和土灶二套灶具,不会用煤气灶的老太太也能自己做饭。壁炉和土灶形成二种生活方式的快速切换。
天井是建筑的中心,它是精神性的,站在天井中间地面镶嵌的不锈钢宋字上,老宋会强烈感知属于他们家的一方天地。天井也是功能性的,建筑北侧的房间都能朝南向通风采光,这里也是一家人户外活动、晾衣休憩的日常场所。

▲ 庭院天井
建筑二层南侧是二间相邻朝南的卧室,供委托人老宋和亲家二对夫妻使用,方便身体健康的委托人夫妇照应身体不太好的亲家夫妻,二间卧室连着开放的家庭室,亲家们不用下楼就可以在这里休憩聊天。从一楼大门旁边起步环绕建筑设置的坡道也在这里从室外进入室内,方便轮椅上下。家庭室旁边的无障碍卫生间可供轮椅进出,二对亲家相互照应使用。二楼北侧是老宋女儿女婿的卧室,年青人节假日回来需要有自己相对独立的空间,方便回家看望、陪伴和照顾老人时使用。

▲ 二层平面图

▲ 楼梯上的自然光线

▲ 二楼家庭室一角
三层合理利用当地建房规则,通过采用天井扩大房屋进深加大了坡屋顶下面的空间高度,坡屋顶下的空间绝大部分都能正常使用,南面布置成影音室和活动室,还设计了南向的大露台,远眺周边田园风光。三层北面是外孙女的卧室和活动室,和二层她爸爸妈妈的卧室形成有趣的楼中楼跃层结构,从爸妈卧室有单独的小楼梯到上面,自成一小天地,相对独立、现代和趣味性的空间设置使得年轻一代更加乐意经常自己或带亲朋好友回家相聚。

▲ 三层平面图

▲ 入夜全景
老宋亲家夫妇有时候会使用轮椅,他们目前在上海的小区没有电梯,很少能下楼活动。坡道的设置主要是满足轮椅上下的需求,也是老人适当户外活动,感受建筑周边田园风光,接触自然联络邻里的场所。坡道提供了另外一条感知建筑空间的路径,设计创造的大量半户外和户外场所具有丰富的游逛性和体验性。

▲ 南立面图

▲ 西立面图

▲ 北立面图

▲ 东立面图

▲ 鸟瞰房子和周边
一层的起居室、餐厅和天井,二层的家庭室和外挑阳台,三层的活动室和大露台,建筑内部丰富的多层次室内外公共空间通过室内和庭院中间二个楼梯串联,是营造家庭归属感的重要场所和催化剂,而老人之间、特别是老年人和青年人及小朋友之间的日常交流互动是老年人保持正常思维能力促进身心健康的重要因素。适老性住宅除了在功能上满足老年生活的需求,让他们感觉用起来很方便很舒服,更需要得到年轻人喜欢,年轻人带着孩子多回来陪伴,才是老人最开心的事情。

▲ 新房子里激动的家人
设计在一层老太太卧室和起居室之间,二层亲家卧室之间及卧室和家庭室之间均设置了观察窗,既可以从公共空间方便观察到老人的活动状态,老人们也可以在卧室感受家庭活动的氛围。房子里面一楼和二楼楼梯间及走廊拐角处装有反射镜,公共空间尽量不留死角,方便老人孩子彼此观察照应,年轻人也很乐意对着镜子自拍美照,开心分享。

▲ 墙上的小开窗

▲ 通往二层家庭室的楼梯

▲ 通往二层的楼梯

▲ 楼梯间的镜子
屋后不大的庭院里仍然留出了五陇菜地,是老太太日常劳作的私人定制菜园,竹篱笆围出的半户外辅房,给农村屋外清洗的使用习惯提供了便利条件,也用于放置日常使用的农具。

▲ 有小块种植土地的花园
绿水青山粉墙田园是秀美江南典型的动人画面,方案阶段的设计构想是采用白水泥清水混凝(BIM培训)土墙面,表现建筑纯净的肌理,成为绿色田园中浪漫的养老居所。由于造价及工期原因,实际建造改为砖混结构,老宋家拆除的老房子外墙和地面都是使用的水泥砂浆,我们希望白水泥饰面的策略能够有效的回应熟悉的文脉环境。

▲ 东部局部
十年以前工作室完成了混凝土缝之宅项目,实施过程中和上海禾泰建材刘娟一起对清水混凝土墙面修补和保护进行研究有过成功的合作,之后在CIPEA四号住宅中也采用了类似外墙饰面材料和技术,这次时间紧任务急造价低,砖混结构也不同于混凝土墙面,基层需采用弹性防水膜仔细处理,刘娟再次出手相助采用白色清水防护材料保证了外立面效果。PanDOMO邦喜建材朱永彬也是在几乎不可能完成的时间里,克服交叉施工的困难完成了室内公共区域地面和墙面饰面工程,为建筑内部空间营造了自然的水泥肌理触感。
城乡一体,乡村振兴的时代使命无法一蹴而就,然而对于家住上海城区的老宋,一个简单的,追求幸福生活的愿望正在实现,成为时代大潮的一分子。年轻人在市区勉力工作安居乐业,50公里之外,老年人在奉贤老家老有所养,情有所依。一个大家庭的亲密血缘关系,将城乡空间紧密的联系在一起。


▲ 晨景

▲ 总平面图

▲ 剖面图
项目信息:
建筑事务所:张雷联合建筑事务所
地址:奉贤,中国
类别:独立住宅
主持建筑师:张雷
设计团队:洪思遥,章程,袁子燕
室内设计:马海依,黄荣
建筑面积:280.0 m2
项目年份:2018
摄影师:姚力

BIM建筑网





评论前必须登录!
注册