

最近完成的 Bastion 社区是由58个独立单元组成的保障住房项目,为经历过9·11的退伍军人和他们的家人服务,他们其中许多人需要接受终身治疗。基于共同的生活经历,Bastion 将他们集中起来,建立健康社区疗养模式,以便长期护理。这是一种独特的住房类型,开创了先河,旨在解决专业护理设施与普通住房之间的差距。



该项目位于路易斯安那州新奥尔良的 Gentilly 社区,最初由战后退伍军人在郊区热潮期间开发,是历史上一个繁荣的城市社区,但它由于卡特里娜飓风造成的洪水衰败。基地是一块罕见的5.5英亩的连续地块,直到洪水泛滥前都作为大型混合住宅区。距离伦敦运河溃口几百英尺(洪水的来源),故在前期必须清理剩余的残骸。

经过十多年的空缺,Bastion选择了该基地来建立他们的住房社区,这个社区应该是可扩张的,有序的空间组织,既满足功能需求,又融入周围环境。最终建筑设计和场地设计经济、可持续且具有灵活性。虽然项目的形式可能看起来有点复杂,但项目的构建逻辑源于单户和双户住宅的基本模块。桩支撑起住宅,使其悬浮在地面之上,为地下水渗透提供空间,同时确保古老的橡树根系不受干扰。



在住房规模上,基本单元两两配对:每栋住宅由两个连接的单元组成,并且面向另一栋住宅,有效地创建了一个由四个邻居共享的开放式庭院,确保居民之间形成积极的社交网络。每个组团被安插在原有橡树之间,通过较大的中央庭院联系,将居民与社区连接起来,同时仍与周围社区保持开放的关系。


设计图纸:

▲ 总平面图

▲场地分析图
、
▲单元分布图

▲单元分析

▲密度(BIM培训)分析图

▲形态分析图

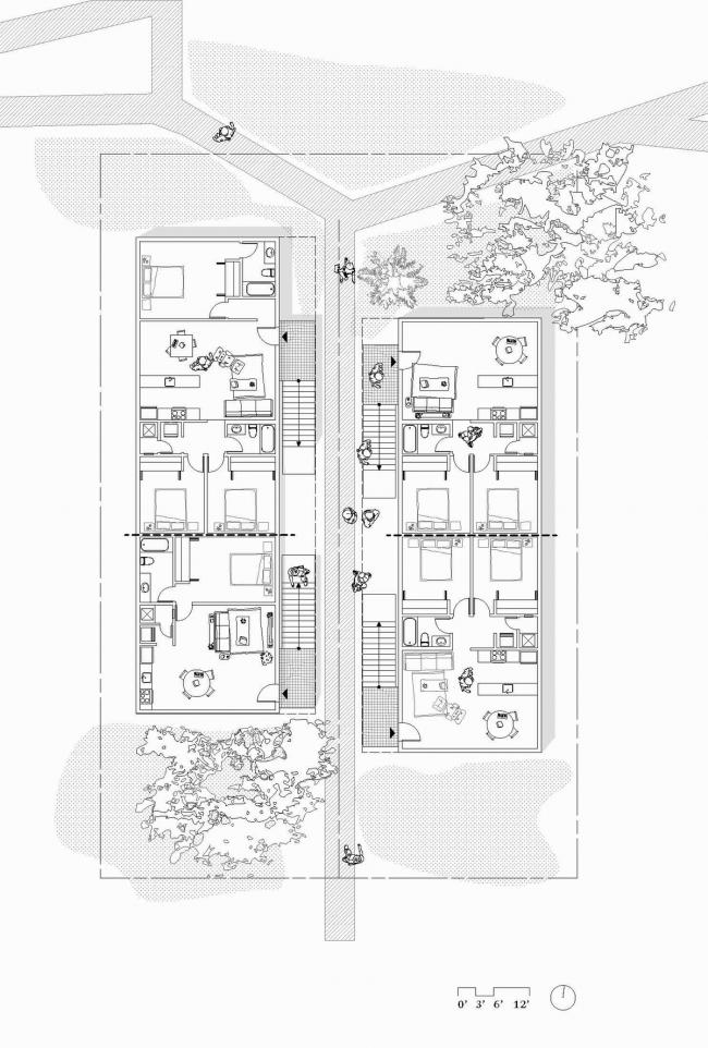
▲单元平面图

▲立面图

▲立面图

▲剖面图

▲渲染图
项目信息:
建筑事务所:OJT
地址:1901 Mirabeau Ave, New Orleans, LA 70122,美国
类别:集合住宅
项目团队:Robert Baddour, Travis Bost, Patrick Daurio, Rebe(BIM教程)cca Fitzgerald, Sabeen Hasan, Lauren Hickman, Kristian Mizes, Jessica O’Dell, Jonathan Tate
建筑面积:56600.0 ft2
项目年份:2018
摄影师:William Crocker,Jackson Hill
厂家:Sherwin-Williams, James Hardie Company
工程顾问:Robert B. Anderson, LLC
结构工程师:Schrenk
市政工程师:Endom & Flanagan
开发商:Renaissance Property Group

BIM建筑网





评论前必须登录!
注册