
ArchUnits|一栋设计工作室近期完成了上海静安寺附近一处建筑更新,将一栋陈旧、拥挤的90年代旧式办公楼(静安商楼)转化成了开放、交流、共享的新型办公休闲社区(MORE华山)。

建筑位于前法租界区域的边界地带。建筑本身虽然并非历史建筑,但它被葱郁的香樟树和绵延的花(BIM培训)园里弄住宅环绕,周围平和而沉静。因为历史风貌区附近严格的改造限制,因此从设计策略上我们选择不改变原有建筑高度、建筑轮廓和主体结构。面向华山路的一大片混凝土实墙是原建筑的至高点,并且被视为此建筑的辨识标志。它被保留了下来,并且成为了设计的起点。

由这面墙展开,借鉴几何拓扑的一些技术,ArchUnits以关键部位的一些曲面变形重构了外墙面的(BIM建筑)形态关系。以局部带动整体,缓和了原来生硬的建筑边界,从而“柔化”整栋大楼的视觉观感。这使得建筑面向周边历史街区的气场更加柔和。


立面的虚实层次也进一步丰富:既有高墙为实;半实半虚的竖向格栅提供西晒遮阳,从而获得更均匀的办公光线环境;两者之间,我们留出了透明的缝隙,这一缝隙对应着室内的中庭,将室外的阳光和树影带入室内。丰富的透气层次感削弱了建筑的体积感,从而也减轻对周围老房子的压迫感。


在室内,ArchUnits则大刀阔斧地使用减法。克制的材质使用和简洁的边界突出了贯穿四层的中庭的空间感。这一中庭空间也如实映射了外部立面,制造了密切的内外关联性。这使得整栋建筑有了一个面积虽小但名副其实的空间中心,人员、阳光、空气、人员、交流都围绕此密切展开。




中庭作为空间中心,需要一个焦点。我们选择让楼梯扮演此角色,成为一个独特的空间装置。重新设计的楼梯逐层盘旋舞动,创造一个独属的中庭形象,吸引更多的人使用中庭,激励交流的密度,起到了画龙点睛的作用。


设计图纸:

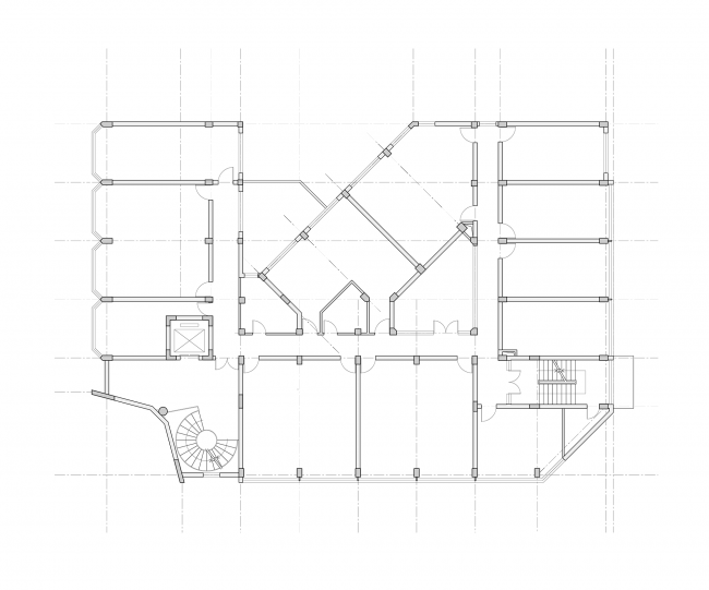
▲ 原平面图

▲原立面图

▲原立面图

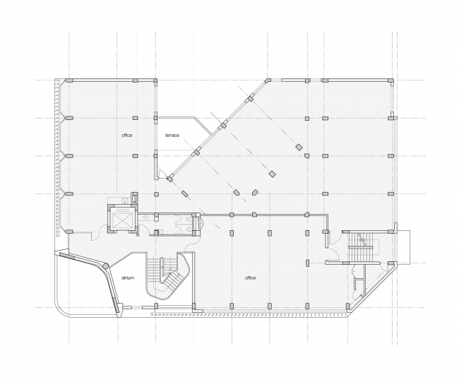
▲新平面图

▲新立面图

▲外立面图
项目信息:
业主:致灏投资
建筑师:ArchUnits|一栋设计工作室
网站:http://www.archunits.com/
设计团队:张朔炯,倪晨昊,刘林,郑思宇
结构和机电:上海爱建建筑设计院
照明:张晨露
摄影:苏圣亮
地址:上海市静安区华山路
面积:2800 m2
完工时间:2019.01

BIM建筑网





评论前必须登录!
注册