

沪西新地标
天山电影院坐落于上海天山路,曾是沪西最为知名的影院之一,但随着(BIM工程师)上海新虹桥地区的飞速发展,如今的天山路已然发展成一条繁华的商业街,老旧的天山影院与其周边林立的现代建筑、商场未免略显不合。因此,长宁区政府决定对这一国营影院展开一次改扩建,并更名为上海虹桥艺术中心。经三轮历时五年的设计招投标竞赛,BAU最终胜出,并获得了上海天山电影院改扩建设计合同。

功能多元化
改扩建后的天山电影院更名为虹桥艺术中心,不仅拥有了七间不同体量的电影放映厅,同时也包含了一间1000座的中型剧场。由于电影院和剧院有着不同的观众群,通常被视作两类不同的文化娱乐场所而独立建设。



而本项目则通过公共大堂区域将两大功能相互衔接,并在剧院和电影院之间打造出一大过渡空间,不仅确保了两大功能区各自的特色,也促进了影视与表演艺术的交融,吸引不同的观众群。
不同元素的融合
为了能够更加清晰地表现出剧院及电影院两大功能,BAU在外立面设计上采用了两种截然不同效果的立面材料——传统的剧院采用了传统的石料,宛如整块巨石,下方由圆柱及大堂的旋转楼梯支撑;而现代化的电影放映厅则采用了极具现代风的金属板外立面,犹如一个个金属盒,相互堆叠,最大的放映厅则架设于街角。




室内公共大堂内安设了售票处、咖啡馆、临时展场、活动展区等设施,游客可在小憩的同时,眺望繁华的室外广场及街景。(本项目的景观也是由BAU所设计)





设计图纸:

▲ 总平面图

▲ 地下一层平面图

▲ 一层平面图

▲ 夹层平面图

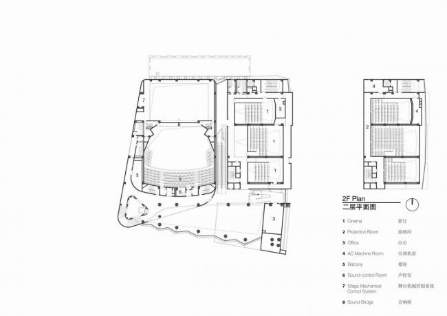
▲ 二层平面图

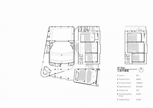
▲ 三层平面图

▲ 屋顶层平面图

▲ A-A 剖面

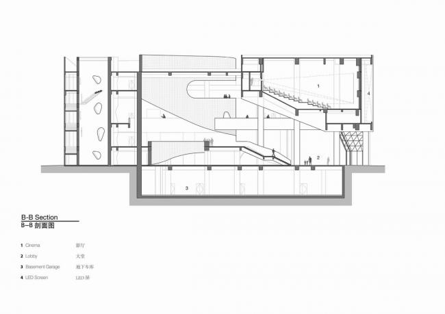
▲ B-B 剖面

▲ C-C 剖面

▲ D-D剖面

▲ 南立面

▲ 北立面

▲ 东立面

▲ 西立面

▲ 分析图

▲ 效果图
项目信息:
建筑事务所:BAU
地址:天山路888号,长宁区,上海市,中国
类别:更新项目
设计团队:James Brearley,Steve Whitford,蒋涵,罗怀利,刘帅,宋慧,杨(BIM教程)庆安,夏文,Emma Rytoft,荣昱,李福明
建筑面积:14300.0 平方米
项目年份:2016
摄影师:舒赫
厂家:VMZINC
景观设计:Robin Armstrong,罗莉,梁永勤,程琪
施工单位:江苏广宇建设集团有限公司
配合设计院:青岛时代建筑设计有限公司
室内设计:BAU + 上海建科建筑设计院有限公司
声学设计/机电设备噪声控制:上海市建筑科学研究院
剧场舞台工艺:浙江大丰实业股份有限公司
电影院工艺:上海永乐影视技术有限公司
3D渲染:BAU
业主:上海市长宁区文化局

BIM建筑网





评论前必须登录!
注册