麓湖水城占地1.92平方公里,位于成都天府大道南一段,于2019年3月27日被国家旅游局评定为4A级旅游景区,成为成都市进入天府新区核心区的“中央门廊”。
▼ 麓湖生态景区总平面

它作为当代湖泊型城市休闲旅游综合体的典范,以现代建筑艺术、人工湖泊生态景观两大资源为核心,通过建筑品鉴、当代艺术展示交流、精品园艺观光、运动健身、亲子游乐、科普教育等多元产品引领都市休闲新生活体验,是艺术观赏、游憩的场所。
▼游客中心区位

项目背景:一次提速的体验
为配合成都4A级景区建设计划,项目要求团队在5个月内完成全部设计并投入使用,因此项目设计优先考虑装配式。
设计理念
建筑原本的概念是“水城上的帆船”,意在表达轻盈的效果。为使建筑更好的同自然环境融合并缩短修建周期,主材选用了全胶合木结构,木柱木梁直接暴露,以减少装饰工程,并将木结构的质感美呈现出来。
建筑的门厅部分采用的是传统双坡式木构建筑,结合青砖和彩钢板的运用。
▼游客中心入口景观

▼西北视角,主厅和辅助用房的轻盈形态

▼西南视角

▼裸露的木梁柱


建筑中央廊道结合青砖墙体和景观设计,将场地前后自然形成两处别致的小庭院,结合入口水景设计,使建筑与自然景观融合。
▼入口廊道鸟瞰

▼水景景观

内部空间
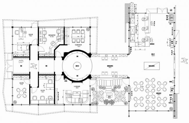
游客中心的大厅和后勤辅助部分分别由最简单的矩形和方形空间构成,并通过一个圆弧状的公共展示区和商品售卖廊道连成整体,从开放空间自然过度到私密。这种将原本单纯的交通空间同使用空间相融合的方式,给使用者创造了一种在行走中游玩的可能性,同麓湖水城的整体设计理念相统一。
▼平面图

▼连接前后两主体的圆弧状展示区

▼南立面图

▼北立面图

连接两个高空间的是一个低矮的过度廊道,是为了在狭小的用地和面积规模制约下创造两个感觉上更高大的公共空间。建筑内部去装饰化,暴露木结构原本的形态。所有隔墙均不到顶,使空间显得更为自由开敞。
▼连接前后两个空间的低矮廊道


景观设计
在进入麓客岛的临水坡地上,结合场地高差,布置出景区入户形象地——游客中心及景观起步区。
进入游客中心的台阶结合坡地拾级而(BIM教程)上,在达到坡地腰部位置的高度,利用镜面水形成开合的夹道。在建筑的外延平台,游客望向坡下湖面的视线与镜面水重叠,形成水天一色的场地。在台地的另一侧,一根导水槽挑出水面,并在五米的高度跌落到坡底,创造别样趣味。
▼游客中心前的入口台阶

▼在建筑外延平台的视线与镜面水景在同一水平线

▼5米高的导水槽景观

▼主入口立面

▼西立面

(BIM工程师)
▼剖面图

▼木结构图示

▼草图

项目信息:
设计方:HC+2 Studio
地址:天府大道,成都,四川,中国
类别:游客中心
总建筑师:胡腾、邰潇潇
建筑面积:330.0 平方米
项目年份:2018
摄影师:存在建筑,万华投资集团
厂家:Canfor, LP Brasil, BAYER
室内设计:子木空间设计
景观设计:昱道景观
项目管理团队:罗希、李国勤、胥川、李俊、余伟
土建施工团队:成都鼎鑫建筑工程有限公司
木结构施工及图纸深化:四川明迪木构建设工程有限公司
室内装修团队:四川时代建设集团有限公司
景观施工团队:四川罗汉园林工程有限公司

BIM建筑网





评论前必须登录!
注册