▼ 项目概览


项目位于巴西圣保罗村,其业主为一对年轻的夫妇及他们的两个孩子。
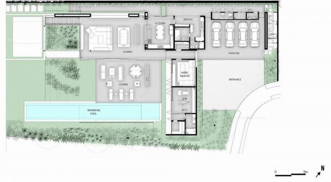
▼ 一层平面图

▼ 二层平面图

Perkins+Will圣保罗分公司承接了这个在陡坡上的项目,业主称他们想要一个一层楼的房子。建筑师将项目设计为“L”形,分成两个主要空间,第一个体块作为会客空间,包含房屋入口,被置于山坡的高位,同时起着隔离第二个体块的作用。在山坡相对低的位置则用于私人生活,其提供的隐私性远超所想。房屋布局合理,不仅所有的房间都直通花园,得到亲近自然的体验,而且所有的区域都能保证良好的隐私性和绝佳的通风。
▼ 通往二层入口的台阶

▼ 从台阶上看建筑(BIM工作)周边环境

▼ 从泳池一侧看建筑

▼ 一层车库

▼ 与花园相通,具有良好通风的室内


利用素混凝土、暖色木材、金属结构和通透的玻璃,搭配郁郁葱葱的景观设计,建筑营造出来的是一个现代但不冰冷的形象。通透的玻璃和自然材料的使用增加了建筑与自然的联系。为增加建筑的生态性,建筑师在第二个体量上设计了一个绿(BIM工程师)草屋顶。这些细节的设计同时增加了建筑的热气循环,而对于当地炎热的天气,这是至关重要的。
▼ 二层露台


▼ 暖色木材与混凝土打造的住宅


最后要提的一点是,在下坡处设计的悬挑泳池,让业主在沐浴的时候也能欣赏美丽的景色。
▼ 悬挑泳池

项目信息:
建筑事务所:Perkins+Will
项目区位:圣保罗,巴西
主创建筑师:Fernando Vidal
设计团队:Fernando Vidal, Julia Paoliello, Natália Martins, Fred Zara, Flavia Henriques e Rodrigo Gianoni
面积:700.0 m2
项目年份:2018
摄影师:Leonardo Finotti
厂家:Riberbond, Autodesk, Mazer marcenaria, Brich marmores e pedras nobres, Deca, Tresuno
工程师:Rocha Construtora
景观设计:Rodrigo Oliveira
合作方:Dulce Ferraz (Design de Interiores)

BIM建筑网





评论前必须登录!
注册