

根据现有的环境判断,本项目的首要目标是在法规允许的前提下,尽可能地拔高建筑的主要围护结构的高度,以保障最通畅的观景视野。
根据这点,考虑到场地的斜坡地形顺着观景视线逐渐下落;作为应对策略,本项目的设计意象呈现出“秋千(swing)”的形式。“秋千”的意象可以理解为一个结(BIM建筑)构骨架,它允许承载一个悬挂着的建筑体量,建筑轻轻悬浮在地面上,这样满足了场地边角的日照采光条件。


这个结构可以理解成一个脚手架系统,由10x40cm的层压木材构成。“脚手架”与建筑主体量相分离,由四道10.5米长的交叉梁,和四根6米高的双层木板柱(两块木板如三明治般夹住中间的梁)构成。四根木板柱精准地打在一块石制地基上,保护并支撑起了房子的底层。



作为补充,我们将垂直交通(楼梯)与中央天窗作为一个层次元素,用于统领和发散住宅的规划方案,并赋予建筑空间感。





在材料方面,我们优先考虑使用木材这种独特的材料,无论是木材的经济适用性,还是其在富盐碱环境中经久耐用的特点,木材均具有无可比拟的优势。




压制松木板使用10%的Cutek牌白色防水漆处理,外墙用1“x4”粗面盖板覆盖,与黑色防水漆处理,并进行了烟熏法除湿。室内地板使用了1“x5”无色陶瓷,室外平台则镶嵌了1 1/2“x5”浸制陶瓷。



室内空间:




设计图纸:

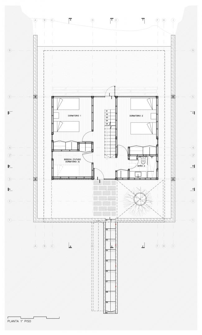
▲ 一层平面图

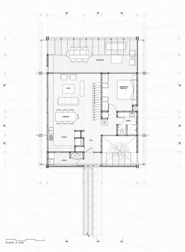
▲二层平面图

▲屋顶平面图

▲南立面图

▲北立面图

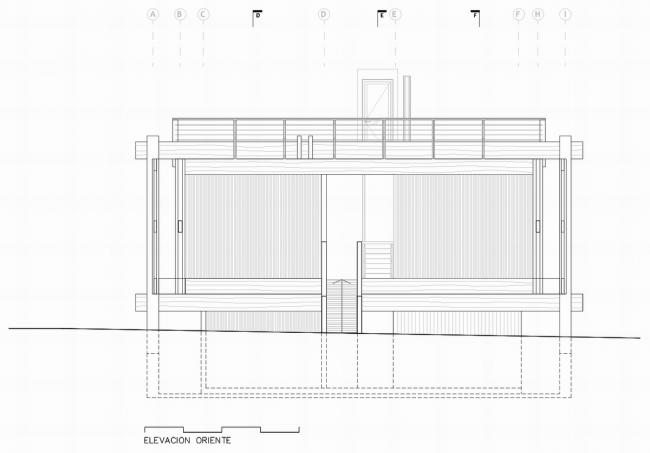
▲西立面图

▲东立面图

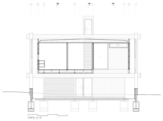
▲剖面图A-A

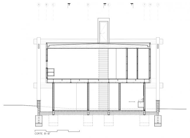
▲剖面图B-B

▲剖面图C-C

▲剖面图D-D

▲剖面图E-E

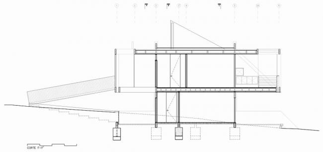
▲剖面图F-F

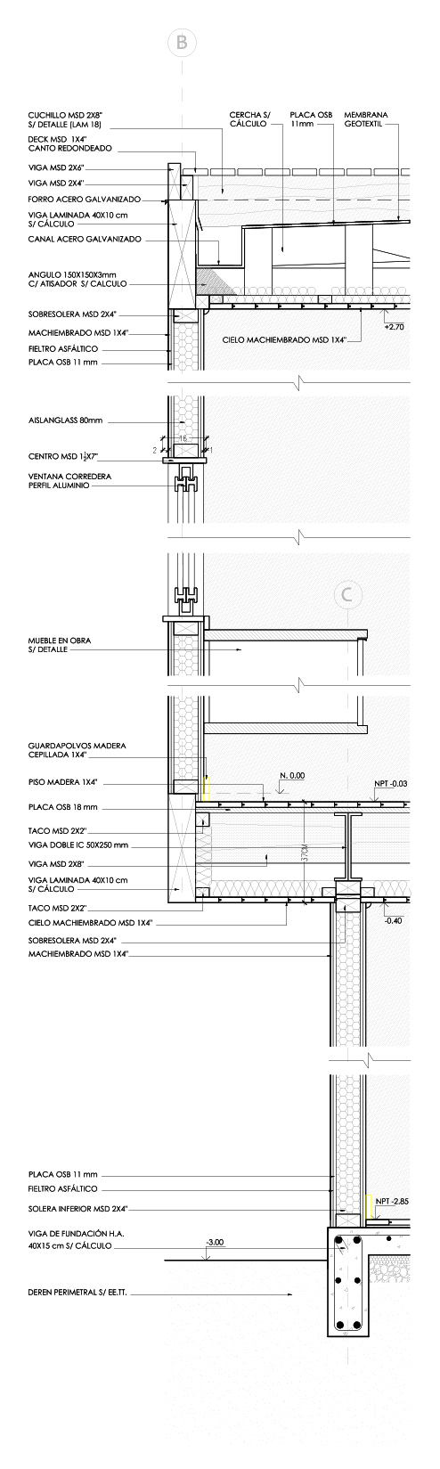
▲细部图1

▲细部图2

▲细部图3

▲细部图4
项目信息:
设计方:PAR Arquitectos
地址:Maitencillo,智利
类别:独立住宅
主创建筑师:Alvaro Cortés, Tomas Pardo
面积:135.0 m2
项目年份:2018
摄影师:Diego Elg(BIM设计)ueta
厂家:Arauco, Wet Proof, Haustek, Cutek, Autodesk, Google
设计团队:Cristian Merino, Diego Ortiz, Francisco Cortes
工程师:Alberto Ramirez

BIM建筑网





评论前必须登录!
注册