项目缘起
鱼乐山房,是杭州临安太湖源的一对农民夫妇在自有土地上经营的老牌农家乐。经营十多年来积累了极好的口碑。但200元包吃住的客单价越来越难以维持经营,淡旺季巨大的接待量差距和较低的客源素质水平也使得夫妇俩疲于应付,所以二人决定对山房的物理空间进行改造,以期提高盈利能力,并为客人创造更好的度假居住体验,让山房完成从农家乐到“高端”民宿的转变。
久舍营造工作室接受了业主的邀请,主持山房的建筑和室内空间改造设计工作。
场地原状

▲项目场地紧邻的山林与奔腾的溪水©久舍营造工作室
不同于新建建筑设计,改造设计面对的现状问题通常更为复杂。
山房所在白沙村位于天目群山环绕下的太湖源溪边,只通过一条省道与外界相连,颇如桃花源般与世隔绝。村庄周围景区繁多,旅游业发展很早,村内分布了众多形式各异的大小农家乐建筑。
山房原主体建筑位于场地南部,坐南朝北,背山靠林,是一个四层半高,五开间的庞然大物。和那个年代(2000年左右)全国盛行的景区旅游建筑一样,以仿青砖贴面,硬山坡屋顶和雕刻精致的花格门窗扇等符号化的做法,构成了所谓“中式”的乡村农家乐风格。

▲场地建筑原状鸟瞰,可看到溪水、省道、邻居住宅和场地内外的高差关系©久舍营造工作室

▲改造前建筑正(北)立面©久舍营造工作室
建筑北侧的台地庭院约15米见方,与西侧山野有截水沟相隔,山上汇水经此由下穿的涵管排入溪水。庭院北侧是一片竹林,隔开邻居红砖搭建的住宅。庭院东侧边界比紧邻的省道高近3米,形成台地。上由约3米进深的传统双坡木构廊亭和一栋餐厅包间建筑作为台地的边界;3米左右宽的台阶嵌入台地,作为场地主入口与下部的省道联通。台地东南角另有一栋两层高的餐饮辅楼(从省道看为三层),由外部楼梯进入上层。这些沿台地边布置的建筑在省道方向都呈现出2-3层的立面高度,主体建筑山墙面更是尺度巨大。

▲场地中建筑、台地、省道、溪水的关系©久舍营造工作室
溪水就在场地东侧自北向南流淌,比省道又低3米左右,作为太湖的主源头之一,此溪每当下雨就水声隆隆,在原建筑内也听得见。省道夹在场地与溪水景观之间,交通繁忙,有一定的噪音。
重见山水
综合这些信息,我们认为,稀缺的山水景观与地形高差是这块场地最具独特性的资源。
但嘈杂的省道,模糊的场地边界,封闭的房间设置等,都让客人堕入繁杂的日常,而对山水“视而不见”。青山与绿水只是山房周围与省道、车辆混杂的背景而已,并没有成为值得凝视的风景。
必须将“视而不见”的山水从混沌的环境背景中过滤出来,变成空间氛围体验的主题。只有这样,在山坳里的这一组大体量的建筑才有可能具备存在的合理性:它应能够与这片山水共舞,而不是像周边那些枉顾山的存在的农家乐建筑一样兀自高傲。——“重见山水”成为我们改造的目标。
山水,作为中国人肉身与精神的双重家园,历代都为空间营造者奉为模仿再现的对象。特别是众多处于城市地的江南园林,都在内部建立了一个超脱于外部世俗世界的山水空间。而我们的场地,虽处山林之地,但自身周界封闭,周边村舍屋宇建造粗糙简陋、面貌乏善可陈,省道嘈杂繁忙,对于场所空间氛围的营造都构成很大损害。
因此,我们需要将山房营造成为一个独立于外部世界的小宇宙。它不仅需要穿梭虫洞般幽深的入口才可到达;而且进入后的一切,都将远离尘世,只与山水共同呼吸。

▲原场地边的山景©久舍营造工作室
界定的场地
对于这块场地来说,那么大的建筑体量以如此松散的状态分布,使得外部场地呈现一种碎片化的状态,并且与省道、邻居菜地和山脚野林混杂在一起,不利于形成独立有效的场所氛围。因此,改造的第一步便是对场地的重新界定。

▲场地的重塑©久舍营造工作室
顺应地形的现有高差,我们将原有外部场地空间划分为三个部分:外部的省道,正对主体建筑的内院与坡地上的山野。最靠外的部分是省道、场地入口及停车区域。作为进入场地的前导空间,边界台地的高差宣告着外部世界的终止。台地之上正对主体建筑的部分设定为内院,作为山居氛围营造的最主要场地,内院与主体建筑构成隐含的轴线,在场地内形成“正观”的观景方向。内院和省道、山野之间以明确的界面隔开,动静分区。而山野部分则提供了各种活动体验的空间需要,坡地地形也易于对不同的活动区域在标高上自然划分。
场地经过重新界定,则内外有别,主次有序,动静相隔。一个内部世界的独立性与系统性才有可能被建立起来。

▲改造后总平面图©久舍营造工作室
深悄的动线
原场地的入口动线非常直接,从省道直接冲上台地内院,从主体建筑景观面横穿了原本就不大的院落,大堂的主景观面被不断进出的客人穿破。从外部嘈杂省道进入室内的过程也缺少缓冲,很难迅速进入山居的平静状态。

▲改造前后的入口动线对比©久舍营造工作室
改造中,我们保留了原主入口的位置,将它藏于一道台地与道路之间的新增影壁墙之后。再将原本垂直于台地的台阶改造为平行嵌进台地边缘的折跑阶梯,置入重新整合的现代木构廊架之下。这个沿省道边展开的木廊架占据了原来传统木构廊亭与独栋餐厅包间的位置,将入口台阶、廊亭活动和入口左侧的新增办公室整合在一起,成为一个30米长的水平超尺度界面。连续的可开闭木格栅窗扇系统从立面上统一了廊架内的不同功能;由廊架内延伸到外部的均质方木椽条也暗示了这个界面的深度,并削弱了后部主体建筑的外部高度;而连续窗扇下的水平披檐也将入口立面的视觉高度有效降低,台地的高差从立面被暗示出来。

▲改造后入口动线与视线©久舍营造工作室

▲入口立面©赵奕龙
由入口进入廊架,阶梯抬升的方向及上部屋顶的倾斜,进一步强化了地形的抬升与山景的高低。原本省道边的嘈杂氛围,经过影壁墙、木构廊架的基座,以及两段折跑阶梯中间的石块墙的多次阻隔后已得到很大程度的缓解。

▲入口阶梯,石墙后高处为内院溢入的天光 ©范久江
随着爬升,外部的山景天光由廊架外侧的连续窗洞溢入,省道车流被窗下墙遮挡,但流动的溪水声回响耳边,客人在爬升过程中便逐渐产生了溪山行旅的意境;同时,内院的景致,也在廊架内侧细密的竖向木格栅的过滤下,渗透出碎片化的光影。

▲阶梯右侧窗下墙及倾斜屋面下溢入的山色天光,左侧投下经木格栅过滤的内院光线©赵奕龙

▲入口折跑台阶溢入的山景©赵奕龙
设计将四层楼主体建筑的主入口从北侧正立面转移到建筑东侧山墙——由木廊架、二层独立辅楼和主体建筑围合的三角形区域内。从阶梯上来一直到山墙边,动线出现了非正交的转折。这一动作,首先将陡坎和主体建筑山墙之间的偏角以动线的连续边界整合;其次,原本台地上细碎的外部空间也被动线切分为入口三角院和内庭水院,两个院子都拥有了迥异的气氛和尺度;再者,在三角院与内院重叠处的一条短边界面上,我们设置了可以从一角窥视内部水院的横向窗洞,定格了内部水院可望而暂不可达的静谧画面。

▲从阶梯转向主体建筑山墙的非正交转折©赵奕龙

▲入口阶梯到顶后回看,溪对岸的山景从打开的窗扇中铺面而来©赵奕龙

▲从廊道转折处一窥内院 ©范久江

▲从三角过院中看入口路径转折(左侧廊道后白墙为主体建筑山墙)©赵奕龙
经过三角院落后,贴主体建筑山墙面,进入建筑内的走道,原本廊院的阴翳变得更为昏,只有走道内部地面反射的外部天光。向右转(图9中6位置)进接待大堂,站在大堂正中向院落看去,视线豁然开朗:一片平静的水面从大堂外檐下铺陈开去,远山在水岸对面三道片墙与竹林后露出云雾缭绕的顶部,左侧的长亭,右侧水榭(从省道方向看为水平木构廊架)的细密均质的木格栅界面,都由水面倒映后使山水景观成为视野中的饱满主题。压低的大堂外檐、对称的立柱、青石设的平台,都让宁静致远的山居氛围得以在仪式感的观景空间内稳定呈现。

▲主体建筑内回看入口廊道(圆窗中可见二层辅楼局部立面)©赵奕龙

▲大厅北侧主景观面©赵奕龙
至此,整条入口动线在经过遮隐、转折、抬升、停顿、窥视、远离、钻入、放开的一系列操作后,达到最终的高潮。
这一全新入口动线的设计,使山景、院景和建筑自身构成的景观,以不同的面相呈现在体验者的面前。谨慎控制的光线和渐进叙事的场景强化着溪边地形的抬升与方向的转换,极大增加了山地空间的信息稠度。从外部省道边的喧嚣,到折跑台阶的廊架,从省道一侧的高处山景,到被窥探一角但暂难进入的静谧水院,从阴翳的屋内廊道,到大厅正对的静谧山景,这种声音、重量、高度、光线的明显变化,密集地调动着客人的好奇心和期待感;多次转折也拉长了从入口到进入主体建筑的时空心理距离,近在咫尺的内院与省道仿佛山腰与山脚般遥远,一个独立于外部的山中小世界得以初步建立。
静院和动院

▲整体动线/静院与动院©久舍营造工作室
静院与动院由一条带毛石墙的敞廊隔开,一平一坡,一静一动,一主一次,构成了静观山水与漫游山林的不同活动主题。
1. 静院
大堂前的浅水池构成了静院的主体。它既体现了 “空”——接近无物的禅意,又将山林与天空在咫尺间倒映,让人在压低的檐廊下更多看见的是其在水中与用原建筑屋顶的瓦片铺就的池底相映衬的虚幻倒影,一种太虚幻境的山水意境被宁静的一亩方塘激发出来。而同时,基地旁溪水的隆隆声响又时刻提醒着外部现实的存在,现实、想象与记忆在此混合,共同定下静院的场所氛围基调。

▲主体建筑西侧的敞廊,带长凳的毛石墙隔开静院和动院©赵奕龙

▲静院中的一亩方塘倒映出山林及天空©赵奕龙

▲水面延伸到主体建筑檐廊之下,右侧为茶亭廊道©赵奕龙
静院内的动线绕水面一周设置。主楼一层檐廊下方为青石铺就的平台,动线从这里出发,进入右侧茶亭细密木格栅立面与倾斜屋檐包裹的外廊,对面敞廊下的毛石墙面暗示着更具野性的山林位置,而从敞廊回望,茶亭外廊纱帘般的细密界面在屋檐的阴影中过滤出溪对岸山林的亮部。
人在水院东西两侧的视线都被压向水面和对岸,水岸的茶亭、敞廊与山林天空一起倒映在水中,成为画面的主角,水平性的体量遮挡着外部的干扰,配合着平远的山林视野,将外部的山景与内部景观缠绕交织。而四层的主体建筑则因压低的屋檐遮挡而迟迟不能看见全貌。

▲东面茶亭后方的山景倒映在静院水面©赵奕龙

▲由西侧敞廊看静院,主体建筑只能看见底层局部©赵奕龙

▲东西向场地剖面与视线控制©久舍营造工作室
只有从檐廊下走出,进入对面片墙前和茶亭外的水中露台时,主体建筑才可以完整呈现。这种视线的控制,使得四层高的建筑体量获得了充分的观看距离,并且被水面倒映后进一步后退。坡屋顶改成平屋顶后,主体建筑的上部轮廓也被压在了南侧山林的轮廓之内。一层敦实木柱檐廊坡屋面体积与新增3-4层悬挑阳台体量的二维板片化做法相互反衬,主体建筑的体量得到充分消解,显得更加轻盈。山在整体画面中的绝对主体地位被再次强化。

▲从大厅对岸露台回看主体建筑©赵奕龙

▲南北向场地剖面与视线控制©久舍营造工作室
2. 动院
山野一侧的动院原本是较为陡坡的山脚,我们结合挡土墙的结构需求,以层叠的小片石砌台地化解高差,分别设置为烧烤篝火区、温泉泡池区等社交活动功能。各功能区由主动线串联,按私密要求高低布置。其低处一端靠近静院敞廊的毛石墙后方,在高处与主体建筑二层半楼梯休息平台的入口相连,在山坡上以几段台阶连接了三级台地。台地的轮廓和高度被精心控制,结合敞廊悬浮的屋面,使得静院和动院之间既有视线的联系,又不会在氛围上互相影响。

▲带场地环境的一层平面图©久舍营造工作室

▲山野区域底部,竹林中的烧烤区©赵奕龙

▲动院高处的三层台地与远山©赵奕龙

▲台地高处看静院敞廊与茶亭©赵奕龙
渗透的界面
在经典传统山水观念中,建筑与自然的界限,从来就不是封闭,而是你中有我我中有你的渗透状态。元代倪瓒的《容膝斋图》里的空亭更是这种态度的极致表达。为了让山房能传达这样的观念价值,改造中的另一主要动作,便是要打开原建筑封闭的界面,将山水景观大量引入内部。但同时,又要应对外部嘈杂省道与外部其他农家乐的声音视觉干扰,以及自身客房私密性的问题。因此,我们在改造中引入了一个界面系统。

▲太湖源溪水方向视角©赵奕龙
1. 茶亭的界面
茶亭作为山房场地与省道的分界,内外两侧的界面分别对应着低处的省道和高处水院,因此有着不同的做法。

▲省道边茶亭构造分解图©久舍营造工作室
茶亭的外界面位于省道边高处,既是山房最主要的沿街面,也是茶亭内部欣赏溪水侧山景的观景面。因此,我们设计了一个由角钢和方木条组合的可以完全打开的连续平开窗扇。窗扇下部留有1米高的窗下墙,从外部看构成了下部圆竹修饰的基座的一部分,提高了基座部分的高度感受,从视觉上拉开了外部和茶亭内的距离;而从内部看山则有效遮蔽了省道和车流,只将山林顺着屋顶倾斜方向注入室内。

▲单坡水榭(木构廊架)两侧界面©赵奕龙

▲水榭朝外一侧为连续可开启窗扇©赵奕龙
茶亭朝内一侧界面为连续的细木格栅固定单元,从内院看,细木格栅遮挡了茶亭的结构柱,纯净的细木矩阵与平整的沥青瓦屋面具有类似细腻质感的二维化界面,共同衬托着上部与背后渗透进内院的山林景观。从茶亭中看,这层界面在木柱后方,如织物般将内院的水色天光过滤,在内部地面与屋面上投射出细密的光影,水院景色呈现为一种边界模糊的梦境。

▲水榭朝内一侧的细密木格栅界面©赵奕龙
2. 阳台的界面
原建筑内的房间没有任何阳台,所有景观都只能从方窗洞中获取。改造中不仅将原外立面结构框架中的填充墙体全部打开,配以双层保温隔音落地玻璃门窗;并且借着原有框架结构增加出阳台。客房数量的改变(由30间减少为15间)和平面的变动使得正立面的客房卫生间也都拥有了景观面。我们相应在3-4楼的客房阳台外部增加了细木格栅单元,不仅遮挡了外部直视卫生间的视线,还把阳台结构、门窗等常规建筑构件尺度隐藏,塑造了一个二维板片状的界面,超薄的构造和2层挑空的做法使3-4楼的阳台整体显得极轻,极大削弱了原有4层的巨大建筑体量。而外部的山水与阳台内人之间的距离也被无限拉进。

▲3-4层阳台构成的完整板片化体块©赵奕龙

▲阳台内部看山林溪水,右侧为完全打开的客房立面©赵奕龙

▲阳台结构与界面分解图©久舍营造工作室

▲普通客房山景,可见右侧洗手间泡池也贴着阳台山景面©赵奕龙
3. 溪房的界面
原建筑辅楼的2层餐饮包间在改造中被设计为一个独立溪景客房。如水院池底的瓦片一样,我们再一次地利用了原建筑上的旧物。设计将业主舍不得扔掉的所有各个时期陆续制作的老雕花木门窗扇测绘统计。再把它们经耐候处理后,以幕墙的方式组合挂在了这个辅楼的立面上。不同位置的木门窗扇环境作用下,形成明显的色差,拼贴在一起后出现了一种时间和空间上的重置;原来身体尺度的门窗,也作为建筑立面材料,在身体尺度与建筑尺度之间建立了想象。

▲原建筑雕花木门窗扇测绘统计©久舍营造工作室

▲木门窗扇单元拼贴©久舍营造工作室
在溪水观景面,我们将这个拼贴的界面穿破,溪房的阳台如巨石中的洞口,构成了沿省道界面最具识别性的形式,从溪房阳台看出时,便有了于山洞中观山水的意境。

▲溪水对面看溪房©赵奕龙

▲溪房阳台内景,下部可见溪水©赵奕龙

▲从内院长亭外水中露台回看溪房©赵奕龙
茶亭、阳台、溪房的这个界面系统,在外部山林的自然和建筑室内之间增加了一层呼吸渗透的缓冲层,山水自然与室内也不再是外部和内部这样简单的二分。它不仅从身体体验上起到空间的界定作用,而且将界面两侧用不同的策略重新建立起新的联系。
结构与内部

▲对原框架结构的操作©久舍营造工作室
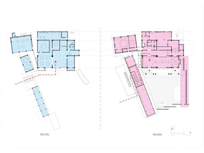
原建筑为混凝土框架结构,每层的五个相同客房将原本由东至西1:2:2的三个柱跨等分为五份。鉴于扩大客房面积和当地对民宿客房数量小于15间的要求。我们结合内院对主体建筑主轴线的影响,将房间开间重新分配,由东至西将总面宽重分为1.5:1.5:2的三个开间(图 48),并从原结构框架向外挑出一个钢结构区域,为每间客房都增加了一个可以和外部景观相互渗透的阳台。

▲改造前后客房层平面比较及柱网©久舍营造工作室
同时,我们将二层背面五间客房取消,拆除东侧两间客房的楼板,并拆除原疏散楼梯一层部分,共同创造了一个两层高的交通系统,获得了一个内部超人尺度的公共空间。这个空间被木饰面墙顶分割包裹,在半层处分出两条路径,分别连接了二层背面的早餐厅和二层及上部的客房。如此,客房区域与早餐厅互不干扰。一个埃舍尔《相对性》(Relativity,1953)般的内部空间让客人入住的常规廊道动线呈现出小径分岔的深远意味,某种山体内部的洞穴感得以在建筑内部体现。原本被房间充满的内部拥有了一个 “内建筑”,山的意象也从内部再现出来。

▲阶梯空间,正对玻璃窗内为早餐厅©赵奕龙

▲两层通高大台阶的公共性©赵奕龙

▲M.C.埃舍尔(M. C. Escher)《相对性》Relativity,1953
餐厅部分的客房隔墙全部拆除,形成了朝向后山的多跨连续空间,结合外部厨房的屋顶露台,我们为原山房的特色餐饮提供了同样具有山林景观的独立空间(图 52)。

▲餐厅及外部山景露台©赵奕龙
顶层走廊西端的原前后四间客房合并,设置为拥有三个阳台,三(BIM工程师)面山景的尽端式超大套间,加上场地内临省道的原辅楼二层内设置的溪景套房。这样,原来的30间客房减少为15间(BIM工作),正好满足了地方政府对民宿项目的要求。(注:根据临安地方关于民宿建设的规定,单个民宿项目内的客房数量不可超过15间)

▲改造后二层平面图©久舍营造工作室

▲改造后四层及loft阁楼层平面©久舍营造工作室
此外,我们去掉了原本作为杂物储藏的屋顶和下部因屋面檐口高度而在立面处压低的整层平屋面。原本被缩短的端部柱子通过钢结构加高,重新根据客房的位置设置钢结构平屋面,并在靠近山体的西南角背侧两间客房设置上屋顶的loft房型,进一步丰富了客房的类型。屋面露台成为这两间客房的私人活动空间的同时,从场地内最远处视角的正立面轮廓也不受影响。

▲顶层超大套间©赵宏飞

▲loft房内部©赵宏飞
总结
至此,经由场地的界定,动线的转折,界面的渗透,结构的改造与内部平面的调整。原本“视而不见”的山水被重新从外部和内部同时看见,建筑和场地自身也融入了环境与过去,成为了与山水共生的一部分。山水不仅被重新“看见”,某种意义上也被再次“重建”。
后记
鱼乐山房改造从开始设计到建成正式运营,历时两年有余,远超我们开始预计的一年。这让我们对乡村条件下的非专业建设项目积累了丰富的经验与教训。回顾这一过程,很多时候都濒临方案实施不下去的边缘。
感谢业主的义无反顾和地方政府在政策层面对项目的大力支持,才让这个虽然不大但复杂的“小”项目最终能够建成。在完全没有专业营造商统筹介入的条件下,业主和设计方互相充分信任,一起解决了工地上的施工错误、材料替换、现场构造变化等问题。作为设计方,我们也充分利用身边的资源,为这个项目争取了很多设计、材料、施工、后期陈设等有利条件,最终完成度大概有70%左右,已是非常幸运的结果。

▲在政府召集的现场工作会上汇报方案,并以会议纪要形式确定做法©久舍营造工作室
正式运营半年后,我们对山房进行回访。得知在临安地区民宿业整体大环境不佳的情况下,山房的入住率也比预想偏低。但由于客房价格和餐饮特色,山房整体的收入水平依然比之前大幅提高。并且,由于价位的提升,客人素质也相应提升。改造后的空间吸引了更多高素质的客人与团体,客观上也影响着业主夫妇的生活状态,这也是让我们甚为欣慰的地方。
项目信息:
项目名称:鱼乐山房建筑室内整体改造设计
设计单位:久舍营造工作室(www.continuation-studio.com)
项目设计 & 完成年份:2016-2018
主持建筑师:范久江、翟文婷
设计团队:余凯、陈凯雄、黄鹤、李婷、孙福东、吕爽尔、董润进(实习)
项目地址:浙江省杭州市临安区太湖源镇
建筑面积:约1100㎡
摄影版权:赵奕龙、赵宏飞、范久江
灯光设计:上海品光照明设计
软装设计:深圳雯华设计
结构加固设计及施工:能肖文团队
客户:夏鞠萍,姜永水
主要材料及品牌:
木饰面材料:臻藏古木
其余:现场制作

BIM建筑网





评论前必须登录!
注册