
云屋是一座位于邦迪海滩(Bondi Beach)的私人住宅。其设计概念是将建筑立面设计为云的一部分,最大化与光的接触机会。两个交接的体量被一个中央庭院打破,上演了一场空气和光影的游戏。

住宅为由首层内部庭院和上层的开放式过道相连接的两个部分。笔直的体量被缝隙穿越,强调了文脉和程式,为建筑提供了多种样式的光线。住宅首层是灵活布置的起居空间,私密的卧室。其他起居空间则位于二层。两层楼由中央庭院旁的侧翼将其联系起来,形成循环的动线。



住宅内部巧妙的的弧形设计弱化了外部纯直线的几何感受,包括一个枢轴转动的圆形窗户,一个弯曲的混凝土基座以及逐渐变窄直至与墙平齐的细木工制品。温和色调的暖色木材、白色和灰色与可以捕捉变化的日光的轻质光面砖墙共同回应了(BIM工作)邦迪的海滩特色。




场地的东北方向有一个建筑群,将光线与阴影拉得更深而进入细长的场地。从街上看,二层的体量悬挑在车库之上,通过有趣小孔与邦迪的街景相互映衬。它为远处的建筑提供了一个缓冲区,最重要的起居空间位于内部庭院和后面的花园之间,是比较私密的位置。东立面有一个能捕捉清晨阳光的开口,光线从可活动的木屏风中滤进室内,同时也可以保护居住者的隐私。





与Dangar Barin Smith从概念到构思的合作将景观作为了设计的一个重要组成部分,实现了户外空间(如花园、室外淋浴和庭院)与一层的无缝连接,花池弱化了首层主卧室的边缘。该项目风格简约,通过严苛的设计细节和施工团队的精细工艺而实现。与专业承包商的合作为定制提供了可能,如弯曲的混凝土基座、可旋转的圆形钢窗和可活动的木屏风等等。


设计图纸:

▲ 总平面图

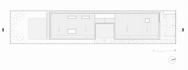
▲一层平面图

▲二层平面图

▲剖面图
项目信息:
设计方:Akin Atelier
地址:Bondi Beach,澳大利亚
类别:独立住宅
设计团队:Kelvin Ho, Georgia McGrowan, Linda Tjaturono
建(BIM学习)筑面积:196.0 m2
项目年份:2018
摄影师:Murray Fredericks
厂家:Nash Timbers, Interia, Graphisoft, Lysaght, Granite Marble Works, Robert Plumb, Eco Outdoor, Dulux, Vitrocsa
景观设计师:Dangar Barin Smith

BIM建筑网





评论前必须登录!
注册