如何利用空间解放幼儿天性?
主持设计师程枫祺:“我们希望创造一个在室内空间,却能打破室内空间常有的规整,有序的有趣的探索空间。灵感来自于小时候对于孩子们的“秘密基地”的想象,像是蚂蚁窝在地下的结构一样,由一个个小路径联系着一个个小空间,充满乐趣。”

狮子国际幼儿园项目位于广州市天河区的一个老社区内,周围环绕着老式住宅。社区本身缺乏幼儿活动场地,这里的孩子们急需一个舒适安全的环境来学习与玩乐。

项目选址在一个仅有500平方米的老粮仓内,面对功能、空间与环境的多重矛盾关系,VMDPE圆道设计力图通过设计,突破周边环境和建筑空间的双重限制,为老城区内的孩子们创造一个健康、环保的可持续性成长空间。
作为一个鼓励幼儿自由探索的教育机构,狮子国际幼儿园遵循STEAM教育理念,即“科学,技术,工程,艺术,数学”多科学融合。教育理念与国际接轨,注重幼儿的全面协调能力发展,引领幼儿在自由探索的环境下,通过身体力行,培养自己的观察能力、解决问题的能力、合作能力、思维能力、沟通能力,乃至启发他们保护环境珍爱生命的社会责任感。基于此,VMDPE圆道设计公司将本案的室内设计与STEAM理念进行了无缝接轨。

拓展空间形态层级
项目改造前是一个老旧的仓库,面积不大挑高近7米,存在单侧空间开窗狭窄采光不足的问题。出于对儿童身体和心理健康的考虑,圆道设计决定扬长避短构建空间的大体格局——将空间分成两部分,前侧安排为课室,保证充沛的阳光;后侧将原有开窗扩大,增加透光度,依靠空间的层高优势,利用贯穿空间的大楼梯,划分出更多可以用来发展儿童天性的自由探索空间。


▲ 分析图
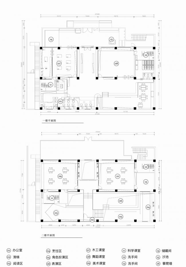
为了与国际教学标准结合,前侧课室分为上下两层:一楼设置木工课室和舞蹈课室,二楼设置美术课室和科学课室。通过合理的学习分区、多样化的师幼互动突出STEAM多学科综合教育的概念。后侧的自由探索空间通过空间内的主楼梯,将滑梯、儿童阅读平台、开放式儿童烹饪教室及角色扮演区等分段式穿插在空间内。

▲ 木工教室

▲ 舞蹈室

▲ 滑梯

▲ 阅读区

▲ 儿童烹饪教室

▲ 表演区
同时,一楼课室的门在打开后营造出一个可以组织小型演出或集体活动的户外空间。通过对空间区角的灵活化使用,在功能上对不同空间进行定位,丰富幼儿教育空间的教学内容,圆道设计在本案中的设计彻底弥补了中国国内幼儿教育空间一直以来功能性(BIM培训)不明确且存在缺失的特点。丰富的室内活动区域,不仅可以诱发儿童的探索心理,也让他们可以自由选择,根据自己的兴趣爱好进行主观探索。

可持续设计模块化
项目在设计上以原木色为主,用简单朴实的设计向孩子们展示出设计师和教育者的可持续性环保理念。由于圆道设计专业从事幼儿教育空间的设计,因此格外注重空间的环保性和安全性,采用模块化的设计方法是有效达到这一目的的手段。空间内所有的产品经过场外模块设计生产后,再在现场进行拼装组合,从而减少对场地的污染,降低对孩子的二次伤害,真正实现设计的可持续性目的。圆道设计认为,模块化设计手段可以有效控制设计和生产成本,通过定位空间的功能性,针对性地生产相关模块,在设计之初就可以大体给甲方提供整个设计投资做出预算。虽然该项目处于中国的一线城市,但这种成本适中、健康可持续的模块化设计对中国的二三线城市的教育空间市场而言具有很强的实用性和适用性。

儿童尺度精准细节化
在项目的细节处理上,设计师选择对幼儿友好触感的建材,家具根据各年龄层儿童的身高订制尺寸,空间内所有的电源插座与开关的设计也都定位在儿童接触不到的高度。对于中国幼儿教育场地一直缺失的户外使用空间,圆道设计也将室外不大的庭院功能化,以扩充孩子的活动区间。考虑到水、沙、石是幼儿最喜欢的自然元素,因此在户外设计了沙池和攀岩墙,这种设计可以迎合不同年龄段孩子的成长需求。狮子国际幼儿园项目充分体现了对幼儿发展和使用的思考与设计,打造国际化幼儿教育成长空间的设计核心。

随着近年(BIM设计)来中国对幼儿教育的注重,圆道设计专业地做出了一个回应场地条件局限并符合品牌方国际化教育理念的幼儿园,它被寄望成为社区服务的一部分,以安全、健康、可持续为宗旨实现其社会职能。


▲ 平面图

▲ 立面图
项目信息:
项目名称:广州狮子国际幼儿园
项目地点:中国广州天河区员村507创意园
设计公司:VMDPE圆道设计
设计时间:2018.03 -2018.05
施工时间:2018.05-2018.09
场地面积:700m²
建筑面积:500m²
室内面积:1000m²
项目状态:已建成
主持设计师: 程枫祺
设计团队: 张健,卢育纯
项目类型 : 建筑外立面改造与室内设计、灯光设计、道具设计
建筑结构 : 框架结构
建材及厂家品牌信息
灯光:Philips
地胶:LG
墙面漆:buoncolor
摄影:半拍摄影
文字:张森文字工作组

BIM建筑网





评论前必须登录!
注册