
外景渲染图

综合剖切模型

总平面图

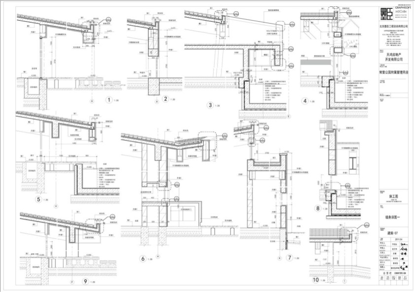
针对相对复杂的空间梁结构构件,使用ArchiCAD的梁截面工具进行深度搭建,真实模拟了钢结构构件的截面及其与室内装修的构造关系。
起伏变化的坡屋顶是设计的主要细节之一, ArchiCAD的屋顶工具Cadimage, 能够真实表达屋面石板瓦及其下部各层构造,对模型进行施工深度的分构造层深化,使3D剖切真实反映节点构造。
设计过程中利用BIM模型进行局部方案的推敲比对,从而选出最优实施方案。
基于BIM模型的2D施工图

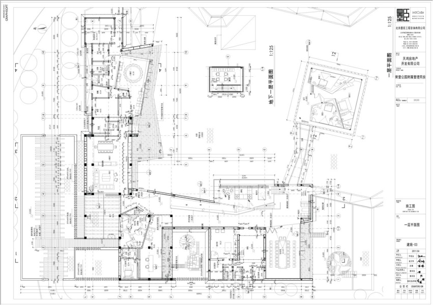
平面图

立面图

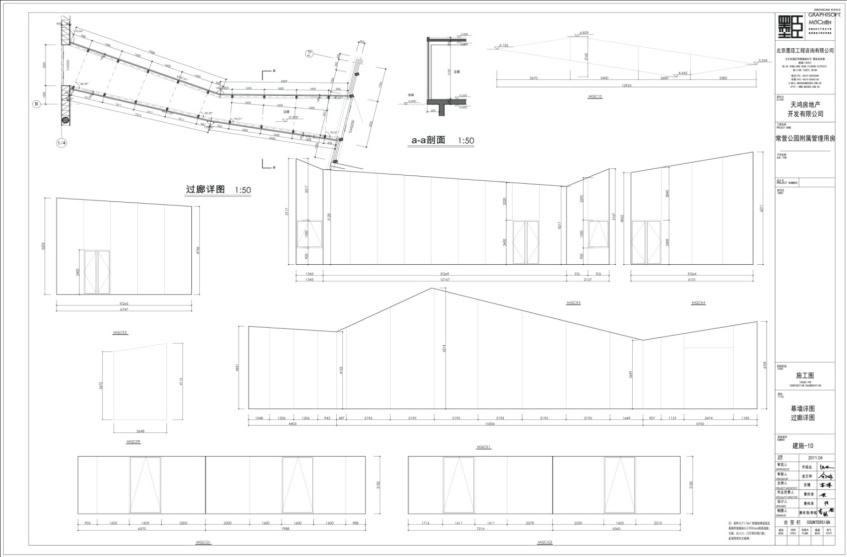
局部立面/剖面图
基于BIM模型的各项2D文档



基于BIM模型的3D文档

进入施工图设计阶段,经过对比评估,最终确定使用ArchiCAD进行施工图阶段基于BIM工作流的深化设计。
在进行建筑专业BIM施工图设计的同时,通过ArchiCAD流畅的DWG转换器,与各专业进行专业间项目协同。
微信公众号:xuebim
关注建筑行业BIM发展、研究建筑新技术,汇集建筑前沿信息!
← 微信扫一扫,关注我们+

BIM建筑网





评论前必须登录!
注册