BIM技术在近年的建筑行业是一个比较热门的话题,但很多建筑业内人士分析说这门技术不会被推广普及,此分析认为,现在BIM技术之所以这么的备受关注,有两个方面:一是BIM技术相关软件的开发商在炒作运用他们的软件后能为业主带来巨大的经济效益;二是从事BIM技术的培训机构在炒作当下的BIM技术性人才的空缺并称这类技术人员是未来建筑行业的新型人才,前景无限宽广。
实施真的如此吗? BIM 技术在实际运用中的真实价值到底如何?在笔者看来,实践才是检验的唯一标准,对任何新技术而言,只要能为业主真正带来真实的经济效益,都有它存在的价值。
现在,笔者以一个亲身运用了BIM技术的实际工程,来和大家分享BIM技术运用在实际工程的价值体现, 此项目为广州市地下铁道总公司四个BIM试点项目之一。
一、工程概况
广州地铁线网运营管理指挥中心项目(以下简称指挥中心)由三个地块所组成,由规划道路分为南北两个部分,项目总建筑面积31万m2由1#塔楼200m为地铁指挥中心写字楼,2#塔楼120m办公写字楼,3#塔楼112m办公写字楼以及COCC线网控制中心、商业裙楼、配套裙房等建筑组成。其中地下室的面积就达92674m2。指挥中心的业主单位为广州地下铁道总公司,施工单位为中铁建工集团广州分公司,BIM咨询单位为深圳市筑正建设工程技术有限公司(以下简称深圳筑正建设)。
二、工程重点难点
本工程涉及建筑、结构、装饰装修、幕墙、给排水、电气、消防、通风空调、高低压配电、高压细水雾、弱电工程等20多个专业,各系统管线错综复杂,加之设计院在绘制施工蓝图时并未考虑各专业之间的空间逻辑关系,很容易在后期施工中发生建筑、结构、管网之间的碰撞,从而导致大量墙体、管线、设施拆改,并由此造成窝工、返工、浪费材料等现象,为企业造成无法挽回的经济损失,同时也违背了国家提倡绿色施工这个理念。
三、运用BIM技术的价值体现
1.蓝图校核
在项目开工前期,我们就开始用设计院提供的全套施工图纸来进行创建模型工作,达到基于模型的多专业设计图纸校核的目的,在正式施工前尽可能消除施工图上“错、漏、碰、缺”现象。例如在建筑施工图纸中,楼梯起步位置、方向及防火门的位置的大样图与平面图不符。

负三层建筑平面(楼体区域)

楼体大样
以上问题通过图纸会审之后都得到了解决,在施工前已通知设计院进行设计变更。像这样的问题的及时处理,除避免了在正式施工的时候发生怠工、返工等现象以及杜绝产生废料等情况的发生,也提高了工程质量,避免工期和成本的浪费,同时也提高一次性安装的合格率。深圳筑正建设为此项目参与方:施工单位、监理单位等提供了 BIM 模型操作培训,使参建方团队各方能切实达到在项目中进行团队协作。
2.碰撞检查及优化设计
基于BIM模型进行的碰撞检测、深化设计及管线综合,也是BIM技术为施工方或业主带来经济效益尤为突出的一方面。能很好的避免因返工而产生不必要的废料,有效的降低成本,最重要的是减少设计变更,使施工变得更顺畅资金流通也变得更为清晰合理。
现在设计院的通风空调、给排水、电气、消防等各个专业的设计人员都是独立绘制专业图纸。所以,各专业的设计师很难考虑到其它专业设计师的图纸内容,发生专业之间的碰撞是不可避免。这次指挥中心项目利用 BIM 技术,共检查出各专业的碰撞情况总数为7482个,规范允许的碰撞100多个,其余的都需要修改管网线路走向来避免。初步估计每个碰撞点所产生的损失为150元,这些碰撞点提前解决就能为业主直接节省117万余元的费用,而节省下由这些碰撞产生的其它相关费用则难以预计。以下列举几个具有代表性的碰撞点:
1) 建筑与结构的碰撞
①自动扶梯与该区域的梁相撞,柱子穿过了扶梯。经过设计沟通,重新调整该区域自动扶梯的位置。

附图1:梁平面定位图

附图2:自动扶梯平面定位图

附图3:REVIT模型截图
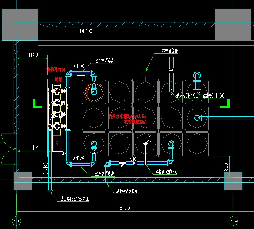
②地下室负三层自来水泵房水箱进水管与负二层车道结构冲突,经设计协调,将水箱位置挪至左侧,水泵放置右侧,进而解决。

附图4:自来水泵房CAD大样图

附图5:按照CAD大样图建的模型

附图6:优化后的模型截图
2) 设备与设备的碰撞
①机电各专业之间管线碰撞检测后,发现存在很多管线严重重叠冲突的情况。通过管线重新调整,将管线打架问题一一解决。

前两张CAD蓝图就不难看出,建筑设计师没有考虑到结构设计师布置梁柱的问题,所以就会产生这样的问题。这个问题向设计单位反映后,得到的处理结果是:对应设计修改联系单台帐,不符合扶梯安装要求,调整I区首层梁配筋位置。像这样涉及到结构修改图纸的问题,设计院都会花费大量的时间重新进行受力分析与计算,重新进行构件截面确定和配筋。如果在即将进行这个工序的时候才发现这个问题,就会出现工期延误,材料浪费等重大损失。所以就此类碰撞点而言,无论是为施工单位还是为业主单位所挽回的经济损失都是非常可观而不容忽视的。
3. 在BIM技术中运用管线布置综合平衡技术(管线综合)
管线布置综合平衡技术是应用于建筑机电安装工程的施工管理技术,涉及到建筑机电工程中通风空调、给排水、电气、智能化控制等专业的管线安装。管线布置综合平衡技术是根据工程实际将各专业管线设备在图纸上通过计算机建立与实际工程相符的模型进行预装配,将问题解决在施工之前,将返工率降低到零点的技术。管线布置综合平衡技术的推行与应用,可以缩短施工工期,避免各专业管路(线)交叉重叠、衔接不当而造成的返工浪费,提高工程质量并创造一定的经济效益。
在指挥中心运用了此项技术得到了如下收获:
1) 能较快完善节点设计和施工详图设计,在REVIT模型中,可以在关键的部位进行剖砌视图,生成详图,用于后续指导机电安装施工。例如在安装C塔7层走道的管线时候,先在该位置的模型中生成一张剖面图,然后以这张图纸来进行管道的安装。

附图7:C塔7层走道模型中建立的剖面图

附图8:同一位置,模型中的透视图
2) 在保证功能情况下,解决管线设备的标高和位置问题,避免交叉时产生冲突,尽量减少不必要的翻转所产生的接头。同时还要配合并满足结构及装修的各个位置要求,在模型中,可以对设备管线进行空间上的调整,以便于符合相关专业的安装规范,特别是管道的净空要求。我们在排列各种管道(线)时要考虑施工顺序对不同管线的要求及运行管理维修的需要,要考虑先施工的管道(线)不要影响后续施工的管(线),还要考虑对于需要维修和二次施工管道(线)的安排。例如在1-4轴与1-E轴相交处,该位置风管无法满足最低净空高度2.3m,处理结果:风管截面积不变,改变风管截面高度。

附图9:风管定位图

附图10:同一位置REVIT模型透视图
3) 机房净高充足,故采用风管、喷淋管贴梁,冷冻水冷却水干管与支管分层布置。按原设计图纸建模后,剖视图下发现冷水机组走道只有1.25米,不满足物业运营维保且影响美观。通过调整,管道采用转向成排的连接方式,将冷水机组走道拓宽至3米。

按原设计建模(调整前)

调整后
4) 本项目三号楼七层为标准层,走道仅宽1.75米,管线众多,如果不进行综合排布,空调新风管将无法进行下一道保温施工,且无检修空间。经过管线调整,风管与桥架分层布置,空调管与消防水管分层布置,中间留出400cm的操作空间,方便后续保温施工、电线电缆的放置、物业维护检修。

调整前(无检修及保温安装空间)

调整后剖面

调整后三维效果
5) 本项目的地下室原设计的消防喷淋管最低净高2.7m,基于BIM模型的管综调整后升最低净高至2.9m,效果更佳,材料更省:连接消防喷淋头的DN25管长度平均每个减少150mm,合计喷淋头15410个,此项优化调整单节省管料就达2311.5m,单价按20元/m计,此项合计节省材料费46230元。


附图11:未优化设计的模型截图 附图12:优化设计后的模型截图
6) 能主动进行成本控制。当我们在模型中已经把管线安装的空间位置关系确定了,完全可以采用综合支吊架可减少施工后的拆改工作量;利用综合支吊架排布好管线可减少窝工损失、降低人工费用等。
4. 可视化沟通
传统的设计师与施工人员在有争议的图纸内容所用的沟通方式是通过平面图、空间想象来交换意见。这对设计师的知识与经验的积累提出了苛刻的要求,同时也对施工人员的理解也是一场考验。即使在讨论阶段达成了共识,但在实际执行过程中,往往也会出现认知不一,修建出来的成果也不是设计师所想要达到的效果。所以就不得不返工,造成巨大的经济损失。现在我们可以通过BIM可视化技术的应用,使得图纸会审、现场技术交底应用、施工现场检查(利用IPAD现场检查)变得简单而直观,极大的提高了施工人员与设计人员的信息沟通的准确性。最大程度地减少了设计变更次数,降低建造成本,符合绿色施工理念。


5. 漫游仿真
初期施工现场布置漫游(环形道路车道漫游、塔吊转动漫游)、安全现场定型化防护检查漫游。
现场环形车道保证8米宽度,满足两辆车同时交汇的空间,现场设置两个大门,保证车辆顺利进出,且满足消防通道要求。
现场布置7台塔吊,且布局合理,保证各区域最大起吊需要。
6. 4D施工模拟
进度模拟,通过施工进度模拟,有利于科学的调动人员、材料、机械。同时,导入相关的项目管理软件,从而得到科学合理的横道图。在项目开工前,利用NavisWorks 4D虚拟建造功能,结合已编制的进度规划,按照分区分楼段进行4D虚拟建造,利用模拟情况检查进度计划的合理性与可实施行性。
7. 出图指导施工
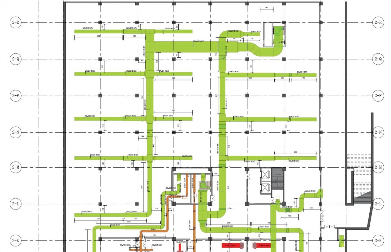
因为在REVIT模型中就运用了管线布置综合平衡技术进行了管线的调整,所以得到的模型与施工现场的管网布置是高度一致的,所以就可通过REVIT进行施工图的输出,并进行指导管线和设备的安装施工。这次指挥中心主要输出的施工图有:地下室管线综合图纸、空调机房大样图、风机房大样图、剖面图、预留洞图等。通过这些准确定位的图纸,最大限度地指导了施工,保证了施工工期和质量。

管线综合平面图

管线综合-暖通施工指导平面图

预留洞口平面

机房大样图
8. 精细化设计
精细化设计是未来建筑设计新的要求和导向。所以,我们创建的模型是也要达到精细化,并且每个精细化构件模型的参数指标都是全面的。比如说,在建立 HTFD-T-B型节能低噪音风机箱的族构件的时候,把所需要的各种设计参数都整合在族类型里面。还可以添加生产该机械厂家的网址,了解最新该机械的价格以及各种参数变动。

附图11:HTFD-T-B型节能低噪音风机箱类型属性
四、 模型与现场施工对照

附图12:负二层CAD图纸、模型、现场

附图13:负二层CAD图纸、模型、现场

附图13:负二层CAD图纸、模型、现场
五、 指挥中心项目运用BIM技术后的总结及体会
指挥中心运用BIM技术,无论是从为业主带来的经济效益,还是从国家所提倡的绿色施工这两方面来讲,其所达到的效果都是有目共睹的,同时也使得施工程序变得更加的透明,减少了不必要的投资,业主也更了解自己的资金流向。
在此项目中证明,BIM 技术,把各专业的信息融为一体,使得把以前复杂的工作简单化,人性化,这是建筑行业的进步,也是今后建筑业发展的方向。

BIM建筑网





评论前必须登录!
注册