1.项目概况
项目位于天津市河西区郁江道与五号堤路交口,建筑总高度为107m,分A、B、C三塔,如图1.1-1所示。总建筑面积83564.3平方,A塔为地上18层,地下3层。地上部分屋面高度约为89.5m。B塔为地上20层,地下3层。地上部分屋面高度约为99.6m。C塔为地上9层,地下3层。地上部分屋面高度约为43.8m。各个塔楼的结构体系为:A/B塔为框架-核心筒结构,C塔为框架结构,地下车库为框架-剪力墙结构。
永利大厦项目由中天建设集团有限公司总承包,中天建设集团有限公司(简称中天集团),是一家以房屋建造特级资质 、房产开发、交通路桥、新材料开发为主要经营业务,具有鲜明特色的现代大型企业集团。是质量管理奖单位、全国文明单位、全国500强大型企业、全国50强民营企业、中国十大慈善企业。

图1.1-1 永利大厦项目效果图
施工现场场地小、工期紧、专业队伍多、材料多、工序复杂,总承包对现场的项目管理存在各种各样的难点。
主要难点包括以下几个方面:
(1)进度管理方面:土建、给排水、暖通、强弱电、装饰装修等专业交叉频繁,导致进度编制、跟踪困难,经常有专业作业面打架的情况出现,影响工期。施工项目部管理往往无法及时了解施工现场实际进度,无法提前对一些可能引起进度延误的现场状况及时采取预防措施。
(2)成本管控方面:成本预算、成本核算、变更计算等工作量巨大的现实情况下,结果造成成本管控以事后核算分析居多,事前成本预控较少。
(3)资料管理方面,各种合同、图纸、等数量庞大,状态查询、汇总管理工作十分困难,导致各种风险项被遗漏,造成经济损失。
2.BIM应用内容
2.1 总体BIM应用介绍
永利大厦项目的总体应用思路是建立以5D模型为核心的基础应用平台,辅以建模软件和BIM审图、BIM浏览器等来应用模型,实现技术、生产和商务的横向综合应用,以建模、集成到应用为主要流程线应用5D模型。
5D应用内容具体如2.1-1所示:

图2.1-1广联达BIM5D软件应用流程及内容
2.2 主要应用内容介绍
永利大厦项目选择广联达BIM5D软件做为基于BIM模型的项目管理工具,通过BIM模型集成进度、预算、资源、施工组织等关键信息,对施工过程进行模拟,及时为施工物资、商务、进度、生产等重要环节提供准确的界面切分、资源消耗、技术要求等核心数据,提升沟通和决策效率,从而达到节约时间和成本、提升项目管理水平的目的。
主要应用如下:
2.2.1 模型集成
本项目建模软件采用广联达图形算量软件、广联达钢筋算量软件、Magicad机电设计软件建模,依据广联达的建模规范进行建模,所有专业模型通过模型导入的方式,统一集成到广联达BIM5D软件中, 模型集成效果如图2.2.1所示:

图2.2.1 模型集成效果
2.2.2 流水段划分
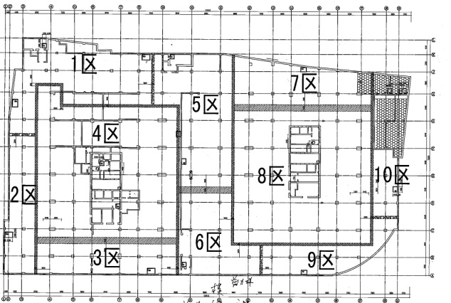
该项目在工程施工中,为达到有效流水施工组织管理,提高施工效率,合理优化资源需要对流水段进行划分,需要对现场工作面做流水划分,所以我们在广联达BIM5D软件中,依据本项目现场布置图,如图2.2.2-1所示在模型上划分可以管理的流水段。

图2.2.2-1 永利大厦项目现场布置图
并将进度计划、分包合同、甲方清单、图纸等信息按照工作流水段的维度进行组织管理,便于项目人员每天可以清晰的看到每个工作面上各个专业队伍的数量、工程量、所需的物资量、定额劳动力,帮助生产管理人员合理安排生产计划,提前规避了工作面施工经常发生的交叉作业冲突。
流水划分效果下图2.2.2-2所示:

图2.2.2-2 广联达BIM5D软件划分流水段后效果图
2.2.3 施工动态模拟
我们在项目上将进度计划文件导入广联达BIM5D软件中,并将模型与进度计划关联,在项目施工过程中从进度计划、楼层、流水段类型、专业构件类型、钢筋分类、构件工程量、资源类型、分包、材质等多个角度查询所需的工程量;
每季度之前,可以通过施工的动态模拟,预判现场实际工况。施工模拟过程中,软件同时模拟这一季度的资金资源投入曲线,为我们下一季度的资金与资源投入做出预期。资源计划曲线如下图2.2.3所示:

图2.2.3 施工进度模拟资金资源计划图
2.2.4 进度管控
项目完成施工进度计划编制后,将project文件导入到广联达BIM5D软件中,与模型相关联,赋予模型中每个构件进度信息。在每周进度例会时,应用广联达BIM5D软件的进度视图模块,显示近一周任务的状态,发现滞后任务,对应任务可以看到相应模型,查看滞后任务的工作量,根据工作量重新编排下周计划,做到周计划的精确管控。项目上某月任务状态统计如下图2.2.4所示:

图2.2.4进度管控模拟
2.2.5 项目物资管理
我们在建模时,将定额资源信息,如混凝土、钢筋、模板等用量录入到模型上,如图2.2.5所示,现场人员在项目上按照时间、楼层、流水段统计所需的资源量,在做项目总控物资计划、月备料计划和日提量计划、节点限额前,应用广联达BIM5D软件,精确地将所需材料量提取出来,快速地形成报表,提交相应部门审核。

图2.2.5中天项目部地下3层1区材料量查询
2.2.6 碰撞检查
我们在施工前期,机电工程师收到设计院机电设计图之后,需要做管线综合,我们将图纸模型应用Magicad重新建模,将机电各专业模型及结构模型集成至广联达BIM5D软件中,做碰撞检查,在碰撞的过程中,发现问题,及时反馈设计单位,调整图纸,减少后期返工,期间总共发现有效碰撞点一万多个,其中过滤掉设计规范允许内的碰撞点还剩8000多个,然后协调设计工程师修改图纸,在图纸协调修改的过程中,应用BIM审图软件做各方协调工作,所有工作都在BIM审图软件上完成,极大节省工程师时间。广联达BIM5D软件碰撞效果示意如下图2.2.4所示:

图2.2-12 碰撞检查的效果
3.组织与实施过程
3.1 项目实施流程
我们在永利大厦项目实施过程总分为六个阶段,每个阶段主要内容如下:
第一阶段:实施前的准备阶段。主要包括对内交底、资料准备。
第二阶段:召开启动会。主要包括明确项目BIM目标、制定项目BIM计划和项目BIM标准、确定BIM团队、建立沟通机制。
第三阶段:建模阶段。主要进行建模规范交底并建立模型。
第四阶段:应用阶段,主要包括软件培训,数据录入,应用辅导等。
第五阶段:BIM验收阶段,主要包括成果准备,报奖资料收集,项目总结等工作。
3.2 项目组织结构
项目的BIM实施组织,由我方BIM小组和软件提供商两部分人员组成。
1、我方人员:
我方人员指施工总承包管理人员,人员包括:项目经理、BIM小组建模人员、BIM小组应用人员。
a、项目经理:负责整个项目BIM小组的日常工作;
b、BIM小组建模人员:负责全专业模型建立,日常模型维护;
c、BIM小组应用人员:负责模型在项目上的应用。
2、软件提供商人员:
软件提供商人员指BIM软件提供商,人员包括:软件项目经理、软件实施经理、软件实施顾问。
a、软件项目经理:负责广联达BIM5D软件实施过程的总策划;
b、软件实施经理:负责项目BIM各阶段实施日常维护;
c、软件实施顾问:软件应用问题答疑解。
3、组织结构:
具体组织结构如下图3.2所示:

图3.2 项目实施组织
4.应用难点及解决方法
该项目在整个项目BIM应用过程中,遇到诸多难点,通过深入应用广联达BIM5D软件,攻克疑难,相关难点及对应解决办法详列如下:
难点1:BIM模型数据集成复用难:
该项目在项目筹备初期,应用广联达图形算量软件、广联达钢筋算量软件、Magicad机电建模软件建模,建模后期望全专业模型可以集成。但是由于前期建模阶未遵照相应建模规范,导致模型无法导入广联达BIM5D软件中,模型无法集成复用。
解决办法:遵照广联达建模规范,修改已建好的模型,成功导入广联达BIM5D软件中,解决了建好模型无法复用的难题,节省了项目人员重新建模的时间,
难点2: 模型与进度管理复杂度大
该项目总进度计划复杂,任务条目众多,与模型关联工作量大,极大地耗费项目人力成本,进度关联工作如果不提前做好,影响想后期BIM应用,无法对项目的进度做到合理的管控.
解决方法: 应用广联达BIM5D软件的模型关联流水段功能,关联预先绘制好的流水段,快速关联区域模型,在保证后期进度管控应用的同时,减少模型关联工作量,大大降低了人力成本.
难点3:按流水段提量
该项目前期BIM模型,包含所有项目所需工程量,工程量管控精细至图元级别,但若按流水区域范围无法快速提取工程量,单一通过建模软件提取工程量的工作过于繁琐,给现场流水提量到来极大困难.
解决方案: 我们将模型集成至广联达BIM5D软件中,按现场实际情况快速绘制流水段,在施工过程中,选取相应流水段,可以快速提取流水段工程量、预算费用、分包费用和材料量,便捷高效,解决了项目按流水提量难的问题。
5.BIM应用价值及成效
5.1 精细化进度管控缩短工期
我们在本项目BIM应用中,将进度与BIM模型深度结合,项目应用人员每周的进度计划都是在广联达BIM5D软件中做计划管理、施工协调等工作。以往,我们的管理人员每周都需要耗费一天的时间,做计划的分解排布,根据计划提取相应工程量等工作;现在我们只需要在广联达BIM5D软件中点击鼠标,就可以轻松地管理我们的计划,节约了我们工程师的宝贵时间。同时通过施工模拟,可以实时合理利用现场资源,缩短总工期,保障了对业主工期的承诺。
5.2 流水段合理划分提升施工精细化管理
在我司以往项目中,流水段管理都是通过工程部区域负责人的方式来管理现场的流水进度、流水提量、流水计划管理等工作,即使专人负责,也很难做到管理到位,总是因为前期备量不足,工序交叉等原因造成流水施工不顺畅。在应用广联达BIM5D软件后,按现场实际将模型按流水段划分,划分后,现场提量核量非常方便快捷,全项目流水施工的工作,不需要专人负责,所有流水段相关信息都可以在软件中提取到,通过提前备量、流水施工模拟等功能提升了施工精细化管理的水平。
5.3 物资精确提量降低成本
我司在项目物资管理中,常常由人工统计物资消耗,类似模板脚手架等周转材料无法做到现场的实时调配,施工过程中的非必要消耗很大,增加了工程成本。在应用广联达BIM5D软件物资查询模块后,每个专业、每个部位、每个流水分区都能精确查量,周转材料的进出场时间也有了精确地记录,每周的的物资的消耗都清晰可见,每天的周转材料调配都能在软件中查询,极大的减少了项目材料的非必须损耗,合理的降低了项目成本,为以后类似项目的投入提供了可靠的参考依据。
5.4 全专业碰撞检查减少返工
在机电深化管线综合这部分工作内容,我司一直没有很好地解决方案,通常是靠有经验的机电工程师提前翻阅图纸核对,核对过程慢,很多图纸问题难于及时发现。所以在本项目中,我们应用广联达BIM5D软件,对全专业模型做了多次碰撞检查,检查结果直接生成检查报告,且快速准确,合理规避施工过程中的及机电管线碰撞问题,为项目减少大量的返工,缩短了工期。
第一作者,赵跃华(中天建设集团天津分公司)
第二作者,王益涛(广联达软件股份有限公司)

BIM建筑网





评论前必须登录!
注册