
▲ 项目近景

▲ 夜景鸟瞰
高步书屋位于湖南省通道侗族自治县坪坦河流域的高步村。和其他的中国农村一样,高步村面临着“空心村”的问题:青壮年在城市打工,老人、孩子留守农村(BIM学习)。经过数百年的沉淀,中国侗族社会拥有着独特的文化遗产。而今天,现代化对侗族社会产生了严重的威胁。在长期的研究与实践过程中,我们与村民生活在一起,深入了解这个民族的文化与传统,由此诞生出一个想法:保护这个美丽的村落和他们独有的文化。

▲ 高步村鸟瞰
我们无法逆转近年来中国乡村人口移居城镇的大趋势,故而以保存侗族社会原有的价值来促进日后的发展为目标,通过为当地的孩子们建造一座图书馆来开启村落活化的行动。这座小型图书馆,我们称它为高步书屋,是一个寓教于乐的场所。希望高步村里这群热爱自由又充满好奇心的孩子们能在书屋里玩耍、学习。

▲ 儿童图书馆正立面
木构建筑
侗族的建筑有著一套不成文的建造规则。木匠们会因地制宜地调整、应用这些规则。所以即使每一座侗族建筑虽有著独特的面貌,但却有一种共通的语言。书屋的设计由中国西南少数民族从远古保存至今的“干栏式”建筑为起点,应不同空间、功能和形态的需要重新组织结构。书屋的设计,乍看是传统的侗族建筑,但当人们参与到空间中去就会发现它是新与旧的融合。这种设计方法为传统的材料和工艺注入了新的生命。

▲ 建造过程
在侗族村寨里,根据现有的建筑加以变化使之适应新的功能需求,这种做法是很普遍的。某种程度上可以讲,(BIM工作)乡村的营造活动多采取“仿造”的方式,建造的基本上是人们熟悉的房屋式样。在乡村的现实条件下,人们营建房屋主要以现有的模式为参照,并根据实际情况进行改造,从而“加工”出适合自己的建筑。那么我们相信,高步村周边甚至侗族聚居区其他村落也会受到书屋的启发去建设相似的建筑,从而形成侗族的书的网络。
侗族建筑中的楼梯
多次到访侗族村落,我们发现楼梯在村民日常生活中扮演著一个重要的角色。村民都喜爱在楼梯旁聚集,小朋友们则喜欢在上面玩耍。因此楼梯成为设计中一个重要的概念,贯穿整座书屋。它是村民可以互动的地方,也能让小朋友玩耍的时候坐下来看书。这样一来,看书变成了一件轻鬆而愉悦的事情。

▲ 小朋友坐在楼梯上看书

▲ 村民在楼梯上
大部分高步村的小朋友都由祖父母抚养到10岁左右,由于村里缺少教学资源,10岁后他们都会寄宿到乡镇学校上学。书屋为孩提时的他们提供一个学习的地方,让他们可以从玩乐中学习知识。

▲ 儿童在书屋学习探索
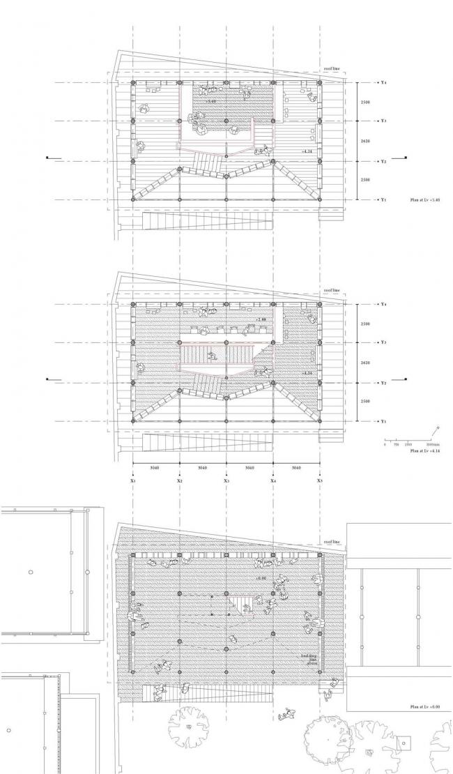
高步书屋面积约二百平方米,主要由木屋架组成。底层中心处贯通整座书屋的楼梯,是它的标志性元素。书屋底层的开放空间让村民可以休息,或者举办展览和其他活动;二层和三层则由不同主题的图书书架构成外墙,楼梯的设计紧贴著由半透明阳光板构成的书屋立面。这座书屋不只是图书馆,而是一个让村民互动的公共建筑,也给孩子们一个机会放下时下流行的各种电子设备,透过书籍触碰到他们的梦想与未来。

▲ 开放空间的村民活动

▲ 儿童活动

▲ 半透明阳光板构成的墙壁

▲ 俯瞰楼梯及墙壁书架
设计图纸:

▲ 场地平面图

▲ 场地平面图

▲ 轴测图

▲ 平面图

▲ 立面图

▲ 剖面图
项目信息:
设计方:香港中文大学建筑学院 Condition Lab
地址:高步村, 通道侗族自治县, 湖南省,中国
类别:图书馆
主创建筑师:Peter W. Ferretto (中文大学), 蔡凌 (广州大学)
设计团队:刘紫薇, 林敏欣, 王淯汘, 崔成烈
委托方:高步村
建筑面积:200.0 平方米
项目年份:2018
摄影师:Peter W Ferretto,Leon Xu Liang,Arthur Wong

BIM建筑网





评论前必须登录!
注册