
▲ 建筑与周边(实景合成)

▲ 屋顶看台看向中庭(实景合成)
限制与诉求
重庆约克北郡幼儿园位于两江新区约克郡北区,用地南隔城市道路与已建高层住宅区相邻,北侧、东侧为在建住宅区,西侧为城市公园,基地内部相对平坦,高差不大。项目为9班幼儿园,用地面积3330㎡,总建筑面积2701㎡,项目的用地面积相对其班级规模而言较为局促,对幼儿园而言,拥有一个愉悦的空间场所是必要的,如何在有限的用地条件下创造一个安全、健康、充满关怀且富有童趣的教育空间是建筑师需要面对的基本问题。

▲ 建筑西立面(实景合成)
本项目为社区配套型幼儿园,属于教育地产与名校合作办学的公办民投模式。项目伊始,除了与业主单位达成良好的沟通,与园方的交流也颇为重要,建筑师希望从幼儿园一线教育工作者那得到其基本诉求,并将其教学理念作为空间设计的依据。园方提出了“爱与乐趣”的开放式教学理念,包含三点:会呼吸(绿色自然)、面向未来(探索精神)、无限可能(个性发展),园方不希望幼儿生长在温室里,希望他们能感受到自然的氛围与温度。结合用地具体情况与园方的教育理念,建筑师提出了“村落”的概念,希望该幼儿园建成后能成为一个孩子们可以自由探索的“城市村落”。

▲ 主入口及道路 效果图

▲ 主入口等候区效果图

▲ 大台阶望向中庭与小舞台效果图

▲ 二层走廊望向中庭与大台阶效果图


▲ 树屋效果图
概念与空间
这是一个垂直布置的“村落”,小朋友可以在不同标高上感受村落的情景,建筑空间与活动场地的叠加设计亦化解了用地局促的矛盾,促成了各个单元体之间的分离,形成了“邻里关系”,考虑到西侧城市公园的景观资源优势,主体建筑最终呈现为U型院落布局,班级作为独立体块叠合布置,体块之间留出缝隙,使其保持 “自由呼吸”之状态。建筑师希望每个班级都能形成一个“家”的概念,每个生活教学用房就是一个独特抽象的小房子,希望小(BIM)朋友在园中能建立归属感:各个班级不仅在形体上是相对独立的,同时在材质上也是各不相同,使每个班级单元更个性化,具有一定的可识别性。

▲ 建筑中庭(实景合成)

▲ 大台阶与建筑中庭(实景合成)

▲ 建筑外观
空间设计趣味性:激发幼儿探索
多样化的教学课程是为了激发儿童的想象力与创造力,同时也对空间设计提出了更多的要求。除了设置常规的儿童生活单元、音体室、医护区、合班教室等满足基本教学需求的空间,建筑师还设置了更多的开放式教学空间:如在二层设置架空层活动平台、设置小舞台使其成为前后院的“视觉焦点”,结合中心庭院设计了大台阶看台空间、并设置了供小朋友玩耍的树屋、滑梯及斜面攀岩区等活动场所;充分利用一、二层的建筑屋面作为室外拓展活动场地;班级与班级之间的缝隙同样也形成为了小朋友下课玩耍的趣味空间,大量多功能趣味空间的设置,为儿童自发游戏及情境教学提供了开放性场所之可能。设计上试图提高音体室空间的使用效率,结合场地环境,打通了音体室南北两个界面,使其成为开放通透的多功能复合空间的可能:封闭时可作为独立的教学空间使用,开放时可结合南北两侧庭院成为多功能的教学场所。

▲ 鸟瞰 插画

▲ 前院游戏场所插画

▲ 小舞台及中心庭院插画

▲ 大台阶与树屋插画

▲ 大台阶望向中庭与小舞台插画

▲ 音体室看向中庭插画

▲ 音体室与侧院插画

▲ 二层走廊望向中庭插画

▲ 门厅屋顶活动场地插画

▲ 前院与建筑(实景合成)

▲ 小舞台看向中庭(实景合成)
基本教学单元
与园方多次交流沟通,最终基本教学单元的平面布置采用活动室与卧室一体化设计的模式,洗手间、衣帽间以及靠山墙一侧的床位收纳空间共同行了“服务空间体系”。除了服务空间体系里设置了固定家具及收纳空间,平面内未设置其他固定家具,希望获得更为自由的活动空间,教师可根据不同的活动情境,灵活布置家具。园长说:“希望通过家具的布置过程,慢慢培养小朋友的生活习惯,让他们(大班和中班)逐步学会自己整理生活及学习工具。”核心单元靠近山墙一侧设置了900mm高的阅读台,丰富了室内竖向空间的层次,架空部分也成为了床位的收纳空间。

▲ 基本教学单元剖透视插画
结合建筑外立面不同尺寸的凸窗,根据幼儿的身体尺度,在室内设置了高低不同的观察窗口,激发小朋友以不同的视角去观察室外庭院空间。

▲ 建筑南立面

▲ 建筑局部
材料表达
每个班级都是一个“家”,每个家都拥有自己的个性,小朋友们从小对自己的教室形成“家”的归属感——“我是住在木头房子里的,你是住在砖房子里的”,每个体量均拥有独特的材质。在立面系统上建筑师尝试使用了不同的材质:陶板、红砖、青砖、仿木材料、水泥纤维板、聚碳酸酯板。通过使用聚碳酸酯板,探讨半透明材料在幼儿园教育空间中的氛围营造可能性,使其在阳光下体现出多彩的韵律。在屋面系统上建筑师则运用了铝镁锰板金属屋面系统,较为单纯的屋面统一了多彩的立面系统,制造出了“雪景”的幻像。

▲ 建筑西立面+材质分布图(实景合成)

▲ 屋面关系

▲ 门厅及金属屋面

▲ 彩色聚碳酸酯板立面

▲ 小舞台内部(实景合成)
完成度的控制
该项目于2016年5月开始设计,元象建筑不仅完成了建筑方案设计、室内概念设计及景观概念设计,同时作为设计全程的总控方,两年半以来深度参与了对建筑施工图设计、幕墙施工图设计、景观深化设计以及室内深化设计的全过程设计品控,在深化设计中对细节及材料谨慎把控、施工期间完成现场巡场指导数十次,确保了设计概念最终得以较高完成度的呈现。目前,该项目建筑部分已竣工验收,等待景观及室内设计的施工。由于项目暂时还处于半工地状态,为了更完整地表达建筑概念,文中部分图片采用建筑现场照片与景观效果图“实景合成”的方式呈现。

▲ 建筑细节
建筑模型:



▲摄影:存在建筑-建筑摄影
设计图纸:



▲ 草图

▲ 总平面

▲ 一层平面

▲ 二层平面

▲ 三层平面

▲ 剖透视A-A

▲ 剖透视B-B

▲ 主入口等候区墙身大样图

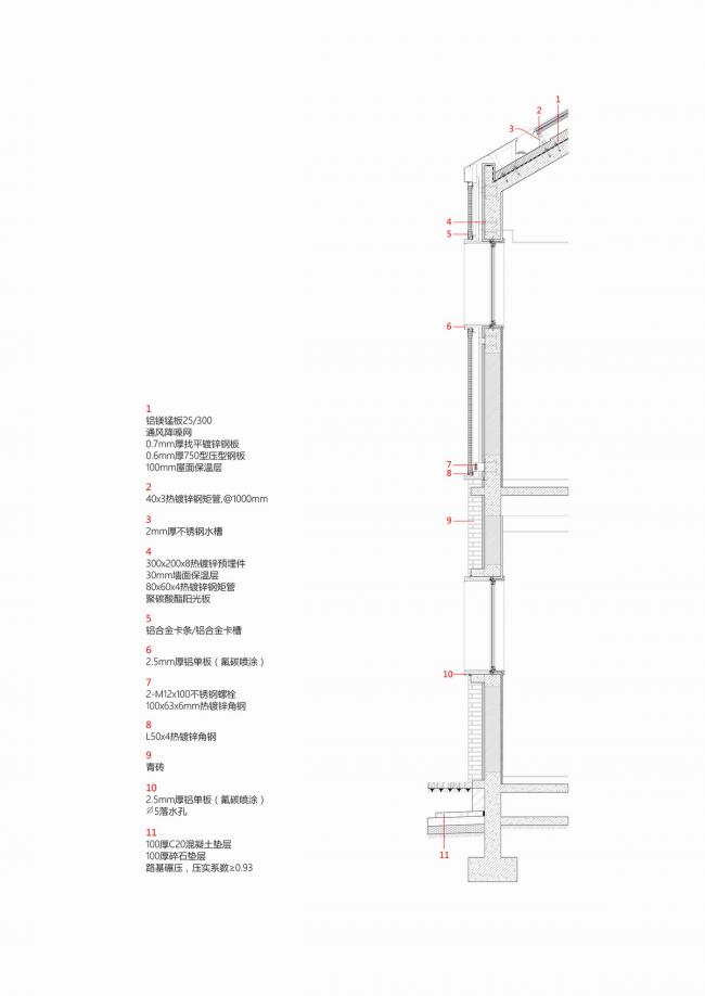
▲ 墙身大样01

▲ 墙身大样02
项目信息:
项目名称:重庆约克北郡幼儿园
项目地址:重庆市两江新区怡和路约克北郡
设计单位:IDO元象建筑
建筑设计:陈俊、苏云锋、宗德新、李剑、柴克非
建筑施工图单位:重庆市设计院
建筑:邓洪波、马晓婧、胡珑铧总图:赖韬
结构:朱海超、徐向茜给排水:蓝鹏电气:胡轶,暖通:吴志勇
幕墙施工图单位:中机中联工程有限公司
幕墙设计:熊联波、严政、赵宇、陈青术
业主单位:香港置地
管理团队:郑海川、汤照晖、刘颖
建成状态:建筑竣工,景观、室内待施(BIM建筑)工
设计时间:2016.05-2017.9
建造时间:2017.04-2018.10
建筑面积:2701㎡
用地面积:3330㎡
景观设计单位:道远景观
景观设计:周雪梅、陈文龙、莫贻海
室内设计单位:一夕幼儿园设计研究室
室内设计:焦樵、陈诺、金庆锦、谢国飞
摄影:DID STUDIO
效果图:尚筑科技
实景合成:DID STUDIO + 尚筑科技

BIM建筑网





评论前必须登录!
注册