
这个住宿中心包括一个餐厅,科研工作空间和74个单元。该建筑是法国巴纽尔斯-苏尔默海洋研究中心和观测站综合设施的一部分。观测站位于比利牛斯东部的 cerbers – banyuls 海洋自然保护区的中部。作为一个欧洲科学研究和培训中心,它的目的是在短期的研究和实验任务期间容纳来自世界各地的科学家和学生。

建筑位于海边,沿着现有的天空、地面还有地平线的地形继续延伸。它重新创造了视线与景观之间的关系,适应城市的建筑高度规划。赭色的色调回应了周围山丘和由内陆耕作梯田组成的土地。这些被葡萄园覆盖的山丘高耸于大海之上,闪耀着氧化铁深沉的泥土色调。




该项目是一个长方形的庞然大物,完全覆盖着粉红赭石珊瑚色的外壳,面向码头。它也标志着海岸和城市的界限。在这(BIM培训)个波浪起伏的表皮之后,大型外围走道通往卧室,同时也作为住宿单元的阳台。





这些走道覆盖着自巩固的混凝土网格,灵感来自于图形、光线和透明珊瑚设计 (Gorgones) 。我们使用有限数量的独特形状,也称为线,来发展立面,这些形状是现场浇铸的。然后根据一个简单的数学算法将这些线组装成模块,在阴影和物体中产生振动。


餐厅在二楼。通过珊瑚网上的一个大裂口突显出来,这是一个将景观引入室内的窗口,视野开阔可以欣赏地平线和大海。色彩斑斓的混凝土网格同时也是栏杆和通向大海的视觉过滤器。它也是一堵墙,保证使用者、卧室和走道之间的亲密感。远处和近处的开口提供了微妙的变化。




视线从内到外被吸引,展现出风景。景色变得有节奏,通过律动和不同的用途加以强调。滨海巴纽尔斯国际住宿中心的能源来自地中海。该项目超越简单的物质,用诗意和科学的方法揭示景观。

设计图纸:

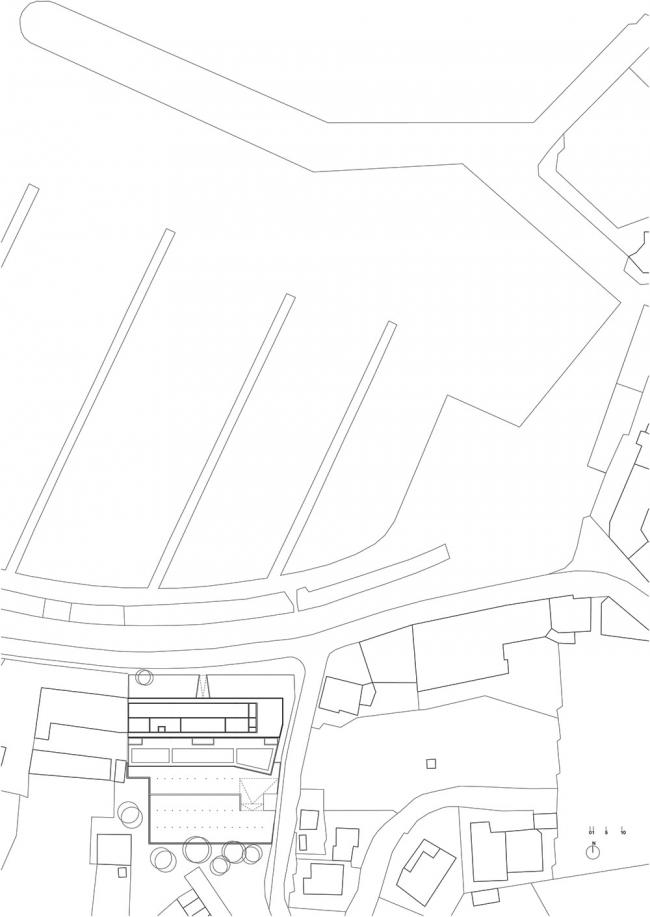
▲ 区位图

▲ 总平面图

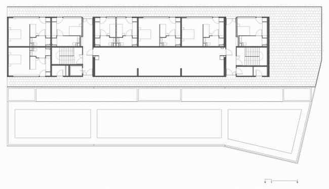
▲ 一层平面图

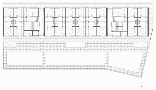
▲ 二层平面图

▲ 平面图

▲ 平面图

▲ 南立面图

▲ 北立面图

▲ 东立面图
项目信息:
建筑事务所:Atelier Fe(BIM工程师)rnandez & Serres
地址:Aquarium de Banyuls sur Mer, Avenue du Fontaulé, 66650 Banyuls-sur-Mer,法国
类别:科学中心
工程师:GRONTMIJ Sudéquip, Aix en Provence
建筑面积:2980.0 m2
项目年份:2013
摄影师:Fernando Guerra | FG+SG

BIM建筑网

评论前必须登录!
注册