
场地印象
在杭州开元森泊乐园内,有一个满是茶园的山谷,顺着山谷的坡地向上,行至山谷尽头的几颗高大松树下,透过山谷向远望去,依稀能望见远处的城市,瞬间有种登高的想法。茶园和松树以及山谷的高地,赋予了场地独有的特性。

回应场地—— “上天”与“入地”
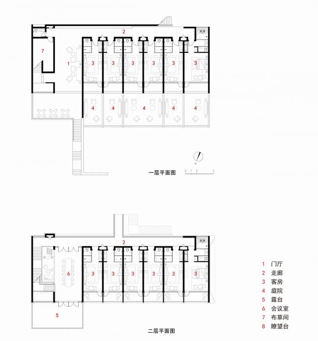
茶园植根于大地,松树耸立与蓝天,建筑便坐落在两者之间,成为茶园的背景,也与松树成为伙伴。建筑最终设计成两层的度假小楼,一楼强调与茶园的联系,每个房间设置花园,花园之间用斜墙分割,墙体远端深入大地,与茶园融合。二楼则强调与松树为伴,能够俯视茶园,远眺乐园。由于体量较大,每层6个房间,共有12间客房,便是在二楼设置了公共活动厅和室外露台作为共享空间。出于一开始就有登高望远的想法,顺着公共客厅继续向上爬两层高度做个瞭望台,(BIM设计)期望成为整个山谷的制高点(BIM),俯瞰整个主题乐园。地处相对幽静的区位和功能属性,非常适合公司团建和同学聚会等用途。








对比中的呈现
建筑风格呈现出一种对比的状态,一层采用传统手艺的水泥石灰参杂一定稻草,朴实而厚重,成为茶园的背景。二楼采用木饰面,与一层形成反差,漂浮在空中。不同坡度的略显随意的四坡顶形成变化的天际线与背后的一排松树交相呼应。场地中间的一颗大树仿佛从建筑中生长出来,这些都回应了场地特征:保护生态,植根于茶园,与松树互映。


回望的序曲
设计始于对场地的感知和分析,天际线的制高点使得刚进入乐园便依稀可见,给人一种引导和向往感,穿过茶园,顺着连贯而又富于变化的台阶,楼梯,借助顶部天窗带来的光影,给人一种期待感,避免单调乏味的爬楼梯体验,到达飘出的观景平台,颇有“会当凌绝顶,一览众山小”的意味。建筑最终表达了置身其中享受场地带来的特性,成为整个环境中的一个趣味节点。






项目信息:
项目名称:山谷中的守望——一览居
设计方:中国美术学院风景建筑设计研究总院
网站:http://www.caaladi.com/
联系邮箱:[email protected]
业主:开元旅业集团
主创建筑师:陈夏未,王凯
项目地址:杭州
项目年份:2019.01
总建筑面积:490㎡
施工面积:850㎡
摄影:施峥,奥观建筑视觉
设计团队:柯礼钧、金拓、陈梁星
项目经理:虞光洁
室内设计:蒙泰设计

BIM建筑网





评论前必须登录!
注册