
外立面、庭院

外立面、庭院
北京周边有很多太过讲究的房子,讲究的千篇一律,讲究的太不讲究。瓷砖贴面、洋红粉蓝,总是那么出挑,这个项目原先也是这个样子。

改造前照片

改造前照片

改造前照片
钱不能花太多,所以用在山上拾的荆条子把建筑给裹起来,隐在山里,好看也遮阳。

外立面、庭院
塔房子用剩下的脚手架顺手搭在院子里,拉上遮阳的网子,日头出来的时候坐在底下,看着层峦叠嶂,美。

外立面、庭院
业主给他这个民宿起名叫“小也山谷”,但我更想叫它“野山谷”。

外立面、庭院
室内空间:

公共空间

公共空间

公共空间

公共空间

白色房间

黑色房间

黑色房间

木色房间

银色房间
设计图纸:

庭院平面图

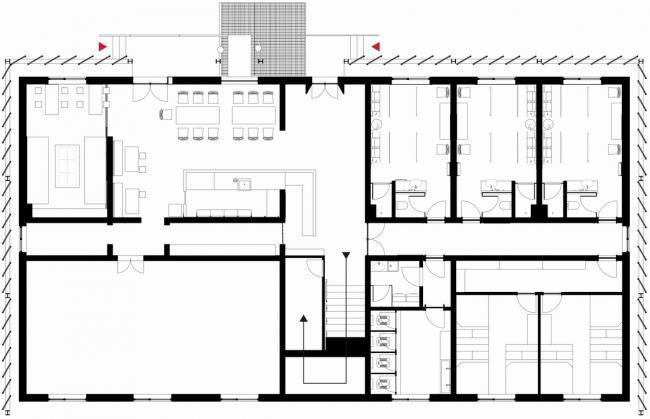
一层平面图

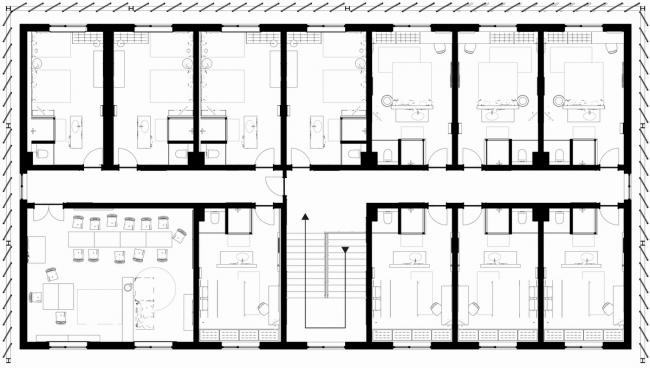
二层平面图
项目信息:
设计团队:阿穆隆设计工作室
设计师:阿穆隆 宋小有 刘宠
项目名称:小也山谷
项目地点:北京市延庆区石佛寺村
项目类型:民宿,餐厅
材料:荆条,多层板,钢,镀锌板
设计时间(BIM工作):201(BIM教程)8.08-2018.09
建成时间:2018.10-2019.04
摄影:金伟琦
E-Mail:[email protected]
微信公众号:阿穆隆设计工作室
微信公众号:xuebim
关注建筑行业BIM发展、研究建筑新技术,汇集建筑前沿信息!
← 微信扫一扫,关注我们+

BIM建筑网





评论前必须登录!
注册