

墨尔本大学将在这栋创新的生命科学院楼培养未来的兽医、科学家和医生,这将进一步提升该大学卓越的国际声誉。HASSELL设计的新大楼将三个学院汇集到一个活跃、灵活的学习环境中,以适应生命科学学科的多样性。

这是该大学兽医学与农业科学院、医药牙科及健康科学院与科学院三个学院首次共用干湿教学实验室、一个大型基于对象的学习空间及许多正式及非正式的学习区。所有的这些都被整合在一片有凝聚力(BIM设计)的区域内,这将丰富这里学生的学习体验。


这一创新环境还具备在同一区域(BIM培训)内同时教授多门课程的条件。学生可以从一系列非正式的学习环境中自由选择——从安静的个人学习区到互动的小组区域。该设计向自墨尔本大学1856年建校起就非常重要的文化与科学景观致敬——历史悠久的教学植物园将比以前更大,并种植修复许多花圃。新大楼的非正式空间形成了植物园与正式教学空间之间的天然连接。
室内设计方面,我们延续了温暖、自然为基础的手法,设计了木条装饰的墙面和连接各非正式空间的大型木楼梯。



富有象征意义的立面由一系列反光带纹理的遮阳板组成,不仅传达了大楼的生命科学活动,并将所有空间连接成一个统一的整体。


设计图纸:

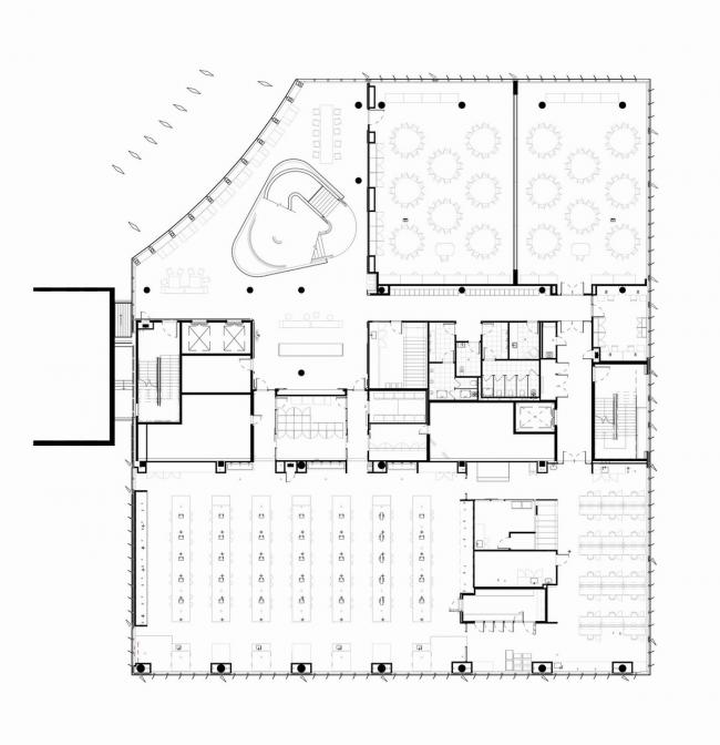
平面图

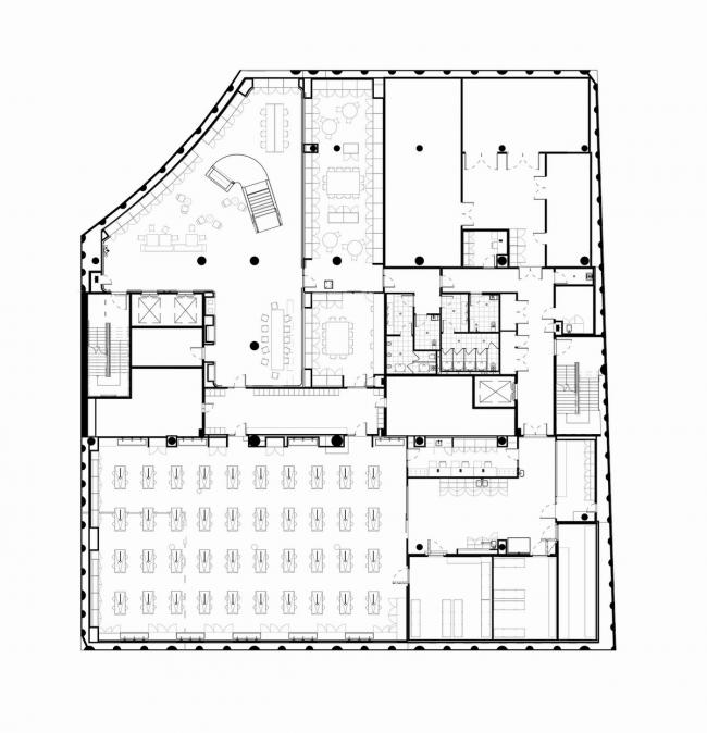
平面图

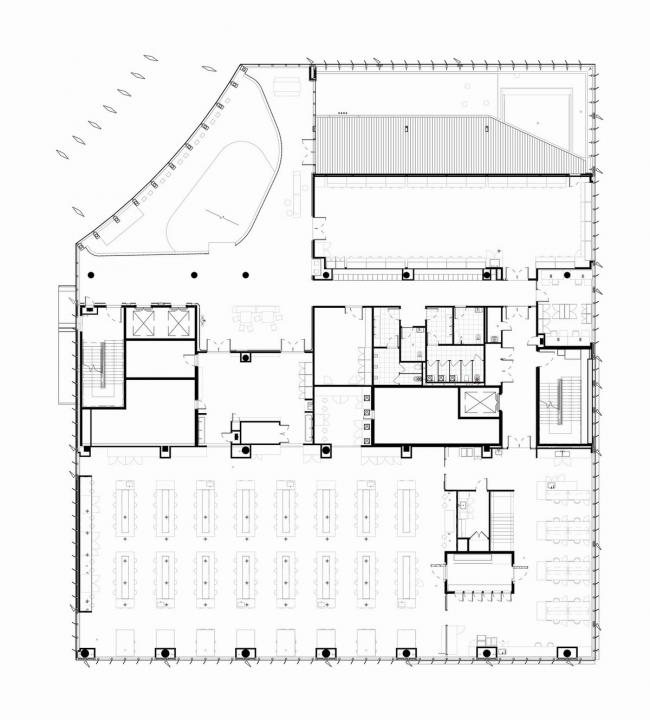
平面图

平面图
项目信息:
建筑事务所:HASSELL
地址:墨尔本,澳大利亚
类别:大学
设计团队:Norman Disney Young, IrwinConsult, Arup, Studio Semaphore, Mckenzie Group, AECOM
建筑面积:10250.0 m2
项目年份:2019
摄影师:Earl Carter
厂家:Optima, Sculptform
客户:University of Melbourne
景观:HASSELL

BIM建筑网

评论前必须登录!
注册