


槃达建筑事务所完成的新作鸿坤艺术活动中心。通过拱廊、台阶和镜子等元素为北京市的艺术环境又增添了一件“埃舍尔式”艺术空间作品。让人可以走进埃舍尔的魔幻空间来一次空间与视错觉互动的独特体验。鸿坤艺术活动中心位于西大望路,紧邻多个画廊和美术馆。在艺术活动中心旁边是槃达建筑事务所2013年完成设计的鸿坤美术馆。




槃达受业主委托,设计了一个可用于举办讲座、阅读活动、小型展览和艺术品交易的多功能空间。业主希望 能拉近区域内公众与艺术家之间的距离,进而创造公众与艺术之间的直接互动。访客穿过一道与邻近美术馆入口相呼应的新入口步入艺术活动空间。从建筑外部看,入口以左右两侧的完全对称的门窗设计延续了鸿坤(BIM工程师)美术馆的经典美学。


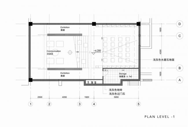
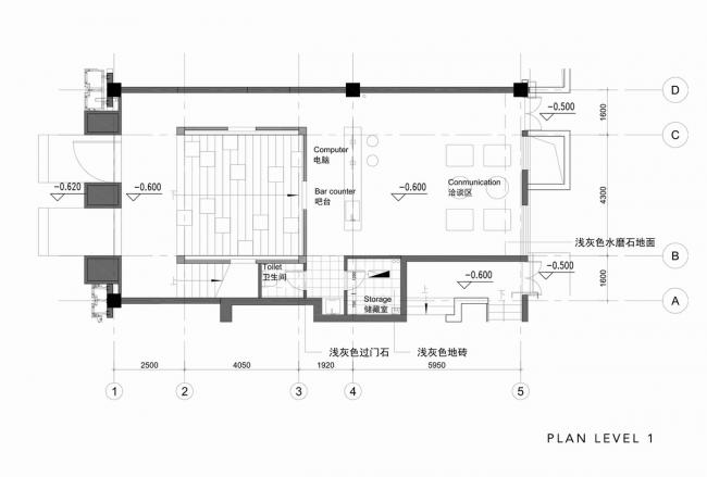
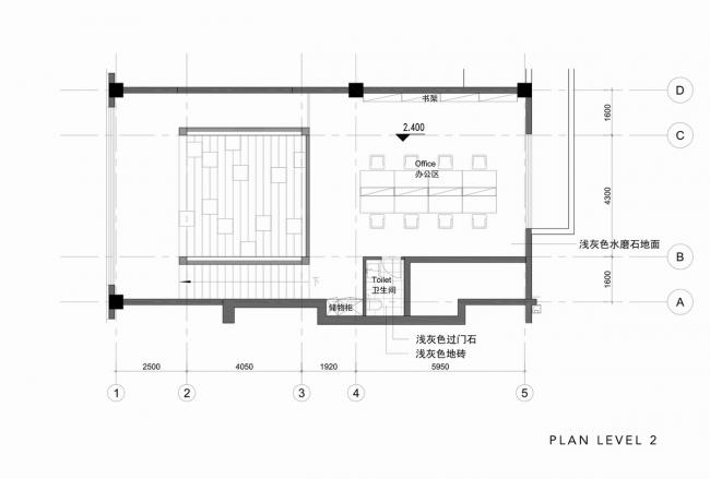
这种中心对称的风格一直延伸到建筑的内部空间。槃达打破了原始的首层与地下室间的楼板,在空间中央嵌入了一个由拱廊、台阶和镜子组成的充满活力的方形空间,这里同时作为引导访客通向地下空间的入口。该方形空间可用于举办讲座活动或艺术展示。通过方形空间左侧区域,访客将进入一层艺术作品销售区,进行绘(BIM设计)画和艺术作品交易或在小吧台旁进行非正式讨论。在方形空间右侧,沿楼梯可进入二层员工办公区域。





处于建筑中心的实体立方空间采用了温暖的木质材料,与背景的灰色混凝土质感墙面形成了对比。从建筑的 任何一个空间都可见到这一木质立方空间;立方空间的侧面上有圆形镂空,使人们可以一窥立方空间的内部。




在立方空间内,访客仿佛置于由两侧拱形墙壁和天花上的镜面通过多次反射而创造出的无尽之廊中。这些镜像反射的景观是受超现实主义艺术家达利和埃舍尔的艺术作品的启发,旨在创造一个真实与虚幻重叠与交错的超现实空间体验,并以直接和互动的方式使访客进入其中,找到一种与现实剥离的独特艺术体验。 与欣赏普通艺术品的不同之处是:在这人们可以进入艺术的内部,亲身参与和体验艺术品,扩展自己的想象。




模型
在槃达建筑事务所的众多设计作品中,拱是一个标志性元素。本项目紧邻的鸿坤美术馆是槃达创作的第一件利用拱创作的作品。通过正拱和反拱的连续交错打造了一道引人入胜的门厅空间,吸引人们入馆参观。为了在鸿坤美术馆和鸿坤艺术活动中建立起联系,槃达在鸿坤艺术活动中心延续了拱形这一母题。



“我们喜欢拱,在这个项目中,它不仅是一个形态元素,也是吸引着人们的好奇。通过采用镜面反射式墙体,拱廊完成了从实体空间到虚幻空间的转变,二者联系起来,成为绵延不绝的韵律,打造出一个将想象与现实联系起来的幻境。”


设计图纸:

材料样本

负一层平面

一层平面

二层平面

负一层剖面

一层剖面

二层剖面

剖面
项目信息:
建筑师:槃达建筑
地址:中国北京
类别:室内设计
设计团队:克里斯·普、孙大勇、王婧、李朋冲、文旭、白雪
建筑面积:270.0 m2
项目年份:2016
摄影师:Zhi Xia 夏至

BIM建筑网



评论前必须登录!
注册