
(BIM工程师)
室外活动场地望向南立面 ©胡文杰
项目位于上海徐汇区嘉陵路28号,这所幼儿园的前身是一所小学,外立面主要以淡红色仿石面砖和米黄色涂料饰面为主。建筑整体并不是很破旧,内部动线、空间及尺度还是基本保留了原小学建筑时期的基本框架结构。

新旧立面对比

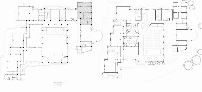
新旧平面对比
设计首要解决的是动线的重新组织,先是把首层的教室向原主动线的廊道及内院延申,将廊道空间与教室合并,三个教室空间从狭长的空间解脱出来。首层教室与内院及大厅和新开发的主动线形成了围合内院的空间,室内空间与室外空间发生了更加紧密的关系。中间的班级通过内院可以到达教室、靠近门厅的教室可以直接通过门厅的背景格栅进入教室,另一个教室通过内院与多功能厅之间的主动线到达。
(BIM培训)
多功能厅外走廊 ©胡文杰
教室所有靠近原走廊的卫生间移到南面,可以让原本无直接采光的卫生间能够获得自然采光和通风,让所有小孩子可以到达的地方都能有采光和直接的风景。

总平面图
二层平面图

三层平面图

四层平面图

入口门厅©胡文杰
多功能厅靠内院一侧划出一个与门厅方向平行的主要交通流线可一直延伸到后面的院子,再向左逆时针方向绕过集中绿化和场地再回到主入口门厅形成一个大的环形空间。

庭院廊道 ©胡文杰

中心庭院 ©胡文杰
与门厅垂直的多功能厅舞台后面的另一个动线空间可以展示小孩子的作品,也可直通室外并通过多功能和主体建筑之间的通道可再绕回原点,通过顺时针的方向可以绕回门厅。新开发的三条迂回环绕相交的动线带动了园内空间的活力与联系,让空间与空间之间产生了张力与互动。

科技展示区

多功能厅走廊 ©胡文杰
启发和联想宇宙轨迹的三条环形动线衔接处设置了太空场景装置、互动感应灯光墙和生物标本区域。这个连续的环形科探轨迹与科技幼儿园这个主体在运动中产生了共鸣。隐喻诺亚方舟的多功能厅顶棚像宇宙之眼,又好似从天而降的飞船充满无限遐想。

多功能厅内部空间 ©胡文杰
三个教室及紧邻多功能厅的主动线围合的内院,通过打开、通透的落地玻璃门窗将可能参与的周围空间连接一起,激发了各个空间的活力,内院的绿化通过教室可以直接与南面的绿化景观过度,更加紧密的内外关系仿佛让教室置与自然之中。

庭院水池

多功能厅走廊望向庭院 ©胡文杰

走廊窗立面 ©胡文杰

庭院 ©胡文杰

庭院望向门厅

走廊融入教室 ©胡文杰
剥去建筑不必要的线角和装饰,建筑整体以白色为主调。 任意分布的大面积落地窗户把狭窄转折的廊道解放,穿过廊道的小朋友有了更加鲜明的个性,并与地面空间和人产生了视觉对话。

干净明亮的校园

延展性立面 ©胡文杰

走廊望向立面

校园半围合立面 ©胡文杰
层与层之间走动差异化行为更加清晰、富有戏剧性和独立性,白色依然给小孩子留下更多可探索的未知欲望。

走廊外立面对比 ©胡文杰

学校大门 ©胡文杰

窗框 ©胡文杰

小木屋结构

小木屋平面

操场看向小木屋 ©胡文杰
项目信息:
建筑师:元秀万建筑事务所
地址:嘉陵路28号、徐汇、上海
设计:2017
建造:2018
主创设计师:元秀万
设计团队:元秀万、邹赫、王庆瑞
建筑面积:4000平方米
占地面积:4500平方米
建筑+室内设计:元秀万建筑事务所
业主:上海徐汇科技幼儿园
摄影:元秀万、胡文杰

BIM建筑网





评论前必须登录!
注册