新光大中心ArtPark9就生活方式的更多可能性提出“居住之问”,建筑师青山周平、韩文强、姜元&宋晨、唐忠汉以不同维度的设计策略联袂作答。“和院”“山居”“无界”“之间”四个人文空间和而不同,用东方哲学演绎出当代亚洲的理想人居。
温馨提示:视频较长,请耐心观看
山居
设计团队:韩文强、宋慧中
设计公司:建筑营设计工作室(www.archstudio.cn)
项目面积:80㎡
完工时间:2018.11
摄影师:金伟琦

全景 摄影:金伟琦
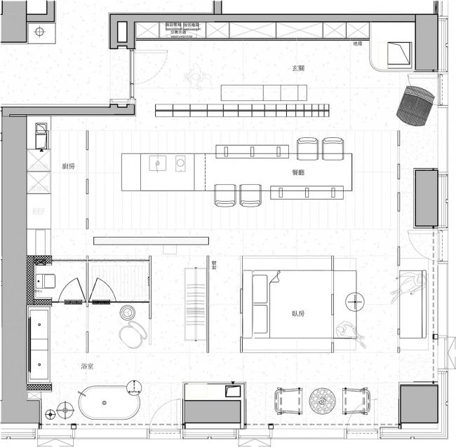
山居是位于北京通州新光大中心28层的一间客房。它是在都市高层建筑标准单元之中实现居住乐趣的尝试,也是一种对未来生活方式可能性的探索。

入口摄影:金伟琦

(BIM建筑)山坡客厅摄影:金伟琦

山坡客厅摄影:金伟琦
人类最初的居所是山洞。山洞是预先存在的,并不是为人类而存在。但是人根据身体行为定义了自然环境,使其可居。古人的理想居住状态是归隐于山(BIM)林,代表一种脱离俗世、与自然和谐的生活境界。当代城市中人们居住在钢筋混凝土的丛林,居所变成一种标准化的空间产品。山居即是基于以上三种居住方式的再思考:回到居住的本源,激发身体行为与外部环境的互动关系。

平面图&立面图
在规整的长方形室内空间之中,地面由窗边向内缓缓抬升成为一个山坡,让内部人的行为与窗外景色产生立体的对应关系。生活起居的五种基本行为:入、卧、憩、浴、卫被嵌入在这片人造山坡之中。山下的洞穴是入口和卫生间,山上视野最佳的位置是睡觉和洗浴的地方,山坡则是行走、休憩的界面。山的表面材料是软木地板,具有柔软、温暖的质感。洞穴可以被看作是定制的家具,由身体尺度和行为进一步定义出使用功能。一些当代生活的必要设施,包括智能设备、全屏投影等被隐藏在墙面和天花中,满足生活所需。

山洞卧空间摄影:金伟琦

山洞浴空间摄影:金伟琦

从浴空间看山坡摄影:金伟琦

全屏投影摄影:金伟琦

隐藏式迷你吧摄影:金伟琦

山坡下淋浴间摄影:金伟琦

山坡下卫生间摄影:金伟琦
人工与自然,原始与精致,确定与模糊共存于这个空间之中。这可能不是一个传统意义上“舒适”的空间,但也许那些习惯了城市舒适生活的人们置身其中时,可以被激发一些感官的本能,回归身体体验,重拾居住生活的乐趣。
之间
设计师:唐忠汉
设计公司:近境制作(www.da-interior.com)
项目面积:117㎡
完工时间:2018.11
摄影师:金伟琦、钟崴至

摄影:金伟琦
两点一线,三点一线,走了又回,回了又走,你说天地为家。家的意义又是什么呢?于设计师而言,是接纳,它接纳你的情绪、状态、离别、相聚,也让你接纳真实的自己。

摄影:金伟琦

摄影:钟崴至

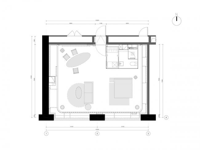
平面图
空间以“之间”命名,是往来之间。如灰空间一般,将内外转换,心境转换,自我转换。
于唐忠汉而言,“之间”有着更加独特的用意,它经由离合、肌理、包覆、层次,去达到空间体验的感受。同时,「之」字型是路径、连结的型体表现,两者互相贯穿,共同述说层层递进的「连结的空间」。

摄影:钟崴至

摄影:金伟琦
白色包裹下的空间,通透明亮。它柔软包容,任何颜色可与之相搭,又果断坚挺,将阳光最大限度的反射。
不定义空间界限,而是以不同的线条将其分隔,或宽或窄,或朦胧或清晰,每个细节的设计都如一曲蜿蜒起伏的赞曲,以节奏引发思考。

摄影:金伟琦
如太阳冉冉升起泛起的鱼白,大地万物勃然生动;又如夜幕低垂,洁白月光带来了宁静与安稳,驱散暗夜的阴沉。
艺术画将视觉焦点聚焦,充满张力,似是冲破的空间的束缚,白色的间隙又像是极力融于整个墙面,将冲突与和谐之美展现的淋漓尽致。

摄影:钟崴至

摄影:钟崴至
卧室休憩的周围,设计师有意将首尾两端作出镂空的窗格,一方面保证空间的通透性,另一方面减少空间过大带来的的孤寂之感,于心理层面加深安全感,并增加趣味性。

摄影:金伟琦
光线自天花洒下,层层包裹之下,不觉繁复,尤显轻盈,与柔和的光线共同塑造空间赞曲。

摄影:金伟琦
“我想要的空间是一种仪式感,一种家的概念,进而是一种独特的空间体验”。设计师说道。

摄影:金伟琦

摄影:钟崴至
无界
设计师:姜元、宋晨
设计公司:SODA建筑师事务所(www.soda.archi)
项目面积:80㎡
完工时间:2018.11
摄影师:金伟琦

于几何学来说,边界或是一条没有厚度的线;于建造来说,边界或是墙壁存在缝隙,而对于此空间来说,打破物理边界,以影像作为连结方式,成为SODA建筑师事务所设计探索的出发点。
空间的边界通常是由其物理位置限定的,而此次,设计师使用数字化材质打破物理边界,从而达到“屏幕墙”与“透视墙”的优雅融合。

室内空间和外界联结最直接的媒介就是窗户,设计师重新选择开窗区域,并将矩形的几何肌理延伸到单元两侧封闭的实体墙上。

四面大小不一的屏幕隐形嵌入三面墙体,通过网络,屏幕中可显示不同主题的内容。比如,巴黎实况、NASA的24小时直播和北京当地的电视直播,使居住者感受到不同的时间状态。

三面墙上的屏幕、显示器和灯箱混合排列布置在一起,虚化了传统的实体空间边界所具有的固定感,形成了不规则排列的“屏幕墙”。当人们透过真实的窗户看到北京日落的时候,虚拟窗口中,巴黎还是艳阳高照;而当清晨梦醒,转眼可看到NASA传回的黑暗的无边宇宙。


时间的概念被模糊,它通过不同的屏幕被拉伸、扩展,使人产生不同的观感,丰富情绪体验。
设计师通过设计和科技的结合,旨在打破传统居住单元的硬界限,墙面透亮得仿佛可穿透,削弱了其厚重的感觉。屏幕不再是冰冷的机器,其显示内容既可以是与窗外风景合二为一的动态风景影像,也可以作为信息时代的数字化窗口,呈现不同时间和维度内容影像。



这个项目即是我们所倡导的“媒体空间”的实践,用数字化内容为空间带来功能的完善以及体验的优化,使空间充满动态的灵活性与趣味性,同时又是温暖的优雅的具有探索未来精神的居住环境。

和院
设计师:青山周平
设计公司:B.L.U.E.建筑设计事务所(www.b-l-u-e.net)
项目面积:117㎡
完工时间:2018.11
摄影师:金伟琦、夏至

摄影:金伟琦
城市是什么?是容器,包藏每个人生活和工作的空间;是历史,在嘀答声中跨越千百载的时间;是生命,在一代一代人打磨与接续中昼夜滋长的活物,你观城市,城市也观你。

摄影:金伟琦

摄影:夏至
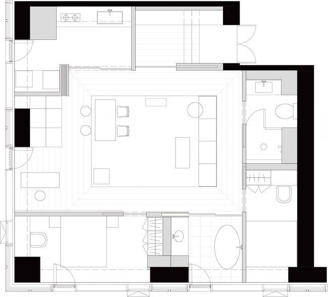
和院—新家族的家,是一个约120平米的室内空间,在项目中,我们思考的不仅仅是如何打造当代舒适的室内生活空间,更着重考虑在未来新时代——家的另一种可能。

平面图
在过去,居住模式常是祖孙几代人共同居住,几代同堂的生活模式我们将其称之为家庭的1.0版本。逐渐家庭模式变成了父母与一个孩子,在日本则是父母与两个孩子,这是家庭的2.0版本。及至现在,世界各大都市,越来越多的家庭变成一个人,这是家庭3.0的版本。
城市正在逐渐变成“一个人的城市”。在东京的核心区域,独居的老年人与年轻人占据了超过半数的比例,我们想象中的传统家庭已经在逐渐的瓦解和消失,这也即将是北京未来所要面对的事情。

摄影:夏至

摄影:金伟琦

摄影:夏至
在家庭1.0时代,我们有四合院和土楼;
在家庭2.0时代,也有相应的两室一厅,三室一厅的住宅楼。
到了家庭3.0时代,家应该是一个怎样的状态呢?
带着这样的思考,设计师青山周平与其团队展开了项目的研究。发现大部分的户型都是基于婚姻和血缘关系建立的家庭居住模式,首先打破的便是户型设计。
他们把原有的隔墙全部拆掉,在房子正中间设计了一个庭院式的公共空间,并把四周的回廊抬高,使庭院下凹,高度恰好成为人们休憩的座椅。

摄影:夏至

摄影:金伟琦

摄影:夏至
从上方俯瞰空间,似乎是四合院。如果将屋顶拿掉,就可以看到四周的卧室、卫生间、淋浴室、厨房等等,设计师将私人空间尽量压缩,将更多的空间释放到了公共区域,我们的生活便在这里展开……

摄影:金伟琦

摄影:夏至

摄影:金伟琦

摄影:夏至
新家族的家,将人们从自己私密的空间中解放,不再是一个封闭的家庭区域,而是个体时代的新家庭住宅模式:更开放的高复合空间,拥有更多的可能性。

BIM建筑网





评论前必须登录!
注册