
总部办公楼需要体现企业文化,彰显企业特征,并为员工营造舒适的办公环境。总部办公楼是企业未来价值和梦想的诞生地,它应该展示出企业精神的本质——与消费者沟通,与市民沟通。

融入“变革与创新”的企业精神:建筑师的目标是充分体现 Midong 的企业理念——通过变革和创新来不断进步。因此,项目没有采用常规的建筑形式,而是用一种非常独特的外观体现创新性。


”温暖而光明”的建筑:建筑师追求的是为员工带来幸福感的建筑,而不是一座严肃而厚重,彰显权威性的建筑。因此项目采用了环境友好的设计理念,将内部装饰打造得温暖而明亮。

为城市所瞩目:六层规模的办公楼往往难以成为一座标志性建筑。为了让建筑足够打眼,建筑师通过立面上的创新设计让办公楼成为城市中一道亮丽的风景线。”媒介立面(Media Facade)“由光线、集成化数字技术与艺术构成,使用了Midong电子领先的LED技术方面的成就。立面上独特的斜角精准地刻画出变革和创新的企业特征,并显示了Midong在电子行业的领先地位。开创性的企业形象被抽象为”数字粒子(digital particles)“,充满活力的多维立面随着光线不断变化。外立面背后分散的花园露台,与宝石般的立面框架,自然以(BIM工作)及室内相得益彰。它体现了Midong电子和电信在领域内外的沟通与融合。

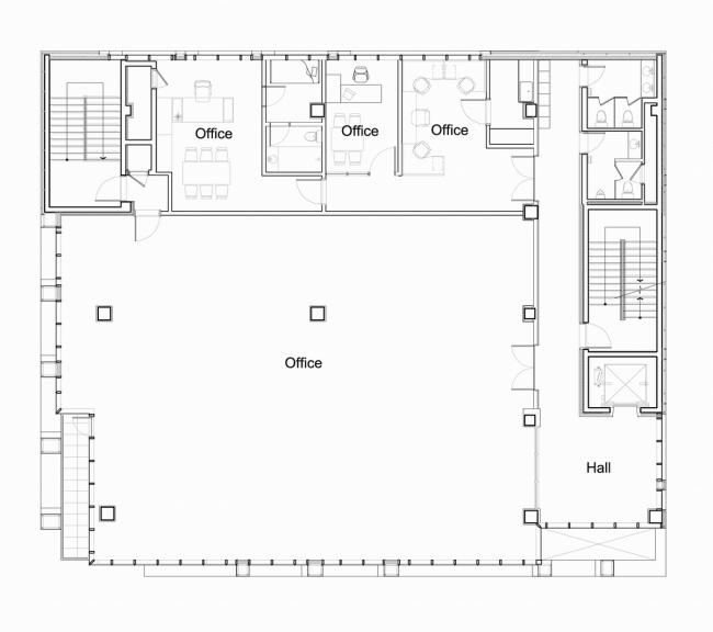
打造建筑核心:办公建筑最重要的部分在于构建一个核心空间。通过对既有核心区域的修改,建筑师打造出一个新的大堂和大厅,内部环境宜人。

办公空间:建筑的五层和六层分为工作区和公共区两个部分。连接五、六两层的会议室和楼梯构成 Midong 的创意空间中心。

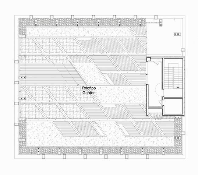
屋顶花园:新建的屋顶花园的平面与立面构成采用相同的设计逻辑。花园不仅有各种植被,还可以进行户外拍摄、烧烤和员工培训等等。员工可以在这里放松,享受各种活动带来的快乐。


模型:





设计图纸:

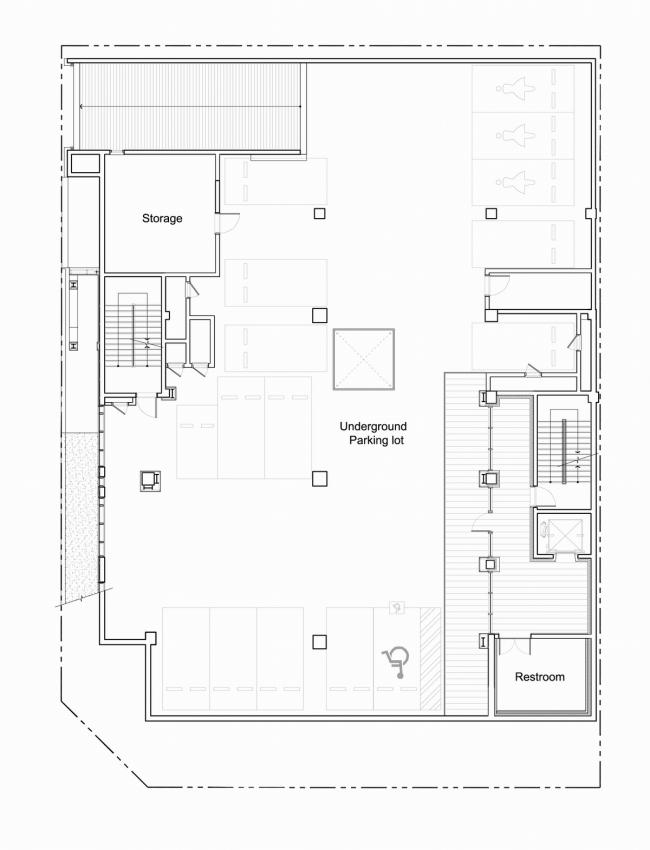
平面图

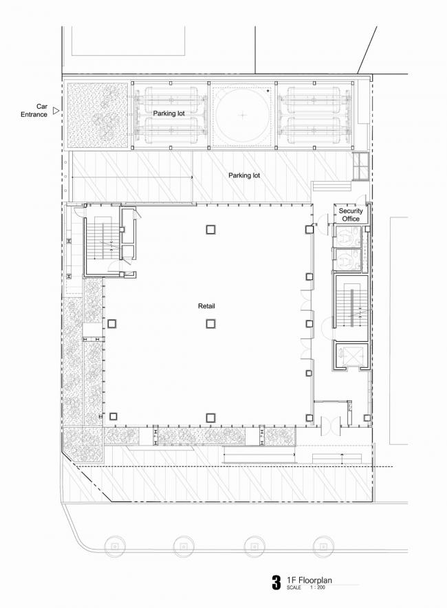
平面图

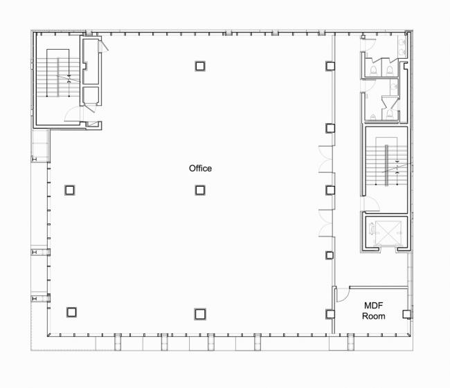
平面图

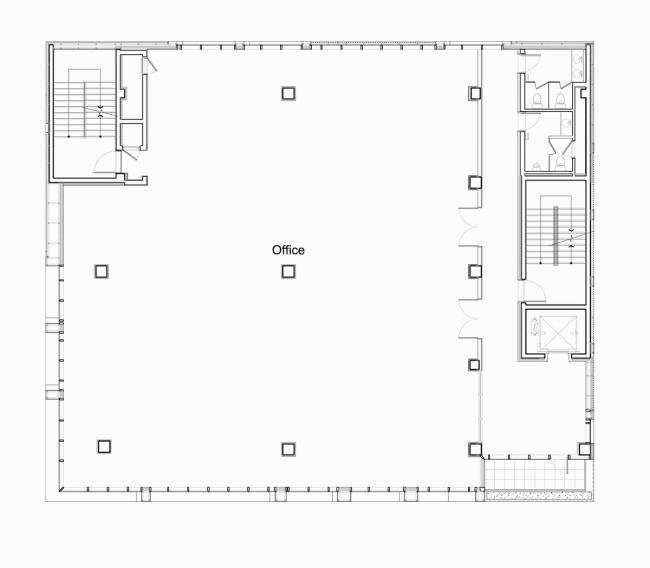
平面图

平面图

平面图

平面图

平面图

平面图

平面图
项目信息:
建筑师:韵生同建筑师事务所
地址:525-4 Munbal-dong, Paju-si, Gyeonggi-do,韩国
类别:公共机构设施
主创建筑师:Jang Yoon Gyoo, Shin Chang Hoon
设计团队:Choi Young Chul, Kim Mi Jung, Koh Eun Jin, Yoon Ji Soo
建筑面积:4022.71 m2
项目年份:2016
摄影师:Sergio Pirrone

BIM建筑网





评论前必须登录!
注册