

仁者乐山,智者乐水,本设计取山水之势,造清幽安居之境。建筑山墙面起伏跌宕如山峦层叠,环抱一面静水,水映山势,更有树池于水上,枝叶摇曳,路径蜿蜒,曲水流觞,如居于山水之间,附以典雅安静的下沉庭院与舒适的主题功能会所,尽显崇山贤水间的暖意生活。


“江南院子”所在地接壤杭州主城区,邻近西湖景区、武林门等繁华区域,位于“都市半小时生活圈”,但经由全长约1100米的水岸线围合环绕,如同岛屿藏于周边绿带之中,业主枕水而居,大隐隐于市。


鸟瞰院子被水环绕隐于闹市,建筑呈山势,与入口、围廊和院内水景共成山水合院。入口风格简洁现代,点线面配以仿木格栅,渲染出东方文化的诗情和韵律。入口处用灰空间和(BIM教程)格栅增强建筑内外之间的联系,格栅半透出院内水景与对面围廊,景在院先;院内空间随屋顶山势高低错落,抑扬顿挫,围廊一侧是轻透格栅,可倚廊观山品水,格栅与卷帘垂水而立倒映水中,富有江南风情。玻璃幕墙与金属格栅带来简洁现代感,大面积镜面水景映衬着屋顶山势和垂坠帘幕,半隐半透娴静雅致,通透转折间也蕴含着东方的含蓄。步道以极简的几何水景串联出“曲水流觞”的东方诗意,以现代感的空间展现出传统东方庭院文化。







建筑取传统东方庭院之意境,借鉴西方现代主义手法,在空间上,我们将江南一带曲折回环的庭院空间处理的更加通达简洁,大气洒落;在细节之处,我们精雕细琢,对材料、构造进行细化研究。所谓“江南院子”不仅是“烟柳繁华地,温柔富贵乡”,更是有历史、有风光、有东方、有品味的静界之地。





设计图纸:

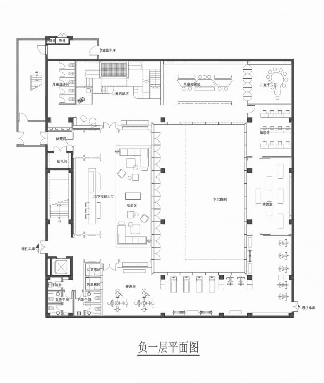
负一层平面图

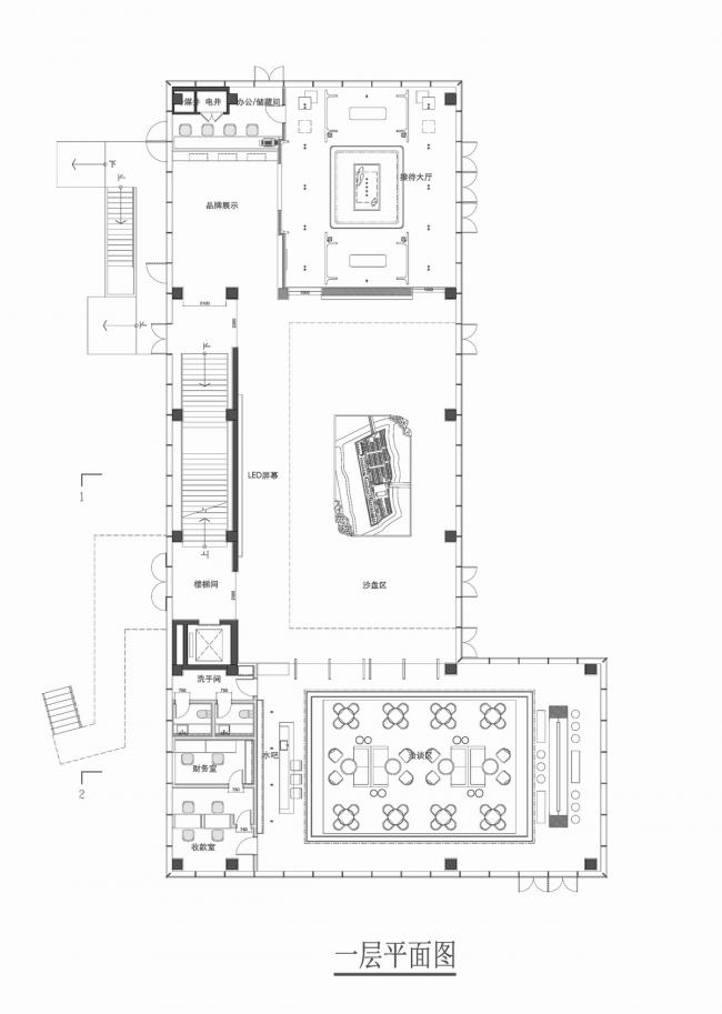
一层平面图

二层平面图

东西立面

南北立面

剖面图
项目信息:
项目名称:江南院子
项目类型:建筑,售楼中心
项目地址:浙江·杭州市余杭区崇贤新城
用地面积:40368平方米
建筑面积:80736平方米
项目设计&完成年份:2018年
设计方:PTA上海柏涛
主创建筑师:姚辉、薛佳
设计团队:祝博,徐磊,申厚其,李琤(BIM工程师),陈诚,黄伟峰,胡亚芬,罗镇
业主:路劲地产沪浙区域公司,远洋地产
摄影师:©是然建筑摄影
主要材料:石材,金属屋面,全玻幕墙

BIM建筑网





评论前必须登录!
注册