
这座具有流畅曲面状如大帽子的建筑位于阿那亚公园,意在沿黄金海岸线为该区域打造一个简单而美好的度假社区。由于沿海,岸边形成了形状各异的沙丘,设计的灵感便来源于温和的海风。对于一个休闲度假,让人身心愉悦之地,风是非常重要的一个自然元素。


柱网结构和立面的曲面玻璃产生不规则平面,使一部分柱子位于室外,一部分位于室内,中心形成一个内庭院。


不规则平面,曲面屋顶,引人进入的屋顶高起部分,为下面遮阴的低矮之处,形成一个有趣而不单调的空间感受。另外,120mm厚的金属铝屋顶和极其通透的玻璃立面,创造了一幅轻盈如风的画面。

宽阔的悬挑式屋顶如同一个巨大的遮阳伞,游客在公园里游玩后可在此处歇息放松。尽管室内面积只有90平方米,但四周通高的玻璃立面则完全没有让使用者感到压抑。

纯净明亮的空间内,不同时间光影的变化带给使用者不一样的感受。夜晚,在灯光的衬托下,曲面屋顶分外明显,如同漂浮在风中一般。


设计图纸:

▲场地平面图

▲总平面图

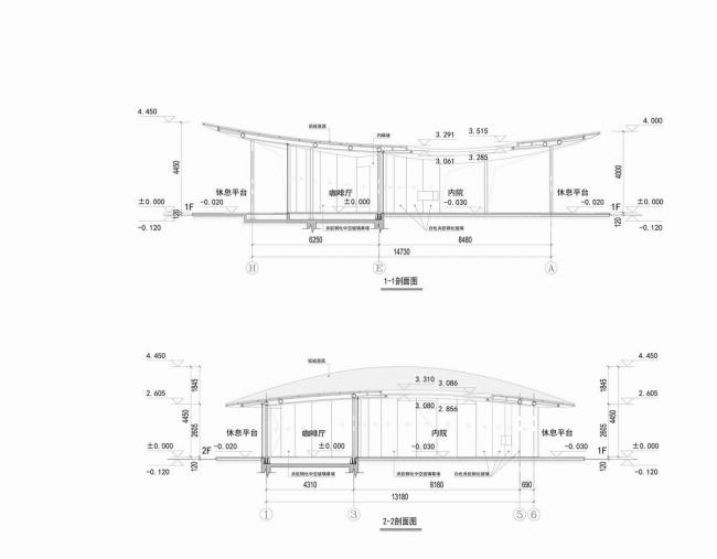
▲剖面图

▲爆炸图

(BIM学习)▲采光通风分析图

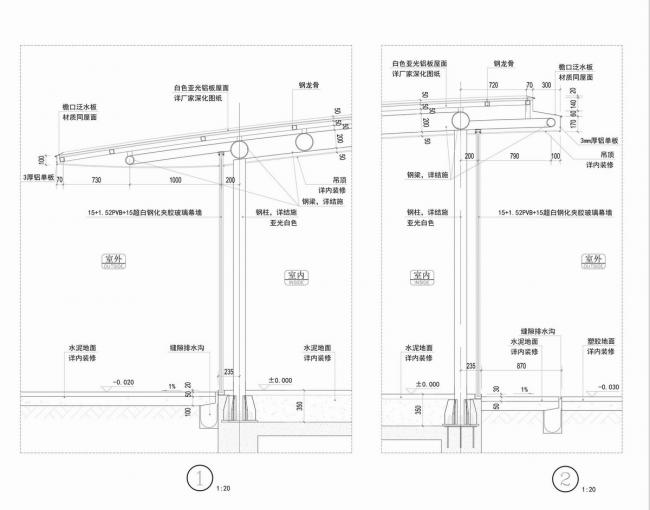
▲细部图

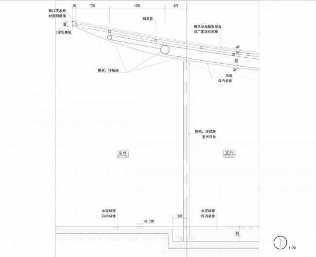
▲细部(BIM培训)图
项目信息:
建筑师:odd
地址:阿那亚, 秦皇岛, 河北省,中国
类别:咖啡馆
项目建筑师:Tsutomu Deguchi, Keizo Okamoto, Feng Zhang, Huang Yebiao
照明设计:Ljus Design; Maki
建筑面积:290.0 m2
项目年份:2018
摄影师:锐景摄影
厂家:PEBBLE, Hao Rui Da
微信公众号:xuebim
关注建筑行业BIM发展、研究建筑新技术,汇集建筑前沿信息!
← 微信扫一扫,关注我们+

BIM建筑网





评论前必须登录!
注册