

▲建筑整体
这栋住宅位于新西兰基督城的Mt Pleas(BIM培训)ant山顶,可俯瞰山脉和河口水域的自然景观。该建筑的形式专为景观和周围环境而设计。MC Architecture Studio充分了解周围环境对建筑物的影响,反之亦然。The Wall House的是为了沿袭其外部的世界并与之并存。其分散的北部立面分开,最大限度地与太阳接触,同时保护一个受保护的户外生活区免受盛行风的影响。形状创造了两个可选择的形态,一个伸向场地的东北角,而另一个则向西北方向倾斜朝向视野景观。

▲东南侧

▲西北侧
建筑物内部布局的一个关键因素是为不同的体验和时间创建两个独立的生活区。生活在东翼的上层建筑通向周围环境及其所有美景,通过山脉的自然植被俯瞰海湾,而当需要更私密的生活感时,您必须沿着下面的楼梯走到较低的生活区,隐私的地方和封闭的舒适。“庆祝从街道到家庭内部的旅程”。

▲从东侧上层俯瞰周围景观

▲开阔的视野

▲通往二层的楼梯

▲从楼梯处看向餐厅和客厅

▲餐厅

▲木质楼梯
在街上,游客充满了好奇心和奇迹,作为家庭的“局外人”,还有一个尚未被信任的人。面向墙壁的街道将整个住宅隐藏起来,以及除了作为保护内部居民的一种保护形式之外的景观。

▲从建筑东南角望向南侧街道
在靠近的时候,墙壁会以一个小裂缝自行打开,为游客提供进入内部和外部两个大气层之间过渡空间的点。沿着混凝土台阶和木板路的路径,游客进到入口庭院,就在墙的开口处,这个狭窄的空间狭窄地被高大的白色混凝土墙围绕,强制保护同等感。现在被锁定在外部世界和家庭内部之间的过渡空间中。当白色的墙壁逐渐消失在背景中时,他的视线方向被拉向黑色瓷砖门,这个门独立于路径的尽头。虽然这个空间与墙外的东西没有任何外在联系。

▲通往入口庭院的木质楼梯

▲从楼梯上看向泳池

▲南侧庭院

▲通往入口的狭窄空间

▲黑色瓷砖门
一旦通过瓷砖门口进入内部,您就会离开四面墙,外面的景观都会丢失,并在家中通过海湾和周围自然景观欣赏美景。

▲建筑外部夜景

▲外部夜景

▲海湾视野
现在,住宅提供了以前保存的所有的私密性,并为游客提供了私密保护感。就整体而言,完成的住宅是对外界的好奇和保护,同时注重内部的舒适性,环境度和安全感。

▲建筑私密性与美观并存
设计图纸:

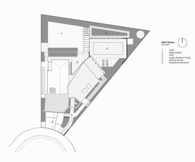
▲总平面图

▲一层平面图

▲二层平面图

▲南立面图

▲北立面图

▲东立面图

▲西立面图

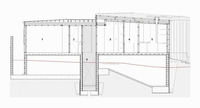
▲剖面图A-A

▲剖面图B-B

▲剖面图C-C

▲剖面图D-D
项目信息:
建筑师:Max Capocaccia
建筑地点:15 Hilltop Ln,Mount Pleasant,Christchurch 8081,New Zealand
建筑类别:住宅
建筑面积:304.0平方米
项目年份:2018年
建筑照片:Baptiste Marconnet
建筑制造商:Autodesk,ABK,PARADYŻ
照明设计顾问:Lume Design
工程设计:PTL工程
景观设计(BIM学习):Kamomarsh景观建筑师
建筑公司:帕森斯建筑
室内设计:Mooi设计

BIM建筑网





评论前必须登录!
注册