

阁楼图书馆是一个巧妙的改装项目,通过插入胶合板拱门形成整体结构的桁架式椽屋顶,用于存放大量书籍。

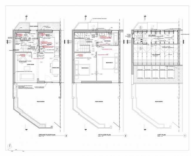
阁楼图书馆是为了满足客户的需求,为位于伦敦东部Walthamstow的两层露台住宅提供的40平米的图书存储空间。这座建于20世纪80年代的房子是砖砌空腔墙,有一个桁架椽屋顶。单一倾斜的屋顶在阁楼的一端形成了一个空间,但由于木桁架中对角构件的大量使用,人很难进入。由于客户的预算有限,决定使用现有的建筑结构,而不是建造新的阁楼结构或扩建原有建筑。通过用胶合板拱代替对角桁架构件,阁楼图书馆形成了一个楼梯通道、小长凳、拱门之间的架子和位于末端的书房空间。


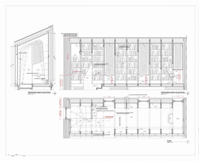
用于所有表面的材料是18mm云杉胶合板。对于曲线拱,建筑师对现有的阁楼空间进行了详细测量,用CAD绘制的模板和胶合板元件通过CNC切割,建造出精确的尺寸和形状。胶合板元件作为“客户供应”项目提供给主承包商,并在材料中切割有螺孔和项目编号,以确保快速和轻松组装。三个垂直的三层玻璃窗安装在北立面的桁架椽之间,为图书空间和学习空间提供光线。在西立面上安装了一个额外的窗户来捕捉傍晚温暖的太阳。


阁楼图书馆通过对阁楼空间的创新性调整和重组,创造了10平方米的新建筑空间。与工程师Corbett&Tasker合作,开发出了一种富有表现力的结构解决方案,用结构胶合板拱的框架代替斜木构件。屋顶结构在整个工程中保持不变,从而节省了施工现场防雨的额外费用。在投标前,要求对胶合板拱门、楼梯、货架、长凳和桌子的供应、切割和交付进行报价,以便投标承包商不会高估明显复杂的建筑方案的风险。


云杉胶合板比桦木胶合板更便宜,木材纹理更富有表现力。木材表面的阻燃处理是一种无害、无毒、低粘度的清水基产品,叫做Flametect C-WD。上面覆盖了渗透聚合物油。每个隔间的中(BIM)央安装了300流明/米的LED照明条,以照亮书籍,并与拱门的风格相结合。

设计图纸:

▲平面图

▲剖面图

▲立面图和平面图

▲正立面和背立面

▲侧立面
项目信息:
建(BIM学习)筑师:Arboreal Architecture
地址:英国
类别:独立住宅
项目指导:Harry Paticas
项目建筑师:Alda Coelho
建筑面积:10.0 平方米
项目年份:2018
摄影师:Agnese Sanvito
厂家:Osmo, Rationel, WISA, Vastern Timber Company
结构工程师:Corbett & Tasker
CNC制造商:Cut & Construct
建造控制:MLM Building Control
主承包商:Get Turner
窗户:Rationel
通风:Lunos supplied by Partel
现存建筑:80平方米

BIM建筑网![BIM建筑|商业社区,Bradbury 工厂 / [Y/N] Studio-BIM建筑网](https://mccbim.com/wp-content/uploads/2023/06/8708025ee511d7b-380x250.jpg)





评论前必须登录!
注册