生活的艺术,始于园,承于堂,聚于院。

项目位于重庆中央公园片区。建筑设计运用现代的语言,重新演绎了传统的空间精髓。总体布局遵循中轴对称、前堂后院、多重院落的传统空间格局。通过片墙、立柱、屋檐,限定出不同尺度和开放度的院落和框景。


前堂是两层高的展示空间,内有一组具有序列感的三连展厅和舒适的洽谈空间。主楼朝向城市一侧的公共界面,用大面的金属编织网和玻璃面,打造具有神秘感的艺术气质,朝向内院一侧的私密界面,用8.6m通高的大玻璃面,表达完全(BIM)开放的自由态度。


后院用大挑檐的外廊,围合出“四水归堂”的精神性生活场所。非日常尺度的半室外走廊,提供了交通、交流、休憩等多种生活功能的可能性。内院的中心是以三棵精心布置的松树为主体的巨大盆景。大尺度的挑檐为外廊上停留的观众框出天空的画面,也为室内静思的闲客描绘了一幅宁静悠远的松石画卷。


外廊通过延展的玻璃面、大尺度的灰空间、盆景式的内院,实现从室内到室外,由建筑到景观无界限的自然延续。为了给近人尺度提供舒适的空间体验,设计将大挑檐拆分成平屋面与坡屋面两个层次。内侧平屋面吊顶与室内平接,弱化室内与室外的界限,外侧坡屋面吊顶檐口略低,成为室内对内院景观的取景框。



立面设计遵循最纯粹的“线,结合面,形成体”的建筑生成逻辑:用硬朗的立柱和檐口线条,勾勒挺拔的建筑轮廓;用柔和的金属肌理和通透的玻璃面,编织细腻的表皮;线与面围合出简洁而有力的几何体量。通过刚与柔、虚与实的对比,来表现建筑的现代张力。

外轮廓收边的金属线条全部为定制产品:大到立柱、檐口、腰线,小到底部收边、门套,以达到极致挺拔的效果。定制的金属型材与设计所追求的力量感和简约美高度契合,通过交接处的细节设计,来展现设计者对于使用者的活动体验的关注,以及建造者精湛的施工工艺。

主楼三面环水,外墙底部与水面的交接处设计了倒三角形的收边线条,将主楼轻盈地托起,营造出悬浮于水面上的视觉效果。外框的立柱落于水中,水面以上外饰铝板,水面以下外包不锈钢板。随着水面的涟漪变化,不锈钢板会将光影的韵律折射在建筑之上。

主楼立面用4500个Y型立体单元件编织起一张巨幅的金属网状画卷。Y型单元件全部手工打磨,在工厂中制成1.2m*2.4m的单元板,到现场进行切割和安装。照明系统安装在金属网的上下两侧,夜晚从三角形的孔洞中透出柔和的灯光,使编织网展现出与白天截然不同的剪影效果。

吊顶作为立面设计的重要部分,通过划分的尺度变化,起到限定空间的效果。内院外廊的吊顶使用了大量的超大板,单板长3m,最大宽度2.3m,铝板间嵌有30mm的不锈钢条。超大的板材和复杂的细节,对施工的平整度提出了挑战,通过加厚板材、增加龙骨密度、现场安装的反复调整,最终呈现出平整的效果。

一方面通过实现的技术方式,让简单的设计具有丰富的细节。另一方面通过理性的解构重组,将复杂的设计清晰地表达出来。内院三面围合的大挑檐在体量上与主楼脱离。由于挑檐的结构层次复杂,因此在其侧立面的设计中,将双坡屋面、平面吊顶、坡面吊顶、檐口线条等多种元素,经过拆解和整合,将无机的形状转化成有机的形态,以表达“形式体现结构”的设计逻辑。

项目中最重要的展品,是由建筑、景观、室内相互渗透形成的艺术空间。在这个展品中,“建筑为纸,景观为绘”,其所展现的空间会随着取景位置的不同和一日间的光影变化,给使用者带去不同的感官体验,成为翡翠公园中最具有魅力的艺术品。




设计图纸:

▲总平面图

▲一层平面图

▲二层平面图

▲南立面图

▲北立面图

▲西立面图

▲庭院立面图1

▲庭院立面图2

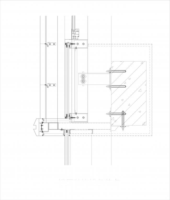
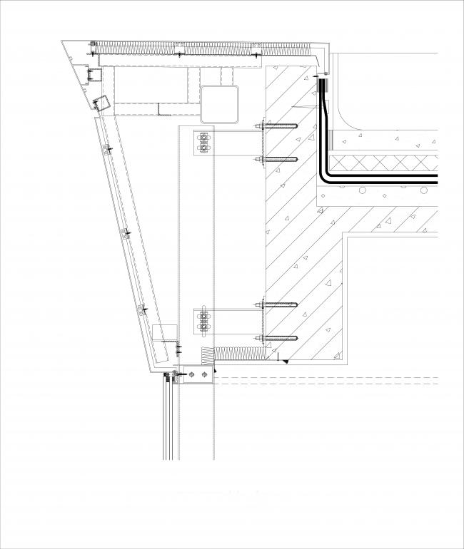
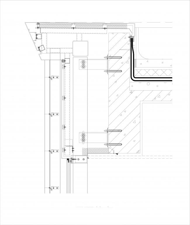
▲节点详图1

▲节点详图2

▲节点详图3

▲节点详图4

▲节点详图5

▲节点详图6

▲节点详图7

▲节点详图8

▲建筑外立面

▲表皮分析

▲设计演变
项目信息:
项目名称:重庆万科翡翠公园
项目类别:社区中心、生活馆
项目位置:重庆
业主单位:重庆万科
建筑设计:上海日清建筑设计有限公司
设计总负责:任治国
主创团队:杨勇,张璐,符雪晴
景观设计:北京创翌善策景观设计有限公司
室内设计:于舍YU STUDIO
占地面积:8630㎡
建筑面积:2728㎡
设计周期:2018.06-2018.09
竣工时间:2018.12
建筑摄影:行知影像

BIM建筑网





评论前必须登录!
注册