一个城市应该有一个空间是关于人们的生活和情感,它可以拥有这个城市的某种气质,链接人们过去的情感和记忆,建立一种属于当下和未来的生活方式和空间特性。

石柱,是一个很独特的城市,6WEI空间在旗山脚下滨河河畔的新天地。

空间的灵感来源于城市滨河两岸城市与旗山的关系。
我们发现人们总是喜欢漫步流连于滨河河畔,这让我们重新意识到这种城市滨河空间的魅力重新审视“对”与“望”这件事情,在不同位置、高度的相对相望这种关系。

空间概念动图
于是,一种源于城市滨河空间的空间便诞生。

一座城市建筑界面,一座阶梯书山,一座当代吊脚阁楼,一座记忆中的桥梁,构建出一种立体的多维度的空间关系,一种室内外化的空间语言和场所。


比如那片可以坐下来喝东西看书的书山台阶,它的(BIM)设计概念来源于以前人们在旁边山脚下的山坡开辟出一台台层层后退的坡地台阶,支上简易凉亭,摆上茶几椅子,人们便在这里坐着喝茶,俯瞰原来的老吊桥和对岸的城市。




人们可以在这里喝东西、阅读、聊天、听音乐、沙龙聚会。


空间生成关系动图
“三分”的空间秩序
“一分”全开为整 “二分”虚实相邻 “三分”相对相望。

我们在水平上建立一种从高到低、从实到空,一种从紧密走向开阔的豁然开朗。


伴随着走向开阔的是一条最本质的功能性走道,它是联系整个空间的一座情感桥梁和主轴,它唤醒了人们对附近已经消失的老吊桥的情感记忆。

它有一种很强的仪式感和精神性
很多情侣在这里表白和求婚,它成为这个空间的核心,各种T台活动、沙龙演讲、音乐演奏的舞台模式开启。
对当地拥有90%被汉化的土家族人来说 ,这就像他们的成长轨迹,一条通向端头玻璃面外,生活工作的世界和天空。

而当思念这片土地和家乡的时候,只要回头,就可以看见一座属于他们土家族群的吊脚阁楼。

只是吊脚阁楼,随着传统和时间的蜕变,以一种属于这个时代更为简练的方式和面貌,来守望他们的回望。
这是对一个城市和人的生活与情感,一种最好的归宿和安顿。
项目图纸:

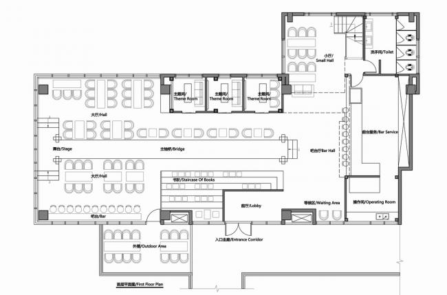
首层平面图

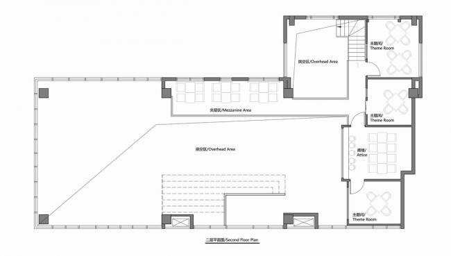
二层平面图
项目信息:
项目名称:6 WEI空间
设计单位:大晓建筑工作室[重庆]
工作室公众号:daxiaodesign
邮箱:[email protected]
项目位置:重庆石柱新天地
建筑师:隆文(BIM工作)超
团队成员:梅群 金麦子
业主:6维空间投资运营团队
项目完成时间:2019年1月
材料:金属钢结构 木材
项目面积:296㎡

BIM建筑网





评论前必须登录!
注册