


在2017年9月的地震之后,国内和国际的不同建筑办公室,设计师和合作设计者共同联合加入了由PienZa Sostenible支持创办(BIM培训)的名为ReConstrui墨西哥的项目,该项目旨在联手实现有意识和可持续的重建项目住宅。在灾害悲剧发生1的7个月后,由于不同的捐助者,机构和志愿者的支持,PienZa Sostenible在6个州已经管理建造了将近150多个重建项目,目的是改善社区居民的生活质量水平,减少地震灾害对他们造成严重影响。居民的遗产住宅,也存在着严重的脆弱性和社会剥夺的情况。



自2017年8月至今,共有16所房屋已在墨西哥州的Ocuilan交付。该项目由#LoveArmyMéxico推广,并由FundaciónOrigen,chachale支持。FuerzaMéxicoTrustPi,由40多个建筑办公室设计的共50个单户住宅,以及T_O Arquitectura的社区中心组成。



我们通过FundaciónPienZaSostenible和LoveArmyMéxico的要求,为农村城镇OcuilándeArteaga的Guzmán家族设计了一所房子。家庭土地面积为4,305平方英尺 – 以前的房子分为五个相等的分区:每个兄弟姐妹各占一个。在他们807平方英尺的地块中,古兹曼人原本有一个大约16 x 13英尺的不稳定的木结构,用金属板覆盖,没有任何隔离作用,并附有一个厕所在其中; 内部空间,则有土壤地板。这所(BIM学习)房子居住着Karina,她的丈夫MiguelÁngel和他们的女儿:Annette和Alix。
我们和家人讨论了他们新家的布局; 我们想知道他们需要什么以及对他们有用的元素。他们提出这样的需求:要求两个房间,一个小客厅和一个外面燃木炉,最好附有屋顶空间。
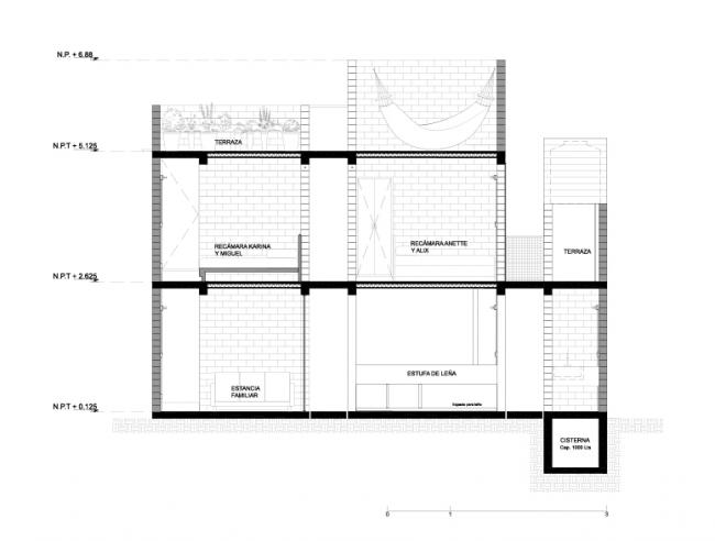
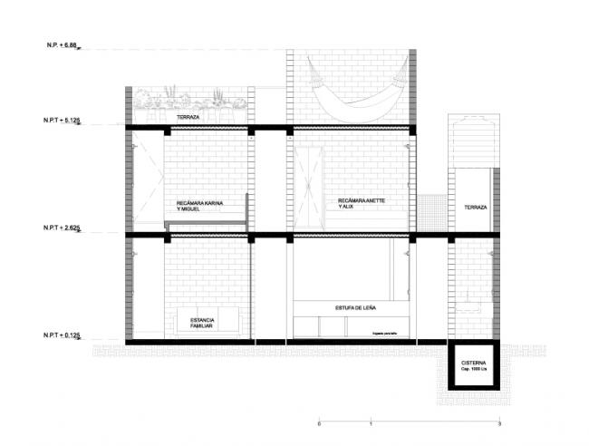
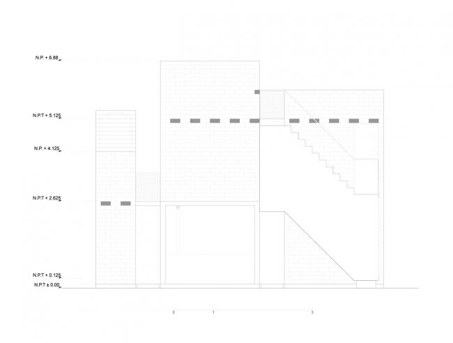
如果我们设计了一栋一层的房子 – 即一座面积为807平方英尺的527平方英尺的建筑物 – 那么这个家庭就会没有了开放的空间区域。因此,我们决定建造一座两层楼的房子,将平面图减少到263平方英尺,并留下种植树木的区域。此外,这使我们能够在三楼创建一个露台 – 一个家庭的私密空间,在那里他们可以看到城镇与邻近的田野绿色和周围的火山景观。



我们的对于设计相反的谈话形成了最初关于户外区域的相关性:Karina能够在户外用木柴做饭,而他们的女孩们则可以在野外放心的玩耍。这就是为什么我们要将厨房作为房子的中心轴线,这是从那里你可以看到一切的地方。同时这样,当卡琳娜正在做饭时,她可以看到田野,看到她的女儿们在玩耍,以及与家人和邻居互动。
以前连接到房子的厕所是所有家庭共用的。我们试图尊重这种原始的用途性质,因此厕所是作为一个独立的设施建造的,形成了现在这样一个完整的浴室和更私密的空间环境。
我们使用混凝土作为地基的基础和抛光水泥。墙体钢筋混凝土板中安装了垂直加固件。每个墙都使用现场制作的压缩土块,门窗使用当地的松木原材料。这就是我们如何使设计完全适应Guzman家族的需求和用途,并为他们建造一个新的,更坚固的家庭住宅,并在同时提供更好的居住空间条件。



图纸

总平面图

区位图

平面图

平面图

平面图

立面图

立面图

立面图

剖面图

剖面图

剖面图
项目信息
主创建筑师:Francisco Pardo Arquitecto
建筑地点:Ocuilan de Arteaga,墨西哥
建筑类别:房屋建筑
首席架构师:Francisco Pardo
总建筑面积: 49.0平方米
项目年份:2018年
建筑摄影师:Jaime Navarro,Pablo Astorga,Fernanda Olivares
设计团队: Ivan Saucedo,Karen Burkart,Daniel Castillo,JuanGutiérrez,JesúsManjarrez,EréndiraNavarrete,SofíaRodríguez,Gustavo Vargas
委托方:Karina,MiguelÁngel,Annette y

BIM建筑网





评论前必须登录!
注册