浙江安吉县北天目山灵峰讲寺始建于五代梁开平元年(公元907年),名灵峰院。宋治平二年(公元1065年)改称百福院;清乾隆四十九年(公元1784年),又更名为灵峰讲寺,是安吉最大的寺院。著名的佛教集大成者,明代四大高僧之一藕益大师曾住持于此。

竹林佛影

建筑内部主体空间
灵峰讲堂是灵峰讲寺设立的以普及佛教、道教、儒学、美学、茶道、花艺、音乐、书画、中医等传统文化的公益性机构,由灵峰寺灵峰学社的法师作为学术主持,并由安吉著名的一清茶馆进行日常运营管理。之所以把讲堂设立在安吉县城,一是为了方便信众前来学习,同时也想吸引年轻人能多接触佛法等传统文化,从而为社会提供正能量。设计师对空间的设计构思也从这一点发起。

阳台小憩

竹林佛影
讲堂位于浙江安吉县城,坐落于一个叫做经典一九五八的仿民国风格的商业街区内,为一栋独立的两层小楼,钢筋混凝土框架结构。小楼的一层有一个半层高的夹层空间,使建筑显得似乎有三层。

建筑处在一片仿民国风格的商业街区里

讲堂入口大门

独立的小楼外观
经过规划,对现有的空间进行了合理的分布。室内设计尊重原有的建筑格局,但是又在原有基础上进行了空间细化与品质提升。

佛像的灯光,神秘与温情同在
一层主要是入口门厅、茶水柜、卫生间,当然最主要的是设立了一个佛堂,使进入的人先礼拜佛像,生起恭敬心。

佛堂前的过道

佛眼看世界
夹层空间为阅读区,大量书籍布置在这一区域,中间是宽大的书桌,除了读书,还能进行茶艺、书画等活动。二层是一个独立的空间,为讲堂的主要的教学空间。整体空间韵律与节奏使人在楼上楼下的行走中能明显感受到。

夹层的阅览区

阅览区有大量佛经和各类图书供人免费阅读

光线充足的阅览区
由主入口进入门厅,空间并不宽敞,甚至有些逼仄。转弯看到佛堂,是一个箱型空间,有4米多至顶的高度,单纯的竹编材质为金黄色调,显出庄严神圣。为控制造价,楼梯保留了原有的扶手的钢管,被以竹编装饰,省去了再做内部结构的工作。原有石材踏步继续保留,室内地坪标高与其保持了一致。上到夹层阅读空间,这里比门厅、佛堂宽敞,但是较为低矮,适合以平视为主的视角,坐下来读书、写字、思考,最为安静。上到二层,进入到主要讲堂大厅,空间豁然开朗,是这个建筑内部空间的高潮部分。

转角是一个竹子的佛堂,金黄但质朴;竹丝帘使佛堂和过道有所区隔

从阅览区看佛堂

阳台只在土建地面上干洒了些石子便有了一丝野趣
建筑屋顶为双坡面,其中一面山墙被作为讲堂的讲台背景。由于四边窗户很大,光线在需要时非常充足,但有时需要投影或禅坐活动时则不需要太多光线,于是四边安装了浅灰色窗帘(BIM),在遮蔽了光线的同时也弱化了声音反射,避免了大空间的回声。外墙四面均有阳台,最大的一个能进行一些户外活动,小的则设计了景观小品,作为室内空间的延伸。

大厅具有多种功能的条件

美丽自然的花艺配置

楼梯间窗户的尺寸和光线被控制在够用的程度
佛法为社会提供的应该首先是一种温暖的力量,而非仅仅是高高在上的佛像和神秘感。空间作为一种语言,除了美观实用,也要善巧方便,不但要让人喜闻乐见,还要能给人一些感悟。为此,设计师决定采用暖暖的色调,像家一样的温馨。有暖色调的材质很多,为体现出安吉作为竹乡的地方特色,选择了竹子为主要材料,挖掘了竹子作为天然材质的特性。竹编饰面、竹竿、竹家具、竹地板等常见材料的组合运用使之既熟悉、亲切又陌生、新颖。最主要的是,竹子色调金黄,但感觉质朴,恰好象征了佛法真谛的伟大与朴素。

亲和的讲桌

家具于背景细部

竹子的金黄色给人质朴的感觉

楼梯保留了原有的扶手的钢管,被以竹编装饰,省去了再做内部结构的工作

花开时节
过分的温暖,会使人昏沉,于是在一些柱子、墙角、顶角线等部位安装了一些黑色金属护角线,如同绘画中的线条勾勒,在视觉上有些精神一振的作用。同时,对这些墙角、柱角有一种保护。在一些重点部位,搭配了精美、自然的花艺等配饰,与空间相得益彰,在单纯的空间概念中营造了丰富的变化,起到了画龙点睛的重要作用。最终,通过对眼、耳、鼻、舌、身、意的艺术性控制,表达出了即传统又现代的设计理念,体现了佛法与寺庙积极入世的一面,从而能更好地弘扬佛法融于世间和超于世间的博大精深的真理。

质朴的花艺细部

无处不在的竹子元素
一个人来讲堂学习,那是一个人在修行。许多人来讲堂学习,那是社会在修行。
现(BIM培训)场原状照片:




施工图纸及手绘效果图:

一层及夹层平面副本

二层平面副本

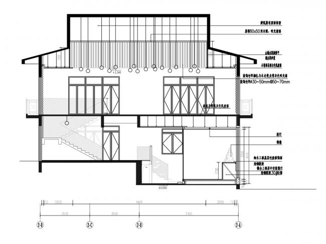
建筑长向剖面

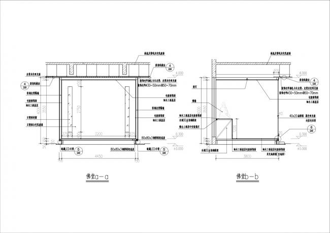
佛堂详图1

佛堂详图2

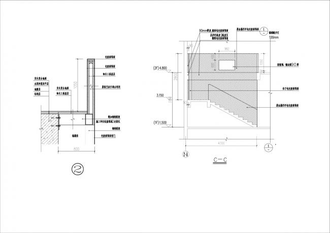
楼梯护栏详图

手稿1

手稿2

手稿3
项目信息:
设计单位:上海善祥建筑设计有限公司www.sxarchi.com
设计:王善祥
配饰设计:钱群英
参与设计:管鹏
设计时间:2015年
完工时间:2015年
客户:浙江安吉灵峰寺
设计面积:360平方
主要材质:竹编、竹竿、实木复合地板、乳胶漆、石子、铝合金线角
造价:约60万RMB
主摄影师:胡文杰 www.pdoing.com
部分摄影:王善祥

BIM建筑网





评论前必须登录!
注册