
用可以度量的手段去实现不可量度的意境。
——路易斯·康(Louis Isadore Kahn)
城市的建筑化建筑的城市化
城市综合体在城市中的作用,类似于化学中的触媒。它是由城市塑造的,反过来它又能够对城市发展和建设产生影响。城市与建筑之间存在着渗透、延续和符合的一体化关系。

▲区位图
项目位于成都市青羊区内,处于城西光华大道东侧西部新城核心区,是成都市政府规划的6大百亿商圈之一,同时也是成都市中心城商业网点总体布局的19个片区商业中心之一。
综合体空间结构系统是一个相对独立的完整功能系统,其内部各功能之间具有互补促进效应。功能空间在水平和垂直方向紧密联系和多样化布局,商务、休闲、服务、酒店功能混合布置,犹如一座城市缩影,成为一站式高度复合动态空间。

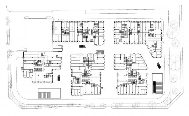
▲总平面图




开放式形态整体化设计
城市化的建筑,模糊了城市与建筑之间的界限,在建筑内部打造室外空间,形成一个开放式的TOD商务生态圈。沿着主要街道,蔓延出众多支路,形成网状结构。与周边无缝对接的地铁站、街角、医院形成规划序列,体现建筑所具有的开放性与整体性,进而影响带动区域的发展,保证区域价值及形象的全面提升。

▲俯瞰图

▲体块生成分析图




空(BIM培训)间交错并置复杂形态聚合
本项目的公共空间边界模糊化主要来源与两个方面的原因:一是空间室内外渗透化,二是功能延续性的加强。多种不同空间体系的垂直叠加促使城市空间与建筑空间相互交织,渗透。
通过中庭、内街、外廊、广场等将不同的建筑空间联系到一起,最终形成了更加复杂的形态聚合。在复合型商业街区内部,公众有许多行为之间存在着关联性,他们互相促进、激发,甚至互相依存。

▲三维流线分析

▲渗透性



▲剖面图1

▲剖面图2

▲连桥


联系建筑体量的人形步道桥廊,将营造交往空间的独特与生动,并提高可达性。路径不再是线性的,而是在空间中交错并置,运动的方向选择是随机的,不存在必然的某条流线。非线性的交通空间串联起空间节点与立体式的公共空间,形成了公共空间网络,造就了整体上的流动性。
通过项目用地东西向的流线贯通,以更加主动的姿态刺激街区人流联动,落客区(建筑入口)与周边环境实现本案“开放式商务中心”的初衷。城市空间与建筑内部空间的过渡上,充当了两种空间体系的缓冲空间,优秀的外部空间设计更可以实现人流的引导以及空间的暗示,使得内、外空间发生互动,增加了空间的趣味性。


▲落客区(建筑入口)
形塑建筑体块勾勒建筑肌理
为了消除建筑体块规模对人的压迫感,用加减的设计手法,塑造高低错落,疏密有致的空间。多样化的建筑语言减少了建筑的整体尺度,使人和环境之间有了更亲密的感官互动。立面与空间形态体现出了建筑单(BIM学习)体所具有的连续性与整体性,表现出了建筑单体具有的特性。



立面采用玻璃和铝板作为主要材料,手法上通过体量的穿插与切割,形成了小体量的有机形态,进一步拉近了建筑与人的距离。在错落的体量中,跳跃出不同肌理不同的体块。每层大露台的设计,打破传统的单一造型,同时又不失于整体视觉效果上的统一形式。





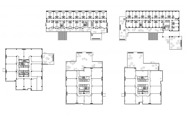
▲一层平面图

▲四层平面图
在快速城市化的内在需求下,城市综合体是建设高效节约型城市的途径之一。合理引导城市综合体的触媒作用,更加能动地指导城市开发建设。流动的空间体系在一定程度上影响了当今的城市建设,开放型商务中心是相当重要的空间,是构成城市的基本细胞。
项目信息:
项目名称:成都昌鑫青羊万和中心
地理位置:成都市青羊区
用地面积:25549.85平方米
建筑面积:127749.25平方米
项目业主:成都昌鑫置业有限公司
建筑设计:上海成执建筑设计有限公司
总建筑师:李杰
设计总监:曾庆华 刘巍
设计团队:王小臣 于颂 夏淼
施工图设计:中国建筑西南设计研究院有限公司
室内设计:四川省自由空间设计管理有限责任公司
景观设计:重庆市华筑建筑设计有限公司
施工单位:成都建工第一建筑工程有限公司
设计时间:2016
竣工时间:2018
摄影团队:三棱镜建筑空间摄影
感谢前期概念方案团队:严芳 姜超池文俊 宋森

BIM建筑网





评论前必须登录!
注册