


维查雅瓦达规划与建筑学院试图将校园建成维查雅瓦达市(印度东南部城市)的一个机构中心。机构建筑(BIM教程)是一个集辩论,交流和传播一体的平台,并成为整个校园的深层门户和接口。该研究所借鉴了野蛮主义作为一种表达形式,作为对极端气候的反应,并将其置入到维查雅瓦达市中。



该设计在外部展示了一个类似公共建筑的尺度, 内部通过创造适合参与学生社区的人性化规模来探索空间的教学本质。建筑的大体量被空隙刺破,创造出有节奏的光影从而让建筑能够呼吸;也因而扩展设备留出足够的空间。该设计侧重于个体的多样性和社区的广泛性,创造了相互依存的规划,提供了多元的互动空间,这将有利于社区体验。我们的想法源于对发展相互关系的兴趣,即发展学生参与无等级交流的互动 。



遮阳伞、大厅和平台三个部分之间的关系被构建成一个三维的星座,通过不同项目的运动和不同程度的隐私来决定。遮阳伞——建筑物的最顶层部分容纳了上午学习课程,包括了教室和工作室 。它也作为一个体积遮阳伞屋顶为较低的楼层创造了一个阴影环境。大厅—— 建筑物的中间部分是一个“高脚平台”,允许学生活动。



这个区域暗示着传统的庭院,它固定着公共和社区项目。它的作用就像整个建筑的一个大厅,因为它过滤和调节人的移动。较小的庭院作为三维采光井,通过上下层提供视觉上的连通性。这个“通用区”由教师、学生、管理员和访客共同使用,可以进行非程序话(BIM工程师)的交流。平台 —— 建筑最底部的部分成为浮动顶篷的重底座。该基地设有学习课程的下午项目,如一些工作室和实验室,并采用当地的Tandur石材,增加了太阳能热量的“时滞”。这个坚固的平台上布满了空隙,可以让热空气散去。



这些材料被从他们原始形状中玻璃,并使用清水混凝土、Tandur石、耐候钢和粉煤灰砖,赋予建筑自然的特性。被动式能源系统通过庭院融入设计中,庭院通过建筑物烟囱实现交叉通风,从而调节昼夜温度; 体积遮阳伞提供了下方的热舒适,并采取措施减少活跃的太阳能热增益,例如利用北向光同时阻挡来自南向的强烈的太阳辐射。该建筑旨在创建一个融入其文化背景的互动社区学习环境,并专注于环境敏感性。



图纸

总平面图

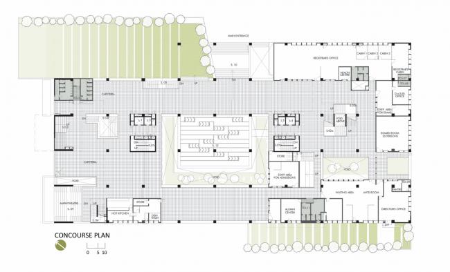
平面图

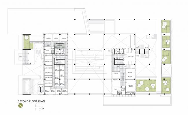
平面图

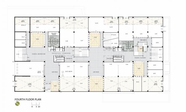
平面图

平面图

剖面图

剖面图

立面图

立面图

立面图

墙体剖面图

墙体剖面图

楼梯间剖面图

形体生成

日照分析

气候分体

图表示意

图表示意

分层轴测图

流线分析
项目信息
建筑师MO-OF
建筑地点印度安得拉邦
主创设计师:Shantanu Poredi, Manisha Agarwal
面积38588.0平方米委托方:美诺
项目年份2018年
建筑摄影师Edmund Sumner
工程团队:Rak ceramics, NCL Industries, JSW Steel
结构工程师:Dr. Kelkar Designs Pvt. Ltd

BIM建筑网





评论前必须登录!
注册