
▲园区东面主入口

▲由太原路看园区
在介绍项目之前有必要先介绍下木马工业设计公司。该公司由中国著名工业设计师丁伟创立。丁伟不仅是中国重要的的工业设计师,也是一直在努力推动中国工业设计实践和理论的重要人物。他近年来推动社会创新项目“设计立县”计划,运用设计力量加速区域经济转型升级,构建设计立县十大模式。其推出的“设计立县”计划目前已在山东日照、安徽马鞍山、贵州安顺、上海普陀区等地开始落地并开花结果。

▲由太原路看园区
日照工业设计中心由日照经济技术开发区主导建设,由丁伟及其团队策划。园区位于日照经济技术开发区太原路69号,原建筑为1995~1996年间建的厂房,分为南北两栋,长方形东西向平行布置。每栋楼各长72.2米,高度13.7米。南楼宽26.7米,北楼宽22.6米,均为三层,中间主体部分是原来的厂房空间,两端是楼梯间。在两栋主楼的北面,有一排一层平房,也是园区的北侧边界。园区东侧是太原路,在与太原路之间有一条绿化带,市政部门做了景观改造,这样园区与太原路之间有了一个缓冲带,能更好的相互映衬。

▲原建筑照片

▲原建筑照片

▲原建筑照片

▲改造前园区

▲原建筑楼梯间

▲园区北侧边界

▲原建筑内部空间
园区功能主要分为日照工业设计中心、工业设计史展厅、行政接待、美术馆、创客办公室、创客咖啡、创意设计品店等内容,分别位于两栋楼的6个楼层。做为“设计立县”计划的重要一镇,日照中心为便于开放后各地及本地相关人员、机构观摩、交流,在南北两栋楼的二层中间部位设置了一座天桥连廊,使南北两栋楼的参观、交流活动更加流畅便捷。钢结构框架及彩色玻璃光影组成的天桥连廊成了中心正对园区大门的一个标志性元素。

▲南楼办公空间

▲两座主楼之间的天桥

▲两座主楼之间的天桥

▲两座主楼之间的天桥

▲天桥

▲天桥立面

▲天桥的彩色玻璃

▲天桥

▲天桥内部

▲天桥内部

▲天桥内部的光影迷离

▲天桥的彩色玻璃
原有两座主楼的外形较为平淡,为改革开放以来在中国很常见的平面与立面组成。为使天际轮廓线有所变化,也是为了赋予其独有的造型,南楼朝向入口的一端设计一个竖向白色造型,其高度高于建筑的女儿墙4.3米。上面凹进处安装了中心的标志图文,使人从马路上远远便可望见。这一处理暗示了南楼作为园区的内容核心与管理核心的空间地位。

▲南楼

▲南楼新增造型
北楼在朝向大门一端也设计了一个白色造型与南楼的造型相呼应,但其高度略低。在一层做为咖啡厅的这一部分的窗外,设计了一条横向有顶的阳台,朝向两个楼之间形成的院落内部,阳台也是咖啡厅的入口,这一灰空间的插入使两栋楼之间的院落立刻有了顾盼的气氛。

▲南北楼的白色造型

▲北楼

▲北楼窗户造型

▲北楼的阳台空间

▲北楼的阳台灰空间
在阳台下的地面设计了一个与之长度接近的长条形水池,水池使院落更加有(BIM工作)了灵气。南北楼阳台与水池的横向构图与南北楼端头的两个竖向造型形成了一种纵横关系,而与院落中部的天桥连廊又形成了另一种纵横关系。X、Y、Z轴的纵横构图关系,是建筑外观能够生动的重要因素。

▲北楼前的景观水池

▲北楼前的景观水池

▲水池倒影

▲两座主楼之间的庭院

▲南楼二层阳台

▲北楼的阳台空间
原建筑外墙是在当时常见的蓝白相间的马赛克,该街区有多栋楼都是这一材质和色彩,且已开始剥落。为凸显中心做为一个领导、研发、孵化机构的文化气氛,采用红色外墙砖为主的立面装饰。这种贴面砖在世界各国大学建筑中应用不少,因此被很多人称作“大学红”。这一材质的应用赋予了建筑书卷气。但由于造价紧张,没有朝向入口及内院的立面采用了红砖色的外墙涂料。整体红色为主的外立面在白色造型和局部少量桔色块黑色窗套钢构等线条的搭配下充满了热情和明媚,化解了方形直线条为主的刚硬与冷漠。感性与理性在此得以融合体现。立面造型与色彩的变化使熟悉该街区的行人也产生了强烈的新奇感,从一定程度上满足了业主提出的建成“地标性“的要求。利落的体块造型与对比强烈的色彩在当地的充足阳光下更显清新亮丽。

▲南楼东立面

▲从南面安源路看南楼

▲北楼南立面

▲北楼东立面
一个好建筑应该是内外一体的。但这个项目功能较复杂,另有其他室内设计师参与了主要内部空间设计。建筑师仅参与了两部分室内空间设计。
第一部分是南北楼楼梯间的改造设计,但造价紧张,只有南楼主楼梯间进行了实施。有时设计并不需要多复杂,楼梯原有扶手只是麦秸板进行装饰,从建筑外立面的红色、桔色向室内过渡到了麦秸板的淡黄色,这一色阶的延续强化了做为中心室内交通空间的重要性和一体性。

▲南楼楼梯间

▲南楼楼梯间

▲南楼楼梯间俯视
第二部分是南楼三层美术馆,建筑师打开了原来两处屋面楼板,分别开了一个直径4米的圆形和一个3.7米X4米的方形两个洞口,形成了两个天井,虽然从园区外部并看不出,但却使人来到美术馆这一层参观时感到了一丝惊奇,丰富了园区整体的建筑空间形式,也说明建筑与室内本就是不可分割的整体。

▲美术馆入口

▲美术馆内部空间关系

▲南楼美术馆圆形天井仰视

▲南楼美术馆天圆地方的天井

▲由室内望天井

▲南楼美术馆方形天井

▲南楼美术馆方形天井

▲南楼美术馆方形天井

▲南楼美术馆方形天井仰视

▲南楼美术馆方形天井仰视
园区景观也进行了改造。由于原有绿化率不能做太多改变,故基本保留了原有绿植区,大部分草坪由于施工期间被破坏,于是重新种植,并补栽了一些当地灌木和乔木,丰富了植栽形态。除了前面所述的景观水池,还在园区中部院落点缀了几块(BIM学习)当地山石,不规则的山石与建筑的直线形成了对比,增添了少许野趣。
虽然该项目算不上建筑、室内、景观的全局设计,但一体化的考虑最终还是营造了一气呵成的整体化效果。落成后,在当地街区取得了周边居民的不少赞赏,同时在业主及各地前来参观的相关人士中逐渐树立了不错的口碑,成了日照经济技术开发区的一张拿得出手的名片。

▲夜景
此次设计也有不少遗憾,其中重要一个就是设计时间本来就太紧,且因为一些原因又被压缩,在方案阶段的模型还没完成的时候就开始匆匆绘制施工图,致使出现一些设计细节来不及推敲,不够完善。但也幸亏管理及施工执行比较好,使不完善甚至没完成的方案得到了较好的执行,在图纸和施工两者之间取得了整体均衡,从而避免了一些项目图纸很好但实施效果打折扣的状况。

▲与施工方沟通天桥幕墙色彩的草图
项目图纸:

▲区位图

▲整体鸟瞰图

▲功能分布示意图

▲总平面图

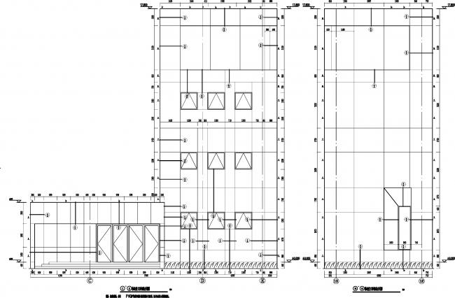
▲南楼一层平面图

▲南楼二层平面图

▲南楼三层平面图

▲南楼屋顶平面图

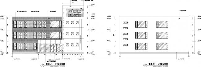
▲南楼南立面

▲南楼北立面

▲南楼东西立面

▲北楼一层平面图

▲北楼二层平面图

▲北楼三层平面图

▲北楼屋顶平面图

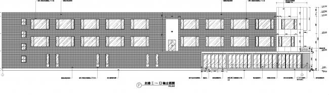
▲北楼南立面

▲北楼北立面

▲北楼东西立面

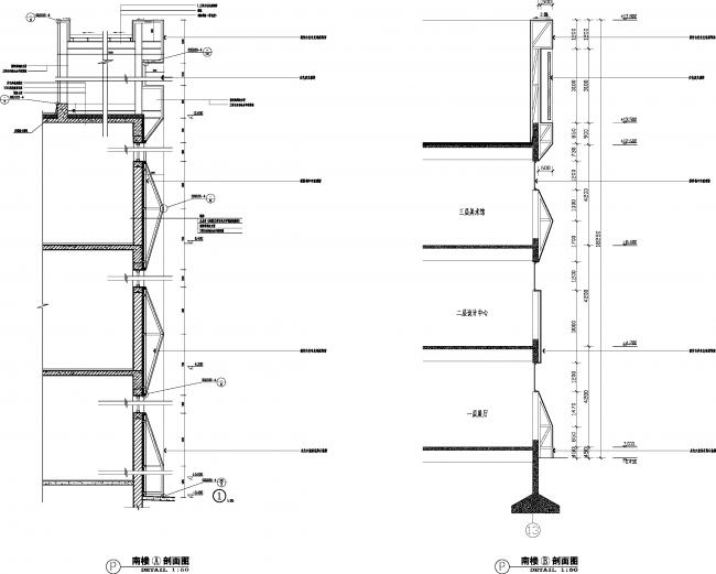
▲南楼细部

▲南楼细部

▲南楼细部

▲南楼细部

▲北楼细部

▲北楼细部

▲手绘草稿1

▲手绘草稿2

▲手绘草稿3
项目信息:
工程名称:日照工业设计中心改造设计
客户:日照经济技术开发区
项目地点:山东省日照市经济技术开发区太原路
面积:10200m2
设计内容:建筑改造、景观改造及室内公共空间设计
设计单位:上海善祥建筑设计有限公司
网址:http://www.sxarchi.com
设计主持:王善祥
参与设计:王善辉李哲袁百文
施工图合作设计单位:上海创霖建筑规划设计有限公司
建筑:梁彦军、刘创翼
结构:周康
水电:黄鹏
主要材质:钢构、混凝土、面砖、乳胶漆、铝板、防腐木、玻璃、花岗石等
造价:约900万RMB
摄影:胡文杰
摄影师网址:www.pdoing.com
竣工时间:2016

BIM建筑网





评论前必须登录!
注册