


摄影师工作室的设计需要在宽敞的工作空间、奥斯汀市的地方条例规定和对富有表现力的形式之间取得平衡。这个项目起始于对摄影师对后院角落有一个工作室的简单需求。地区规范的高度限制和树木保护的规定很快就排除了建造单独结构的选择,导致只能在原油的建筑形式上增加,一个将典型奥斯汀房屋与新的形式并置的形式。




书房是一个明亮、自然过渡,将现有的餐厅与摄影工作室连接起来。木质的屏幕漂浮在石头门槛上,标志着原始房屋的范围,同时增加了自然的色彩。为了最大限(BIM建筑)度地利用空间和功能的需要,一个新的洗衣房和完整的浴室被塞进书房的后墙。


建筑物的染色灰泥表皮是由倾斜的伸缩缝组成。这些角度被带斜切的外部甲板,以避免干扰相邻山核桃树的临界根区。既有住宅和工作室的外部材料都被折叠到书房中,在新与旧之间产生对话,增强了与外部的联系。


在灰泥墙后面,一个宽敞的工作室为艺术家提供了像瑞士军刀般的实用功能:用于照明和背景的高天花板、用于提升重物的升降机、用于夹紧设备的金属栏杆等。意想不到的空间通过位于天窗和一个嵌入式固定装置与光线一起发挥作用。即使是铰接式夹层也源于功能主义的需要——后退以允许最大的双高度空间,同时保证进入的舒适。


最终,这种动态形式源于奥斯汀的地区规范的高度限制与业主计划的结合。结果是一种意想不到的形式,好奇地窥视现有的房子——一个让人害羞的场面,但同时又大胆得不容忽视。

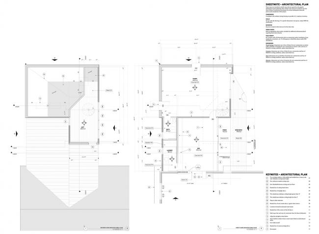
图纸

总平面图

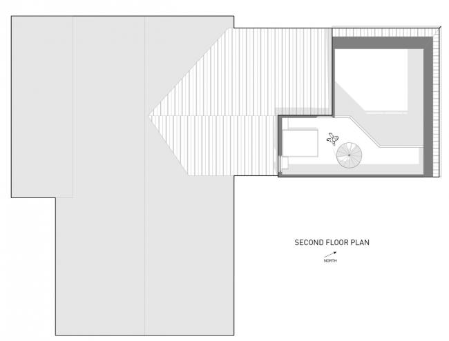
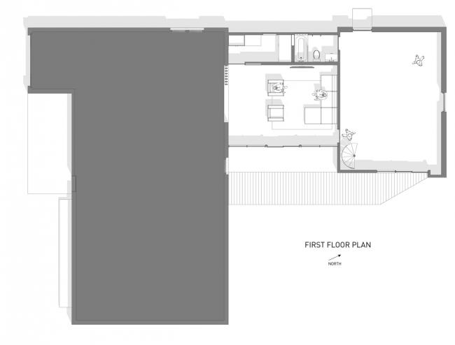
平面图

剖面图

立面图

立面图

平面图

平面图

平面图
项目信息
建筑师Tim Derrington
设计团队Tim Derrington & Natalia Lopez
建筑地点美国德克萨斯州奥斯汀市
委托方Craig Washburn & Jessica Krakoski
面积1170平方英尺
建筑摄影师Craig Washburn
项目年份2018

BIM建筑网





评论前必须登录!
注册