“世界承载了过多的代表事物的符号和信息,没人能完全理解,因为它们反过来又是代表其他符号的符号。真实的东西隐匿了,没有人能够看见。”
——彼得·卒姆托
设计不是擦脂抹粉的刻意装饰,也不是追逐潮流的自我标榜,而是一股直击内心的力量,它穿透表象,唤醒真实的向往。绝尘天下茶舍正是以谦卑的姿态,向人们展示着设计原有的模样。

▲“绝尘天下”茶舍外立面
受限于狭窄逼仄的基地条件,设计师黄锋遵循小中见大的美学思想和叙事性的设计语言,顺势而为。通透的建筑玻璃外观和体块穿插的室内造型,呈现一种自然的姿态,同时引发人们的好奇和探索。张弛间透露出的力量和智慧,如同短小精悍的行板,又如同温润清纯的岩茶,散发着原初而静谧的优雅美感。

▲入口玻璃门和体块穿插的室内造型

▲欧松板装饰散发着原初而静谧的优雅美感
茶会所由两个长15米,宽3.4米,高4.2米的店面改造而成。入口玻璃门和茶室的玻璃外立面共同构成了统一的外观,揭示内在空(BIM)间的开放性,社区概念的导入亦增加了室内外的互动,催生了亲切的归属感。入口一侧的斜面墙体为灰色的过渡空间增添仪式感,营造犹抱琵琶半遮面的障景效果,激发观者的想象。

▲入口玻璃门

▲入口一侧的斜面墙体为灰色的过渡空间增添了仪式感
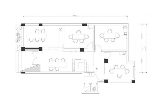
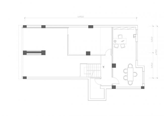
整体设计欲扬先抑,室内公共区域敞朗而富于变化,让人由相对狭小的入口登门之际,豁然开朗。原本非常有限的场地面积,经由设计师的反复推敲和斟酌,出乎意料地得到放大。一层功能分区为两间面向街道的会客厅、三间包厢。由一层深入探索,还可辗转发现,登上二层的楼梯,便隐藏于具有储藏柜和墙体分隔功能的欧松板中间。二层则规划出两间包厢、办公区及储藏区。不同的层高设置,保证了每个功能区的舒适度,且构成了空间内在的韵律。

▲会客厅

▲会客厅

▲会客厅入口处

▲欧松板墙体分割空间

▲隐藏于具有储藏柜和墙体分隔功能的欧松板中间的楼梯

▲站在楼(BIM设计)梯上看向会客厅
外在节奏的变化自然而逸趣横生。不锈钢板和欧松板墙面打破传统生硬的切分疆界,高低错落的结构营造出沉静的雕塑感和建筑体块感,在减少空间压迫感、延伸视线的同时,调和出层次丰富的动感画面。材质的明暗变化和刚柔对比实现了不同区域的转换和过渡,在人们静坐品茗之际,又消融隐退为和谐适宜的背景。

▲室内高低错落的结构,营造出沉静的雕塑感和建筑体块感

▲不锈钢板和欧松板墙面打破了传统生硬的切分疆界

▲不锈钢板墙面

▲会客厅墙面装饰
在这茶舍中,设计师藉由对人文精神的感知和理解,构建出简单质朴而又充满力道美感的心灵之境。行走于这一方天地之间,品茶交友,不仅可望、可品、可赏,更可居、可游、可与之相鸣。

▲简单质朴而又充满力道美感的茶舍
项目图纸:

▲立体解剖图

▲一层平面图

▲二层平面图
项目信息:
项目名称:小中见大
建筑师:黄锋
公司网站
联系邮箱:[email protected]
完成年份:2019年1月
建筑面积(平方米或平方英尺):150平方
项目地址:福建省福州市金山区
摄影师:吴永长
建筑材料:不锈钢,欧松板,防古砖

设计师 黄 锋

BIM建筑网





评论前必须登录!
注册