农民自建房
农民自建房作为中国城市快速发展进程的重要参与群体之一,有着鲜明的中国特色。快速扩(BIM)张建造的模式下使之有了群体性的形态特征——个体独立的色彩与各种风格拼凑的装饰元素。农民自建房横跨了一个时代,它们在城建快速发展中替代了木构的传统民居,而又在当今的城市更新中,逐渐在征地与拆迁的影响下变为废墟与新城镇开发中的问题。

▲场地农民自建房原貌
废墟中的价值
个体自由:农民自建房的私有化与自由度在居住建筑的范畴中都是相对较高的,居住者时常根据自己的生活需求对于住所进行适当的整改,无论阳台或者仓库或者大屋檐,这些加建部分都使住所的生活氛围与外界环境有着更为多样化的联系。
群体聚落:农民自建房群体有着自然村的基底,往往具有一定的自然组群状态,类似于小型村落。不同于城市规划中严谨的“方格子”,这些看似无章法的自建建筑群也有着相对自然化的肌理。族群意识与交集是它们较为珍贵的东西,这些集群性的要素成为了一种集体生活的源头。

▲兼具个体自由与群体聚落特点的农民自建房
▲场地区域肌理与项目地块
园艺中的再生
虹越园艺社区位于浙江海宁虹越园艺家总部园区,园区范围内有几组农民自建房群。因土地政策原因被企业承租,拆后难建,只能整改后再投入使用。园区场地内的农民自建房有着典型的中国农民房特色,材质与形式较为混杂,色彩各异,门廊以及屋檐等部分未被利用,建筑群体也没有与园区的环境相融合。

▲改造前
▲改造过程
▲改造后
自然的参与者
设计工作在面对农民自建房拆改的问题上,不将其完全掩饰,并用积极的态度与手段来面对这一系列建筑,使得原本色彩与风格杂乱的建筑群能够和谐的参与到周边环境之中,在给予人们丰富的生活空间同时,也能成为与自然共生的群体。

▲建筑与花园

▲建筑与花园
▲建筑与花园
▲建筑与花园
▲建筑与花园
▲建筑与花园
▲分析动图
生活的创作者(BIM培训)
设计过程对居住者生活行为进行分析研究,并针对不同的行为类型在原建筑的门廊、阳台乃至窗洞进行了创作性的设计修建,制造更多的弹性空间,让原本拘泥于单一功能的区域承载更多的责任,提升了空间的利用率与活跃性。通过阳光房、凸窗的纳入满足了生活空间的需求,通过钢网、格栅的介入为自然预留了生长的轨迹,使得处于园艺园区的居住建筑群有更多与自然环境互动的可能性,居住者可以随时随地的体验自然给生活带来的自由与亲近之感,并在此之上发掘自然生活之中更多的乐趣与想象力。

▲门廊、凸窗、阳台生活创作性的整改

▲分析图
▲门廊与花园
▲阳台
▲阳台
▲凸窗
▲凸窗
自然化的居住社区

▲模块分析图
多类型的居住社区
改造后的自建房居住模式较为多样化,分为集合公寓模式的小型酒店,套房模式的接待中心,以及家庭模式的单体住宅,同时配有一栋提供小型餐饮的休闲吧。建筑群结合周围专业设计师打造的景观花园,整个场地更向往成为一个充满人气与自然活力的园艺社区。

▲多类型的居住模式
▲多类型的居住模式
▲多类型的居住模式
▲功能分析
窗洞、门廊与植物的故事
不仅仅于花园,无论人们处于建筑的任何角落,都有和自然亲近的机会,从阳台到门廊,甚至处于门洞窗口,都有人们闲暇摆弄花草的地方,这些是阳光与空气最丰富的地方,即是居住者生活与自然沟通最为密集的场所,或倚靠着休闲沙发在廊下晒太阳,或盘坐在凸窗上翻阅书籍,或置身于阳台中打理花草,这些都是属于使用者自然闲适的生活。



▲窗洞、门廊与室内的衔接与结合
项目图纸:

▲建筑总平面图一层

▲建筑总平面图二层

▲建筑总平面图三层

▲建筑总平面图四层

▲建筑正立面

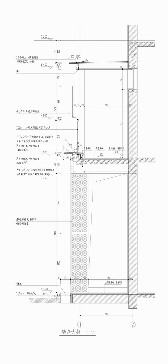
▲墙身细部设计
项目信息:
项目名称:虹越园艺社区
设计公司:杭州森上建筑设计
官网:www.senshangsheji.com
联系方式:[email protected]
主要设计团队:章钧添孙鸿斐董瑾 周岁
客户:虹越花卉股份有限公司
项目位置:浙江嘉兴
完成年份:2018.5
建筑面积:3000㎡
摄影:邱日培-AD建筑摄影

BIM建筑网





















评论前必须登录!
注册