院子位于后海南沿以南,恭王府以北的小翔凤胡同内,距离后海不足百米,最初为一座废弃的院落,格局较好,建筑外观也不是很破败,有正房和西厢房各一座,东侧是一个后期加建的厨房。
▼ 庭院日景-沈桢

▼庭院日景 – 沈桢

院子入口右侧是一颗大树,只要踏入院门,在“她”的庇护下,就再无后海的熙熙攘攘,立马坠入一方静谧的氛围中,加之房屋色调浓重,一种厚重的历史感便油然而生。
▼庭院日景- 沈桢

我们决定不破坏院子的基本格局,而通过一种有限度的设计与介入实现空间的重构与功能的转换,更重要的是延续历史感的同时挖掘出其潜在的文化价值。
▼从西厢房望向庭院- 沈桢

▼庭院夜景-许小东

改造后的小院包括两套客房、一间公共厨房和一间禅茶室(拆旧建新)。外立面除加建部分外延续了原初房屋的色彩与细部做法。将原先的窗型、窗台等元素拆解、分配与重组,与新的肌理混合构成新的建筑立面。
▼改造后平面图

▼轴测图

▼庭院日景-沈桢

小院中大树与茶室的媾和形成全院的核心,通过一个连续转折的形体将入口、茶室与大树等要素整合在一起,形成玄关、东南角树院和茶室空间,选择锈蚀钢板和防腐木板两种本身带有时间沉淀感的材料与建筑主体在色彩与气氛上相契合,是新与旧的融合,并以一个透明与仪式性的姿态言说了一种不同于西方街道广场式的「庭院公共生活」:一种以亲近自然为主旨的公共生活。
▼大树与茶室的媾和 -沈桢

▼树院-许小东

▼从入口玄关望向树院 -许小东

▼从树院望向茶室 -许小东

▼方案图

▼方案图

结庐在人境,而无车马喧。中国古人造园到了明清时期的核心思想就是在市井咫尺间营造山林,这也是士大夫阶层在应对纷乱现世中暂时获得身心放松与闲适的避风港,向往自然本就是我们心灵深层二元价值的一个方面,对人们的心智起到很好的调节作用。只是商业社会的标准化与快(BIM学习)节奏让我们逐渐疏离了自然,也慢慢丧失了这种调节机制。
▼茶室内景-许小东

▼茶室内景-沈桢

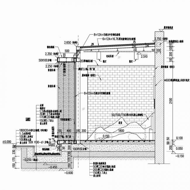
▼茶室构造详图

▼书斋-沈桢

▼细部-沈桢

▼细部-许小东

▼细部-沈桢

▼方案图

▼书斋构造详图

庭院本身咫尺间,在有限的空间中通过梳理与整合并对「瓦」这种传统材料的不同组织与定义于方寸间营造山水,观想山水。改造后的小院本身成为这个城市中的一个「彼处」,它以一种异化的方式让人们在这里忘却现实生活中的纷扰而暂时回归一种更加贴近自然的生活状态,亦或是对心灵的慰藉也好,是为我们所期望的。
▼南正房室内-许小东

▼南正房书斋与饮茶区 -许小东

▼南正房室内-许小东

▼南正房室内-许小东

▼南正房室内-许小东

▼南正房室内- 沈桢

▼南正房室内- 沈桢

▼西厢房室内-许小东

建筑如同器物,需要时间的滋养慢慢褪去燥气,需要生活的润饰慢慢焕发光泽。期待来年春暖花开、树叶蔽日、池水充盈、苔藓丛生的日子,到那时,应该会是另一番景象了。
▼庭院夜景-许小东

项目信息:
建筑师:平常建筑
地址:后海小翔凤胡同15号院,北京,中国
类别:酒店
主创建筑师:沈桢,陈贞贞
建筑面积:117.0 平方米
项目年份:2018
摄影师:许小东,沈桢
业主:北京天恒自在场头(隐海)
材料:小青瓦、清水砖、钢材、锈蚀钢板、木材、竹、玻璃等

BIM建筑网





借助AI和BIM,实现数字化勘测、设计与验收,让5G 部署更快、更规范、更简单,这就是华为5G 数字化集成服务。