


紧密又宽敞,具有多重功能空间变换能力建筑工作室Einar Dahle Arkitekter和Hille Melbye Arkitekter在2014年挪威Spikkestad市新教堂和文化中心设计竞赛中获得一等奖。 2018年5月,“Teglen”(意为挪威语中的“砖块”)落成并开幕。 该建筑由国家教会和市政府共同拥有和使用,功能(BIM)包括一个教堂,一个礼仪室,咖啡厅,活动室,行政办公室和市政服务。

(BIM建筑)


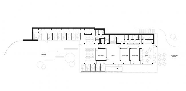
概念设计概念上,项目好比一个“Teglen”砖块体量,从公共城市广场升起并轻轻插入相邻的倾斜地形内。 设计的关键是将内向仪式功能放在二层,将外向功能咖啡厅,活动室和市政服务等放在首层与城市广场相连。室外广场采用的红砖地面将建筑与火车站平台连接起来,好似连续的“红地毯”。


建筑物标志性的东立面,即“国王之墙”,垂直向上耸立在城市广场上,营造出清晰的方向感和强烈的主题性。 由此产生的建筑形状与传统的教堂尖顶和Spikkestad小城旧砖厂的高耸烟囱相似,这些砖厂以前位于邻近的场地。


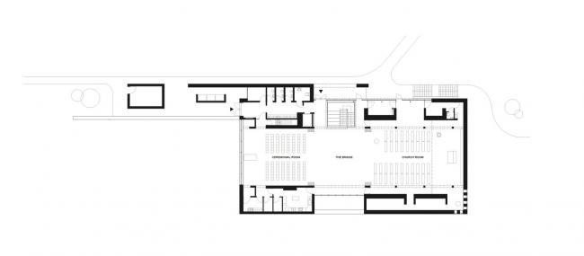
空间的灵活性和多重功能性上层平面布局的概念可以理解为对传统教堂十字平面的重新诠释,一个类似十字广场的平面,其中主要入口和垂直交通都位于北侧’耳堂’处。主体被分为三个主要空间,东面是神圣的教堂,西面是礼仪室,还有一个位于中央连接两部分的过渡空间,每个空间由落地的可折叠的橡木门隔开。


除了两层共八个出入口,以及各层连接圆形剧场的宽敞楼梯外,该机构设施的灵活性还促进了多种功能的同时使用。 这解决了设计初期面临的众多挑战,同时也通过新的可能性层次扩展了它。


光,结构和材料上部体量的外立面由免维护砖材组成,附于混凝土核心结构上。礼仪室由两个3,45米高的混凝土梁构成,这些梁连续穿过建筑物。 支撑梁的柱子形成教堂的侧廊空间,并定义了次要功能的空间。 首层配有落地玻璃,以最大限度地与城市广场接触,在内部和外部之间创造了无缝的门槛。

礼仪室主要光照是自然采光。 柔和的光线通过天窗照射到侧廊的砖墙和现浇混凝土的祭坛墙上。 玻璃开合使自然光无缝地从建筑外表皮穿过到达内部结构,将内部空间与外部空间连接起来。
图纸

总平面图

分析图

分析图

一层平面图

二层平面图

西立面图

南立面图

剖面图

剖面图

剖面图
项目信息
建筑师 Einar Dahle Arkitekter, Hille Melbye Arkitekter
地址 Spikkestad, 挪威
类别 文化中心
主创建筑师 Aina Dahle, Kaja Melbye, Joachim Midjo Andersen, Mikkel Haavaldsen
室内设计师 Einar Dahle Arkitekter, Hille Melbye Arkitekter
景观设计 Landskaperiet AS
建筑面积 1450.0 平方米
项目年份 2018
摄影师 Jiri Havran
厂家 Wienerberger
承包商 Bermingrud Entreprenør AS
砖材承包商 Tveiten & Riis AS
企业 Bermingrud Entreprenør AS
工程师 Dr. Tech Kristoffer Apeland AS, Sivilingeniør Finn Madsø AS, Sweco Norge
客户 Røyken Kommune, Røyken Kirkelige Fellesråd
客户代表 Asplan Viak

BIM建筑网





评论前必须登录!
注册