3+3+3
这栋房子(BIM学习)有三层,三个花园,是三代人的住宅。该场地沿着一座树木茂密的小山丘延伸。在确定房屋的布局时,这座小山成为了最重要的元素。房子与场地的形状对齐,并平行于轴线朝向山丘,以便将山丘的自然走势引入房屋。此外,将长长的空间连接在一起的视线的末端,总是朝向山丘。
▼沉静的三宅院落

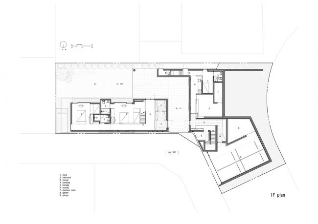
▼一层平面图

▼房屋沿着坡地延伸

被分割成几个部分的空间相重叠,超出了内部和外部之间的简单边界,但却互不阻挡彼此的视野。对这座房子的三个花园的定义相当灵活:它们可以是一个大门内有花岗石的院子,一个客房前有水泥土的院子,可以是一个饭厅前的绿地,一个儿童玩耍的院子,一个成人活动的草地,还可以是一个女主人用的蔬菜园。有时它们被简单地定义为一、二、三层的院子。根据不同的需要,它们可视作庭院、花园、通道。

▼通过落地玻璃墙看庭院

▼落地玻璃窗外的庭院

▼落地玻璃窗使空间更轻透

不花哨,也不简单
该建筑大部分都是在石头上铺上一层石英涂层和长而浅灰色的混凝土砖。连接和分开的石块和砖块之间的磷酸盐板,填充了外立面的空白空间。从道路上看,这面长墙很容易被视为一道屏障,它被分割成具有不同纹理的类似彩色材料,从而(BIM)模糊了比例感。
▼ 长而浅灰色的混凝土砖和石英涂层墙体

▼浅灰色混凝土砖墙

▼墙体被分割成具有不同纹理的类似彩色材料,模糊了比例感。


▼石英涂层墙体

▼具有洁净气质的室内空间




▼阳光透过落地玻璃射进室内

建筑外观并不扎眼。在内部,放置在钢筋混凝土结构顶部的木质结构直接暴露在天花板上,从窗外就可以看到。
▼天花板上的木结构

▼钢混结构顶部的木结构

▼木结构营造出温暖的室内风格

▼通过玻璃看到走廊天花木结构

▼走廊天花木结构

▼明亮宽敞的室内空间

▼透明玻璃使室内呈现极简的特点

▼明亮宽敞的餐厅

▼温暖轻透的卧室空间

▼温暖洁净的室内空间

▼浅灰色地板与室内整体风格相统一

建筑整体呈浅灰色,但由于添加了温暖的木质材料和暗淡的灯光,所以给人的整体感觉并不会过暗或过亮。总体来说,建筑既不花哨,也不简单,正如客户所希望的那样。
▼建筑呈现沉稳、宁静而温暖的气质

▼温暖的灯光

▼透过玻璃看灯光下轻透的室内

项目图纸:
▼一层平面图

▼二层平面图

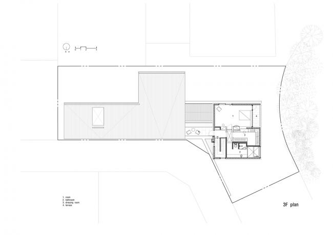
▼三层平面图

▼北立面图

▼南立面图

▼剖面图

▼剖面图

项目信息:
建筑师:Yeonghwan Lim+Sunhyun Kim
地址:Yongin-si,韩国
类别:独立住宅
主创建筑师:Yeonghwan Lim+Sunhyun Kim
设计团队:Youngcheon Kim, Jisun Heo, Soochan Lee
建筑面积:659.72 m2
项目年份:2018
摄影师:Youngchae Park
厂家:Durastack, FILOBE

BIM建筑网





评论前必须登录!
注册