


新寨咖啡庄园位于云南保山潞江坝——世界著名的小粒咖啡产区之一,场地坐落在高黎贡山下坝湾村中心的一块台地上,向北可以俯瞰潞江坝和怒江峡谷的景观。业主希望在这里通过改造和新建,建造一组集咖啡的储存、加工、品鉴、售卖,酒店客房、咖啡博物馆、礼堂等多种功能为一体的建筑,向来访者提供与高品质咖啡和怡人的坝区环境相匹配的旅游度假体验。





场地由两组院落构成,其中有许多繁茂的大树,以及一座建于八十年代已经废弃的电影院——一栋灰砖建筑。场地里、村落中及周边的大多数建筑都是砖的建筑,场地附近有一座仍在烧制灰砖的砖窑。这些当地特征,触发了设计用砖来建造的初始愿望,时至今日砖砌体仍是当地最主要的建造方式也赋予了采用它的合理性。而砖也引发了拱这一结构形式在建筑中不同方式的呈现。




从外部进入场地的方式是迂回的,经历了从进村道路的仰观、爬坡、转折,最后到达位于主街尽端的庄园。进入庄园后从庭院的内聚到进入主体建筑看到远处风景的豁然开朗,形成了从收到放、先抑后扬的叙事体验。




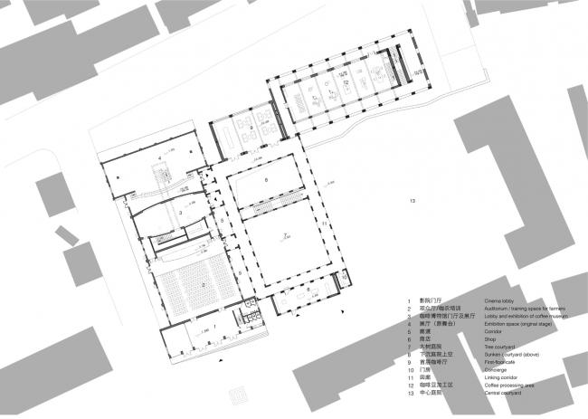
新建筑通过一组回廊与老电影院建筑相连接,形成了三个庭院:中心庭院、大树庭院、下沉庭院,


访客到达中心庭院后通过回廊可以联系至各功能区域。新老建筑在场地原有树木的掩映下,与回廊一同形成了多个庭院相串联的格局,建筑自身成为连续院落之后的背景,整体获得一种近似于修道院(BIM设计)式的布局。体量最大的影院改造为博物馆,成为类似于教堂的精神中心。

正对中心庭院的主体建筑位于台地北侧,与中心庭院有一层高差。

设计将储藏咖啡豆的仓库(BIM培训)置于底层,以十字砖拱的形式来营造重质的、包裹感的、幽暗的、具有地窖氛围的空间,厚重的体积同时回应恒温恒湿的物理要求。

中间层的加工区需要大空间烘焙和包装咖啡豆,设计采用了大跨度钢梁与单向砖拱结合的形式,获得连续的开放空间的同时,将庭院与峡谷的风景引入建筑内部,周圈的走廊则可以供游客参观;

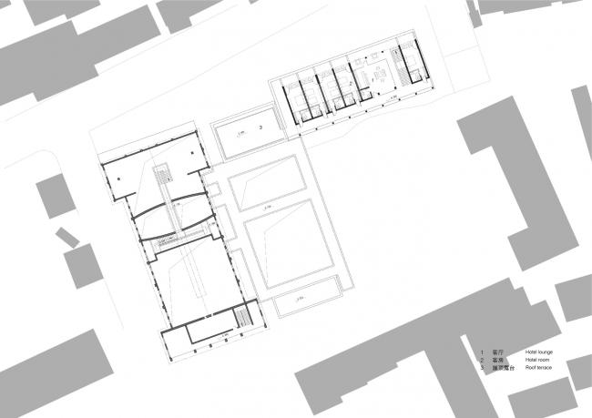
而在最顶层,建筑由砖砌体脱胎换骨为混凝土框架形式以获得最大的透明性,满足多间客房俯瞰峡谷景色的需要。建筑从底层至顶层,以从重到轻的空间形式渐变,塑造了每一层不同的场所特质,回应了功能上从储物、生产到观景享受的多样需求。


建筑采用了砖和混凝土两种材料,与环境既有联系又有变化。空间形式混合了砌体累叠结构的重与混凝土架构的轻,这一结果当然是对材料、结构、功能等因素综合考虑形成的。设计始于对场地的感知和对材料的思考,而核心则在于其所意图创造的场所特征——归属大地抑或引向远方的地平线。
图纸

1-25剖面模型

1-25剖面模型

1-25剖面模型

负空间模型

总平面图

底层平面图

首层平面图

二层平面图

新建建筑与现状电影院剖面
项目信息
建筑师 迹•建筑事务所(TAO)
地址 潞江坝坝湾村 ,保山市,云南省,中国
类别 文化建筑
主持建筑师 华黎
项目建筑师及驻场 白婷 Video Schran Images
建筑面积 3140.0 平方米
项目年份 2018
摄影师 陈颢, 苏圣亮
结构工程师 马智刚
机电工程师 吕建军
业主 保山市新寨咖啡有限公司
施工团队 云南保山下村建筑工程有限责任公司
室内装修施工、钢门窗深化设计及制作安装 景致建筑
钢门窗深化设计团队 舒坦、刘苏旸、廖鹏
现场施工团队负责人 舒坦、杨志强、杨静

BIM建筑网





评论前必须登录!
注册