
建筑外立面

迷你舞台和投影幕布

空间局部
春夏交替的时候,未来以北有幸收到来自黔西南的(BIM)邀请,改造一处于闹市腹地夹缝的单体建筑,完成后用于茶饮餐食的空间。是的,我们又来贵州了。机缘巧合,我们此前在贵州黔南和黔东南已经完成两个改造项目,而此次的业主却是真正意义上成长生活在这里的同龄朋友们,他们希望一起完成一个直接有力的空间变奏。自然,我们带着新的好奇和期待,踏上了黔西南之行。

粗颗粒和新建斜面形成对比

进入散座区

卡座区域局部

卡座区域局部

厨房入口

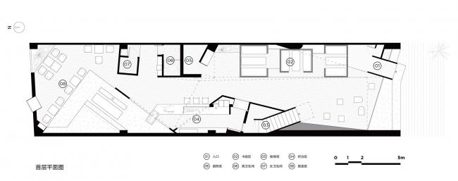
首层平面图
作为彡口品牌的初始阶段,整个建筑的改造重心放在外立面和一二层室内空间。功能构成也简单明确:一层为开放多变的餐区布置,满足不同场景的需求。二层则安排为大小功能不一的私密包厢,在满足当地消费习惯的同时,增加新的空间体验。建筑本身狭长的进深在采光和通风方面都有严重不足,此限制也让空间氛围本身带有神秘感和手工的粗颗粒。虽然这些直观感受是带有一定肆意为之的风险,但我们决定保留这些感受,让它在新的空间构成中穿插呈现,就像这个房子本身的底色,不可或缺。

立面局部

立面局部
描述这座城市时,街角巷口中常见的灯红酒绿已然成为人们的视觉习惯,我们在构思彡口空间的时候就意将打破这种习惯,用暗调的黑白灰色来排布组织。完成后的沿街立面风格明确,所有的体块连接建立在房子本身规矩分布的矩形窗洞之上。轻微转折的斜面则在长向延伸的空间里切出流动的缝隙,节奏由上至下逐渐强烈。

空间入口

灯光掩映的空间
街道两侧走来的人们探秘似的准备进入这个白色洞口,连接至室外的折叠体块有意将视觉时间拉长,推门进入,视线首先落在斜插于折叠空间内同样为纯白色的体块上,层叠光线和原始的粗粝感并置,形成通向二楼的交通盒子。所有的切面构成有些许失重重叠的特殊体验,夹缝中洒下的灯光也同时加强空间的雕塑感。

吧台区

吧台区

吧台局部

吧台局部

转折的空间

玻璃砖墙

玻璃砖墙和植物的角落

立面玻璃窗
行进至中部,作为酒水软饮的空间,核心大吧台同样穿插于折叠体块之中,均衡服务两端顾客的同时,强行将空间阻隔,前后空间于此有了时差。目光所及到空间最深处,半透的玻璃砖和视错觉的窗洞阻隔室外杂乱的环境,同时设置在原始空间之内折叠体块之外的演艺台营造了一个更加丰富的就餐角落。

嵌入的楼梯和卡座区

楼梯和悠长的通道

新旧楼梯交接

楼体内层叠灯光

楼梯内部

二层通道空间

二层通道空间

二层通道空间

包厢内部

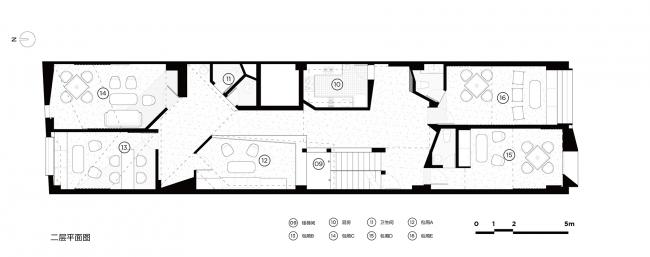
二层平面图
由白色交通盒子行至二层空间,承接整个设计概念中变奏后的空间氛围,墙体结构的斜切比例和首层略有不同,色调控制相对呈现中灰色。整个交通空间内没有自然光线引入,不同照度的灯光便至关重要。我们把私密性空间放置于两端,各个局部的斜切构造在交错连接时如同抽象的磐石伫立,而新建用材的质感又是相对轻盈平滑,这些偶然的冲突感组成了人们行走其中的空间张力。

公共盥洗区

楼梯局部

空间内的斜面交错

斜插体块的局部

空间末端的切割
空间最终完成的时候也是新故事的开端,无论建造制作过程有多少曲折和繁复的纠正,最终,我们在设计伊始的企盼都于这些切面、洞口、黑白体块的交织中闪现。希望这个简单明确的(BIM学习)变奏能如我们期望的一样,服务这座四季不显时空奇幻的城市。

通道空间不同层次的灯光

空间内的斜面交错
项目信息
项目名称:城市夹缝中的变奏 彡口空间
设计单位: 未来以北工作室
公司网站: www.fon-studio.com
联系邮箱: [email protected]
设计团队: 金波安 李泓臻 罗霜华
设计时间: 2018.05-2018.08
完工时间: 2018.11
项目面积: 240平米
项目地址: 贵州省黔西南州兴义市花月三街17号
摄 影: 未来以北工作室
委 托 方: 微风市集
施工团队:兴义市蒂冉装饰设计有限公司
主要材料: 水泥板、锈钢、人造石英石
主要品牌: 立通石材 常畅钢铁 美岩集团

BIM建筑网





评论前必须登录!
注册